查看完整案例


收藏

下载
© Sonny Sandjaya
桑尼·桑贾亚
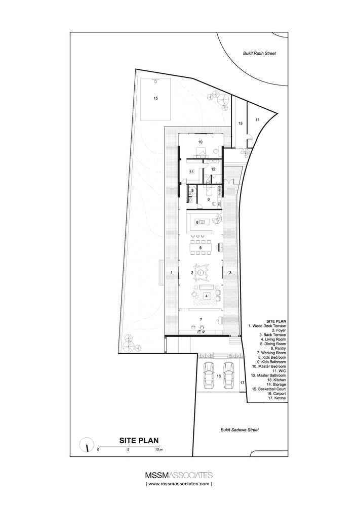
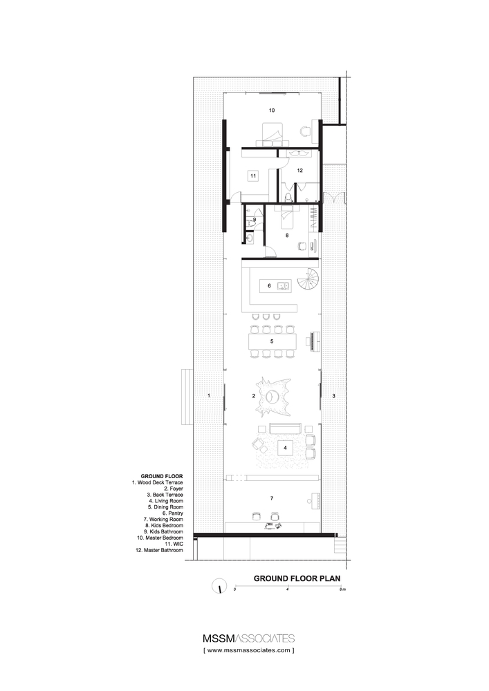
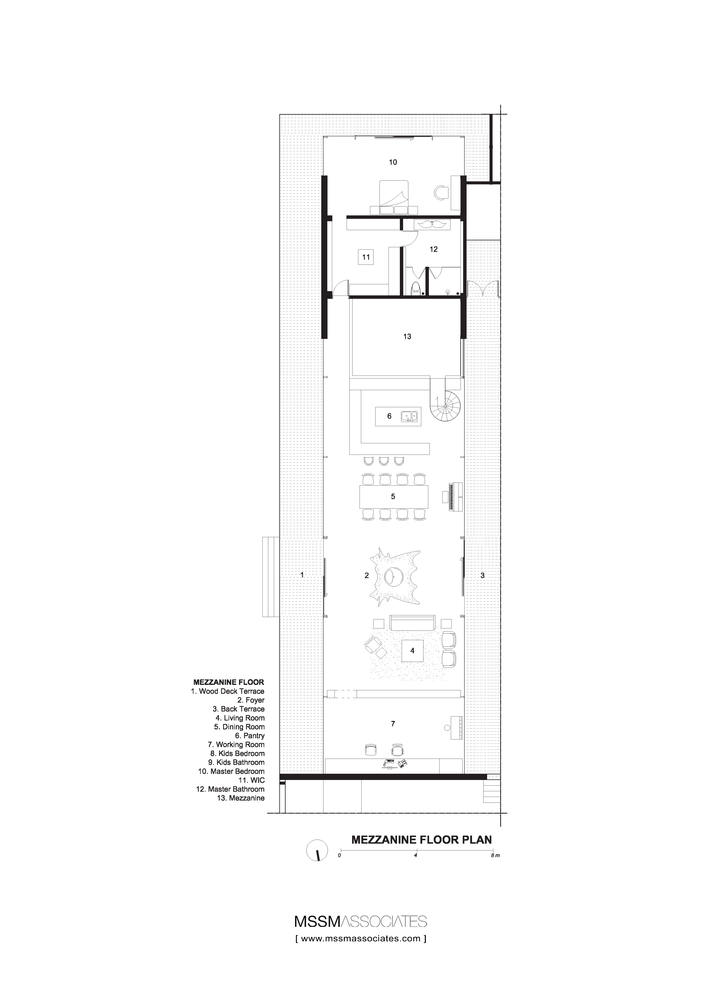
架构师提供的文本描述。社会生活方式的迅速变化需要一个小型、灵活、高效和非传统的房子.人们提出的问题是如何设计一个生活工作住宅,以提高生产力和家庭生活。设计的第一个挑战是通过房屋设计将工作和家庭生活无缝地结合起来。私人区域、办公室和主卧室分别位于主楼对面,从而创造了一个无缝的开放空间,并在房子中间形成了门厅区域的连接功能。
Text description provided by the architects. The rapid change of social lifestyle demands a small, flexible, efficient and non-traditional house. The question that has been raised is how a life-work residence can be designed to be able to enhance both productivity and family life. The first challenge of the design is to integrate work and family life seamlessly through the house design. The private areas, the office, and the master bedroom are located separately opposite to the main house, thus creating a seamless open space and a joined function in the middle of the house in the shape of a foyer area.
© Sonny Sandjaya
桑尼·桑贾亚
必须仔细设计小型住宅,因为粗略的决定会对住宅的性质产生重大影响。采用的策略是尽可能增加自然光,给人内在的开放性和轻盈感。此外,房子提供与景观直接连接,使用大开口。自动控制窗帘用于解决公共空间和私人空间之间的隔离问题。
Small dwellings must be carefully designed because rough decisions can have a big impact on the character of the dwelling. The strategies employed is to increase the natural light as much as possible, to give the sense of openness and lightness inside. Moreover, the house provides a direct interconnection with the landscape, with the use of large openings. Automated controlled curtains are used to negotiate the segregation between public and private spaces.
Sketch Plan
为了增加其使用和空间效果,选择了开放式平面图。因此,不同功能之间的空间重叠可以减少对单一用途空间的需求,并创建一个空间相互流动的平面图,并可用作多用途区域。这可以增加空间的多功能性和效率;它还允许来自窗户的光线在整个房子中自由移动。这座房子设计的另一个方面是一种创新的景观设计,该设计得益于该建筑的潜在景观。这所房子坐落在小山上,面向180度的城市景色。而不是坐在和适合现有的网站,设计倾向于主导和捕捉光和在网站内的看法。
Open floor plans are chosen in order to increase its use and spatial effect. Therefore, a spatial overlap between different functions can reduce the need for single-purpose spaces and create a floor plan in which spaces flow into each other and can be used as multipurpose areas. This can increase the space’s versatility and efficiency; it also allows light from windows to travel freely throughout the house. The other aspect of this house’s design is an innovative landscaping; the design is benefited from the site’s architectural potential view. The house is located on the hill facing 180 degrees of city view. Instead of sitting and fitting to the existing site, the design tends to dominate and capture the light and view within the site.
© Sonny Sandjaya
桑尼·桑贾亚
在项目的后期阶段,构成决策的一个重要因素的第二个方面是房屋的嬉戏性、灵魂的概念。作为一个对玩具充满激情的年轻家庭
A secondary aspect that constitutes a decision-important factor in the latter phase of the project is the playfulness souled concept of the house. As a young family with a great passion in toy & furniture collection, the house is configured as a canvas and container for many of furniture & toy designer collection. Careful choices of light concrete floor mixed with natural colored french oak and transparent floor to ceiling glass dominate the material schedule. One experimental architectural design element for the house is the embedded outdoor toys cabinet that was designed carefully in order to enhance the playful experience throughout the whole site.
Sketch Section
草图科
Revahouse是由一个互联的网络自动化系统建成的,该系统通过手持设备完全控制,并适应环境条件。hvac系统的设计是为了根据网络信息自动检测室外温度,窗帘在白天会自动关闭和打开。
Revahouse is built with an interconnected network automation system that is fully controlled via handheld devices and adapt to the environmental conditions. The HVAC system is designed in order to automatically detect the outdoor temperature informed by internet-based information, the curtains will automatically close and open during the day & night depending on the sunlight direction throughout the day in order to gain efficiency for the HVAC and reduce the heat inside the house.The next installation program for the house is an active solar-powered one, driven by high energy costs and development of energy-efficient dwellings for the future of architecture.
© Sonny Sandjaya
桑尼·桑贾亚
Architects MSSM Associates
Location Semarang, Indonesia
Architect in Charge Revano Satria, St March
Project Team Aurelia Angela, Stephanie Nastasya
Area 222.0 m2
Project Year 2014
Photographs Sonny Sandjaya, Revano Satria
Category Houses
Manufacturers Loading...
客服
消息
收藏
下载
最近







































