查看完整案例


收藏

下载
© Alejandro Peral
亚历杭德罗·佩拉尔(Alejandro Peral)
架构师提供的文本描述。该物业位于诺德尔塔的洛斯拉各斯,设计为两个交叉栏杆,形成一个T形横梁。底层采用横向撤退之间的土地宽度,并向后花园开放,因此可与主公共房间整合。
Text description provided by the architects. The property, located in Los Lagos, Nordelta, was designed as two crossbars forming a T. The ground floor takes the width of the land between lateral retreats and opens to the back garden, so it can be integrated to the main public rooms.
© Alejandro Peral
亚历杭德罗·佩拉尔(Alejandro Peral)
Ground Floor
© Alejandro Peral
亚历杭德罗·佩拉尔(Alejandro Peral)
此外,该通道被降级,以实现一个慷慨的花园空间在前面,这允许欣赏景观和交叉通风的绿地。
In addition, the access was relegated to achieve a generous garden space in the front, which allows to enjoy views and cross ventilation to the green spaces.
© Alejandro Peral
亚历杭德罗·佩拉尔(Alejandro Peral)
楼上有一套主套房,有浴室和更衣室,两间卧室共用第二间浴室。通过与另一种植物相交的操作,可以在树梢的卧室中捕捉到绿色植物和泻湖的远景,而中央的露台则将其等级划分为一个慷慨的露台。解决了南面完全封闭,没有窗户,以避免视觉接触与毗连的土地。
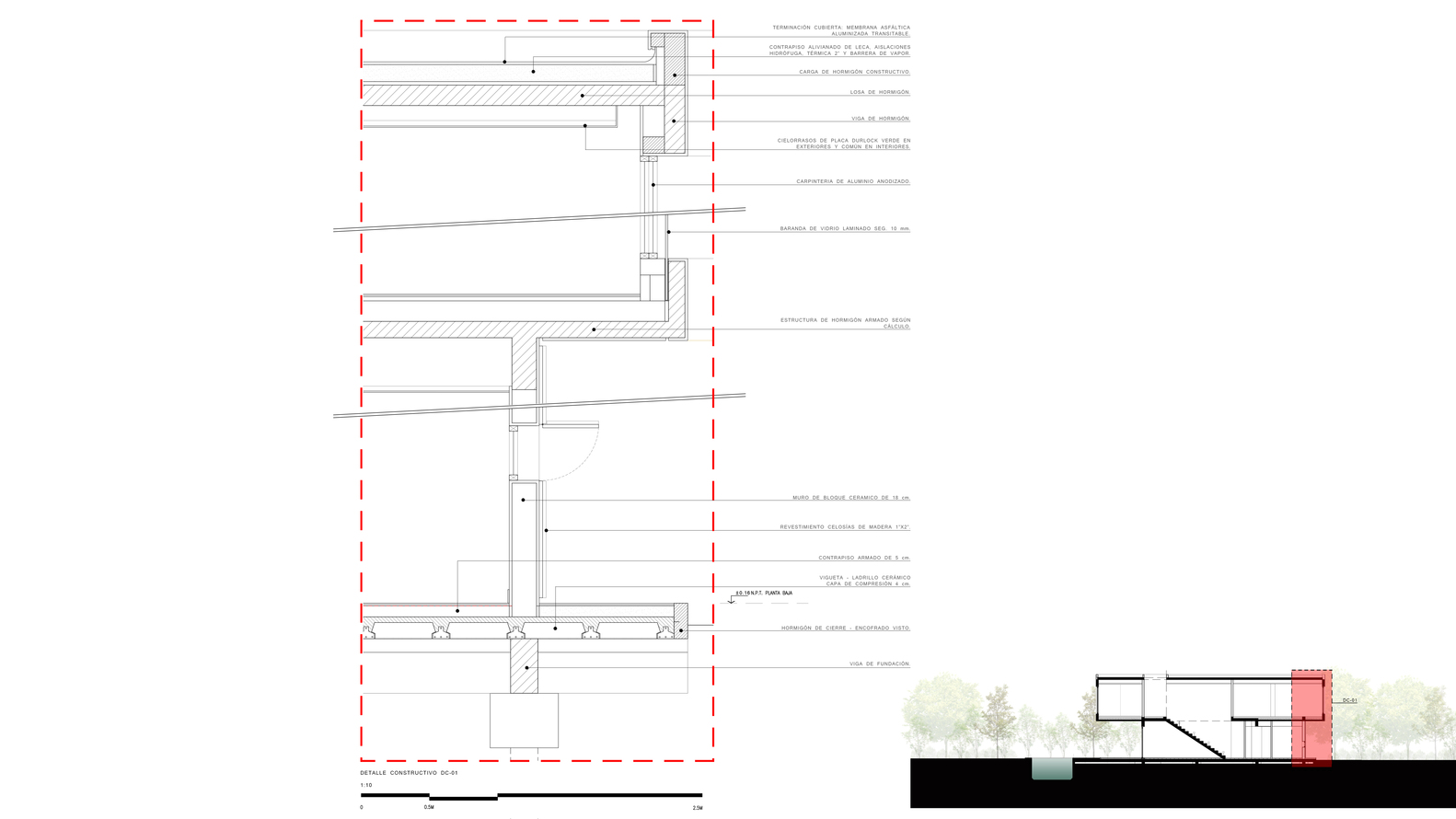
结构和施工解决方案包括钢筋混凝土,RETAK砖墙,以确保最佳的保温,铝木工与DVH和矿物水泥完成。
The structural and constructive solution includes reinforced concrete, RETAK brick walls to ensure optimal thermal insulation, aluminum carpentry with DVH and mineral cement finish.
© Alejandro Peral
亚历杭德罗·佩拉尔(Alejandro Peral)
Architects Estudio GM ARQ
Location Tigre, Argentina
Area 350.0 m2
Project Year 2016
Category Houses
Manufacturers Loading...
客服
消息
收藏
下载
最近





































