查看完整案例


收藏

下载
© Alejandro Peral
亚历杭德罗·佩拉尔(Alejandro Peral)
架构师提供的文本描述。这是一对年轻夫妇的永久家,他们不打算要孩子,至少在中期是这样。因此,该项目避开了封闭社区的通常项目。
Text description provided by the architects. This is a permanent home for a young couple that doesn’t plan on having children, at least in the medium term. So the program escapes the usual projects of closed neighborhoods.
Text description provided by the architects. This is a permanent home for a young couple that doesn’t plan on having children, at least in the medium term. So the program escapes the usual projects of closed neighborhoods.
© Alejandro Peral
亚历杭德罗·佩拉尔(Alejandro Peral)
另一方面,这片土地的正面朝北,所以转向花园的公共空间不会受到直接的阳光照射。为了应对这些限制,主要房间变成了通过房间的南北方向,在必要时实现隐私的视觉障碍。
On the other hand, the land has the front facing north, so public rooms that turn to the garden do not receive direct sunlight. To respond to these constraints, the main rooms become passing through rooms north-south direction, working visual barriers to achieving privacy where necessary.
On the other hand, the land has the front facing north, so public rooms that turn to the garden do not receive direct sunlight. To respond to these constraints, the main rooms become passing through rooms north-south direction, working visual barriers to achieving privacy where necessary.
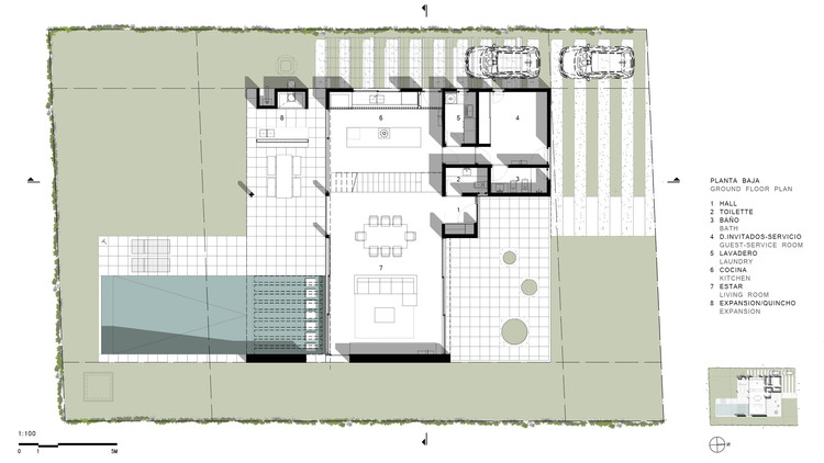
Lower Floor Plan
低层平面图
Upper Floor Plan
上层平面图
在餐厅里,有植物的花园,其体积满足同样的功能。楼上,套房通向一个天井,这保证了阳光的进入,但却切断了街道上的视觉效果。
In the case of the dining room, a garden with plants designed, whose volume fulfills that same function. Upstairs, the suite opens to a patio that guarantees the entrance of the sun but cuts the visuals from the street.
In the case of the dining room, a garden with plants designed, whose volume fulfills that same function. Upstairs, the suite opens to a patio that guarantees the entrance of the sun but cuts the visuals from the street.
© Alejandro Peral
亚历杭德罗·佩拉尔(Alejandro Peral)
Architects Estudio GMARQ
Location Pilar, Argentina
Architects in Charge Arch. Adrian Govetto, Arch. Lucas Mansilla, Arch. Marcelo Forja
Area 200.0 m2
Project Year 2017
Photographs Alejandro Peral
Category Houses
Manufacturers Loading...
客服
消息
收藏
下载
最近

























