查看完整案例


收藏

下载
架构师提供的文本描述。所谓的“智能U-农场”,是韩国科学技术研究所的港内分院,位于港内科技综合体的入口处。虽然该建筑群原有的地形被切断,以创造一个平坦的土地,以建立工厂,智能U农场的布局不损害周围的景观,使主干道沿着南北轴线之间的左和右建筑物,珍惜土地的记忆在松木中间的建筑。在第一个布局上,刚容支部将位于现正占据大楼西部的机械房的后部:在早期阶段,智能U农场实际上是作为一个植被工厂来的,几乎达到了仓库的水平,但是它的搬迁到了机房的前面,需要一座适合主干道风景的建筑立面。
Text description provided by the architects. The so-called Smart U-Farm, which is the Gangneung branch of Korea Institute of Science and Technology, is located at the entry of Gangneung Science and Industry Complex. While the pre-existing topography for the Complex was cut off to create a flat land to build factories, the Smart U-Farm was laid out not to compromise the surrounding landscape so that the main road runs along the North-South axis between the left and right buildings, cherishing the memory of the land in the midst of pinewood. At the first layout, the Gangneung branch was to be located at the back of the mechanical room which is now occupying the western part of the building: at the early phase, the Smart U-Farm had been approached indeed as a vegetation factory, almost reaching the level of warehouse, but its relocation to the front of the mechanical room called for a building facade fit for the scenery of the main road.
© Joonhwan Yoon
尹俊焕(Joonhwan Yoon)
Concept Development
阶段1.场地表面特征研究
Phase1. Study the Surface Features of the Site
作为反映地形地貌作为自然要素之一的基本步骤,我们不仅考察了被山体包围的KIST的地形特征,而且还考察了建立天然植物翼的地点的地形。
As a foundational step to reflect the topographical shape as one of the natural elements, we examined not only the topographical characteristics of KIST surrounded by the mountain, but also the topography of the site on which a natural plant wing will be established.
© Joonhwan Yoon
尹俊焕(Joonhwan Yoon)
阶段2.将失去的地形反射到正面
Phase2. Reflect the Lost Topography into the Facade
通过在正确的正面突出先前存在的地形,这是在立地过程中丢失的,我们打算追求一种与自然沟通的建筑。此外,对于科学研究院内的地区,我们设计了一个研究、试验和培育自然植物的地方,在其正面和右面以生态友好的地块体现地形,以使轮廓线的感觉更加活跃。
By projecting on the right facade the pre-existing topography which was lost in the site-making process, we intended to pursue an architecture that communicates with nature. Also for the area within the KIST, we designed a place to research, experiment on, and cultivate the natural plant by embodying the topography on its front and right facades with eco-friendly blocks so as to enliven the sense of contour lines.
© Joonhwan Yoon
尹俊焕(Joonhwan Yoon)
Function & Circulation Planning
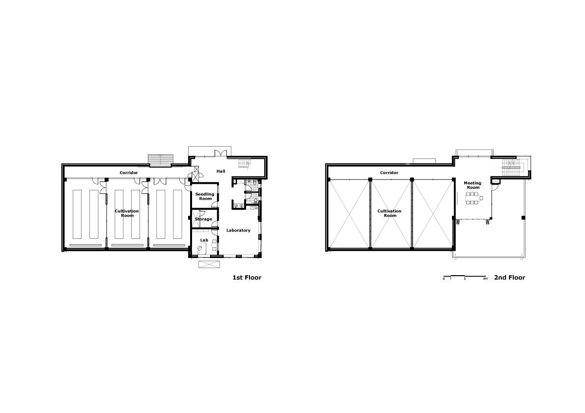
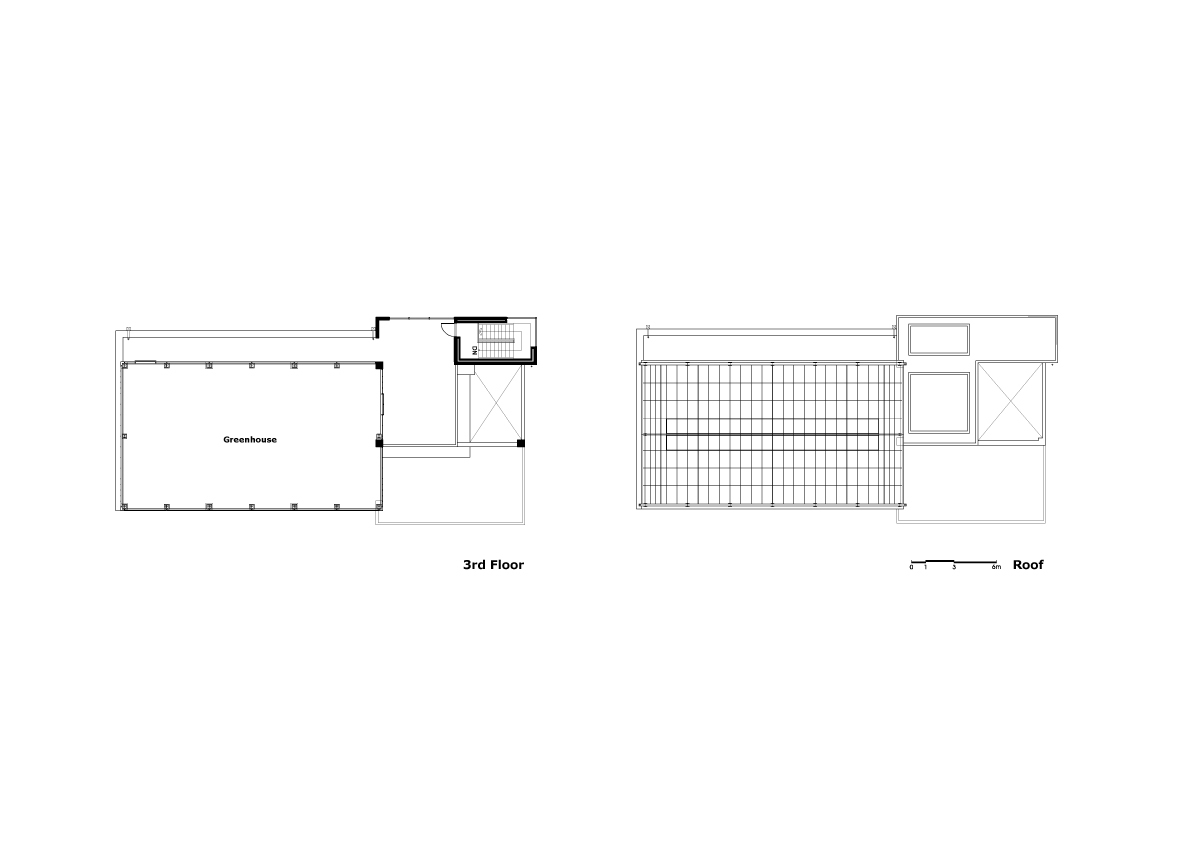
智能U-农场在早期阶段被设计为两层楼,但最终被另外安装了三层温室。幸运的是,温室的物质特性-透明度-并没有影响到底层的功能和外观。地面(1)层最重要的功能是根据蔬菜种类需要相应的环境控制的栽培室:它由三个部分组成,而实验室、办公室和育苗室等功能则是从正门大厅进入的。特别是,为了保持绝育的状态,精心安排了进入栽培室的机会。上楼到二楼,可以看到一间开着的会议室,它与走廊相连,可以俯瞰楼下的栽培室。在三楼,设计了一个玻璃温室,可以通过楼梯和室外通道等循环进入。
Smart U-Farm was designed as two stories in the early phase, but ended up being additionally equipped with the 3rd floor greenhouse. Fortunately, the material characteristic of the greenhouse ― transparency ― did not compromise the function and facade of the lower part. The most important function of the ground (1st) floor is the cultivation room that requires respective environmental controls depending on the kinds of vegetables: it was thus made up of three parts, while such functions as laboratory, office, and seedling cultivation room were made accessible from the main entrance hall. Particularly, the access to the cultivation room was carefully made to maintain the state of sterilization. Going upstairs to the 2nd floor, one can see an open meeting room connected to the corridor which overlooks the cultivation room downstairs. On the 3rd floor, a glazed greenhouse was designed to be accessible through such circulations as stairs and the outdoor passage
© Joonhwan Yoon
尹俊焕(Joonhwan Yoon)
© Joonhwan Yoon
尹俊焕(Joonhwan Yoon)
Architects Architecture Studio YEIN
Location 679 Saimdang-ro, Gangneung, Gangwon-do, South Korea
Architect in Charge Yesun Choi
Design Team Myungsun Lee, Hanhee Park, Jeongmee Kim
Area 680.83 m2
Project Year 2016
Photographs Joonhwan Yoon
Category Research Center
Manufacturers Loading...
客服
消息
收藏
下载
最近




























