查看完整案例


收藏

下载
© Soopakorn Srisakul
(Soopakorn Srisakul)
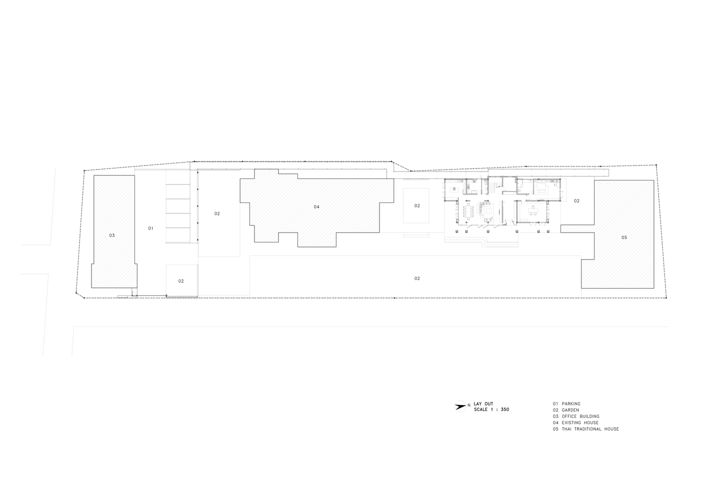
架构师提供的文本描述。位于曼谷Sutthis arnwinitchai路Soi Intamara 29号。这是一个老战车雅库尔家庭的家,大约10年前,由于放弃工程的承包商建造的不正确,它一直无人居住和无法居住。当时,父母打算建造一座房子,让他们的孩子住在一起。从那时到现在,他们的儿子需要建立自己的家庭。因此,需要根据目前的情况和生活方式来改变房子。
Text description provided by the architects. Located at Soi Intamara 29, Sutthisarnwinitchai Road, Bangkok. It’s a home of Laochariyakul Family that has been left unoccupied and uninhabitable about 10 years ago because the incorrect construction from the contractor who abandoned the work. At that time parents intended to build a house for their children to live together. Since then until now, their son requires building his own family. Accordingly, the house needs to be changed following the present context and lifestyle.
Exploded Axonometric
爆炸轴测
基于现有的上下文。感受到为他们的孩子建立一个家的意图。材料和经典家庭风格的启发,父母的热情。同一地点也有泰国传统房屋。这位父亲是个木情人。而他的儿子更喜欢现代风格的房子。它将在同一地区造成不相关的联系。
Based on the context of existing. Feel the intention to make a home for their children. Material and classic homestyle inspired by parent’s passion. There was also Thai traditional house existing on the same site. The father is a wooden lover. While his son prefers modern style house. It will cause irrelevant connections in the same area.
© Soopakorn Srisakul
(Soopakorn Srisakul)
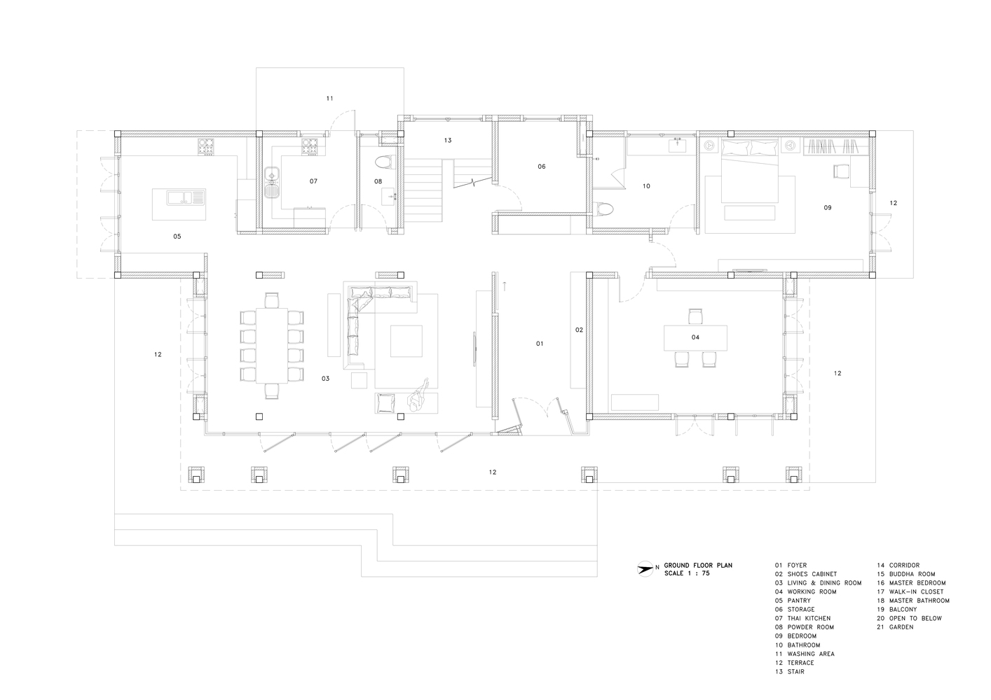
设计理念、建筑立面与原建筑保持主要形态、形式、节奏、凹槽图案。通过减少一些经典细节,去掉前檐和顶部屋檐,然后添加新材料,如眼镜和墙石,使之更加现代。内部空间已经发展为有效的可用性。以前的建筑被划分为由走廊连接的单独的房间。设计师强调开放规划空间,将住宅各点的起居空间连接起来,以达到舒适的日常生活。
The concept of design, façade of building keep the main shape, form, rhythm of column, groove pattern from the original building. By reducing some classical details, removing the front and top eaves then adding new material such as glasses and wall stone to be more modern. Interior space has been developed for effective usability. Previous building was divided into separate rooms connected by corridors. Designer emphasized open plan space to connect living area at each point of the house for comfortable daily life.
© Soopakorn Srisakul
(Soopakorn Srisakul)
Architects I Like Design Studio
Location Khwaeng Samsen Nai, Thailand
Architects in Charge Narucha Kuwattanapasiri, Adisak Thongsatit
Area 500.0 m2
Project Year 2015
Photographs Soopakorn Srisakul
Category Renovation
Manufacturers Loading...
客服
消息
收藏
下载
最近















































