查看完整案例


收藏

下载
© Soopakorn Srisakul
(Soopakorn Srisakul)
架构师提供的文本描述。位于曼谷Soi Prasert Manukitch 25号。该项目周边土地利用主要为荒地和住宅用地。对面的土地是一处修复尸体的地方。
Text description provided by the architects. Located on Soi Prasert Manukitch 25, Bangkok. The project’s surrounding land use is mostly wasteland and dwelling area. The opposite land is a Body Repair & Maintenance Car Garage. Adjacent to the site is a cement plant and wasteland. The land plot has two deeds, with one being a square shape and the other a trapezoid shape. The frontage faces towards the west. With Thailand’s tropical climate, design challenge may derive especially with a glass or translucent materials.
Text description provided by the architects. Located on Soi Prasert Manukitch 25, Bangkok. The project’s surrounding land use is mostly wasteland and dwelling area. The opposite land is a Body Repair & Maintenance Car Garage. Adjacent to the site is a cement plant and wasteland. The land plot has two deeds, with one being a square shape and the other a trapezoid shape. The frontage faces towards the west. With Thailand’s tropical climate, design challenge may derive especially with a glass or translucent materials.
Office Diagram
办公图
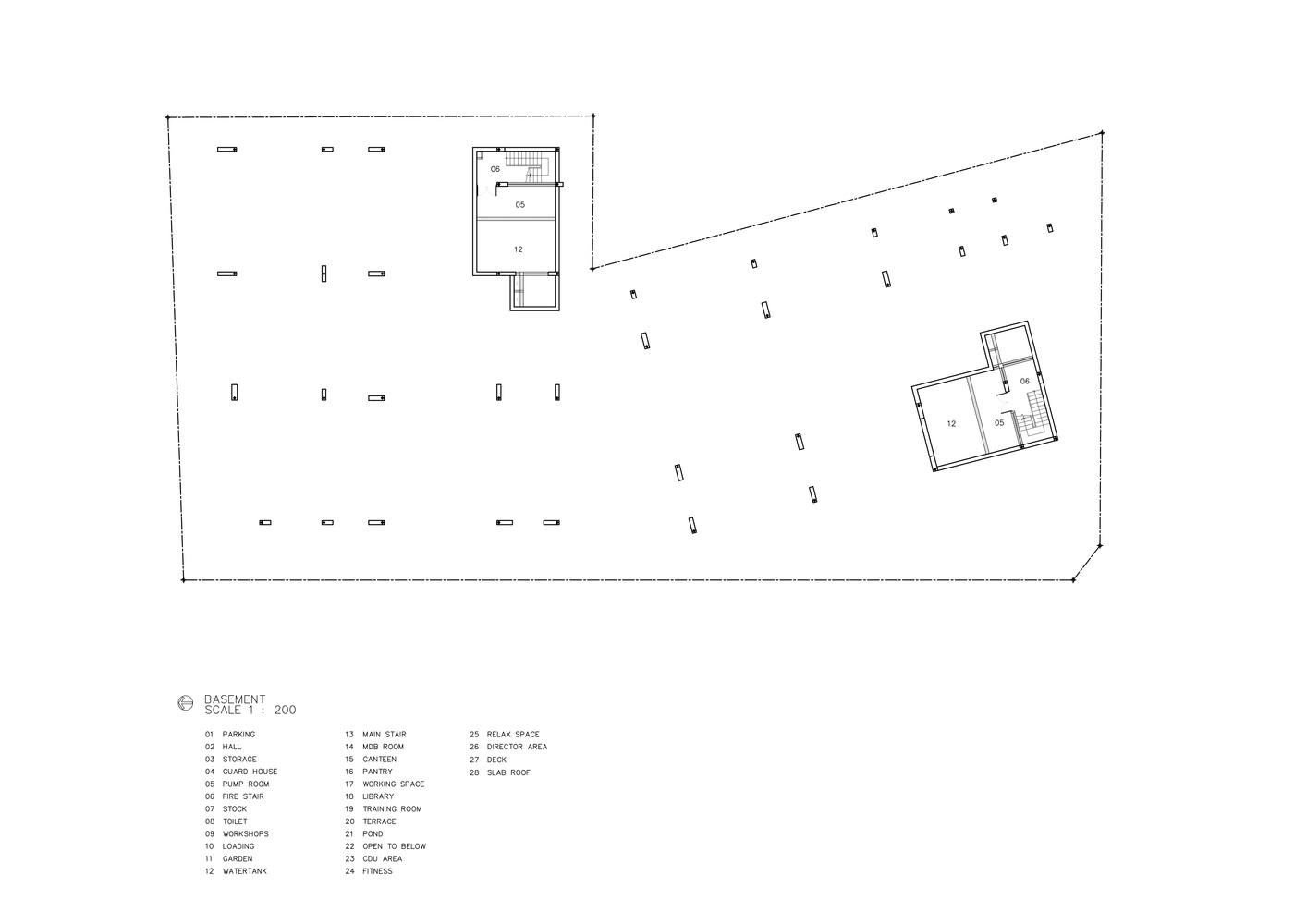
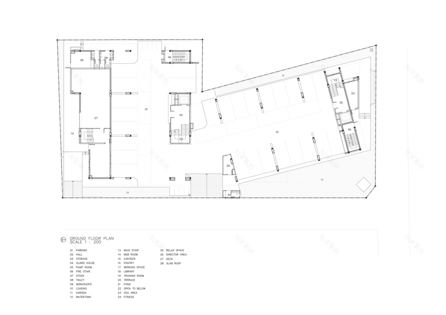
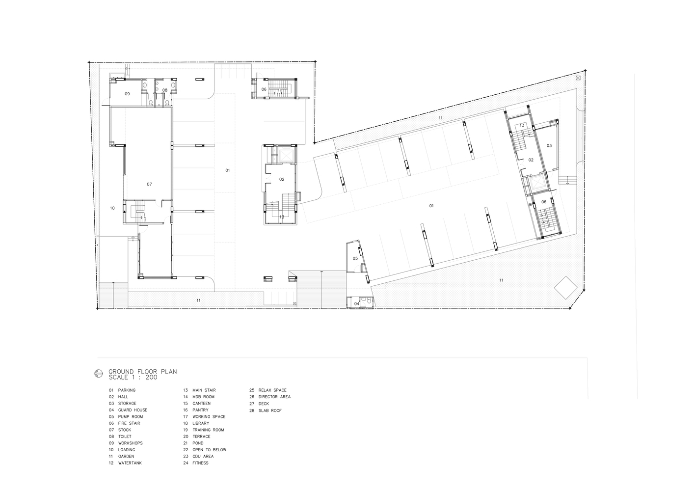
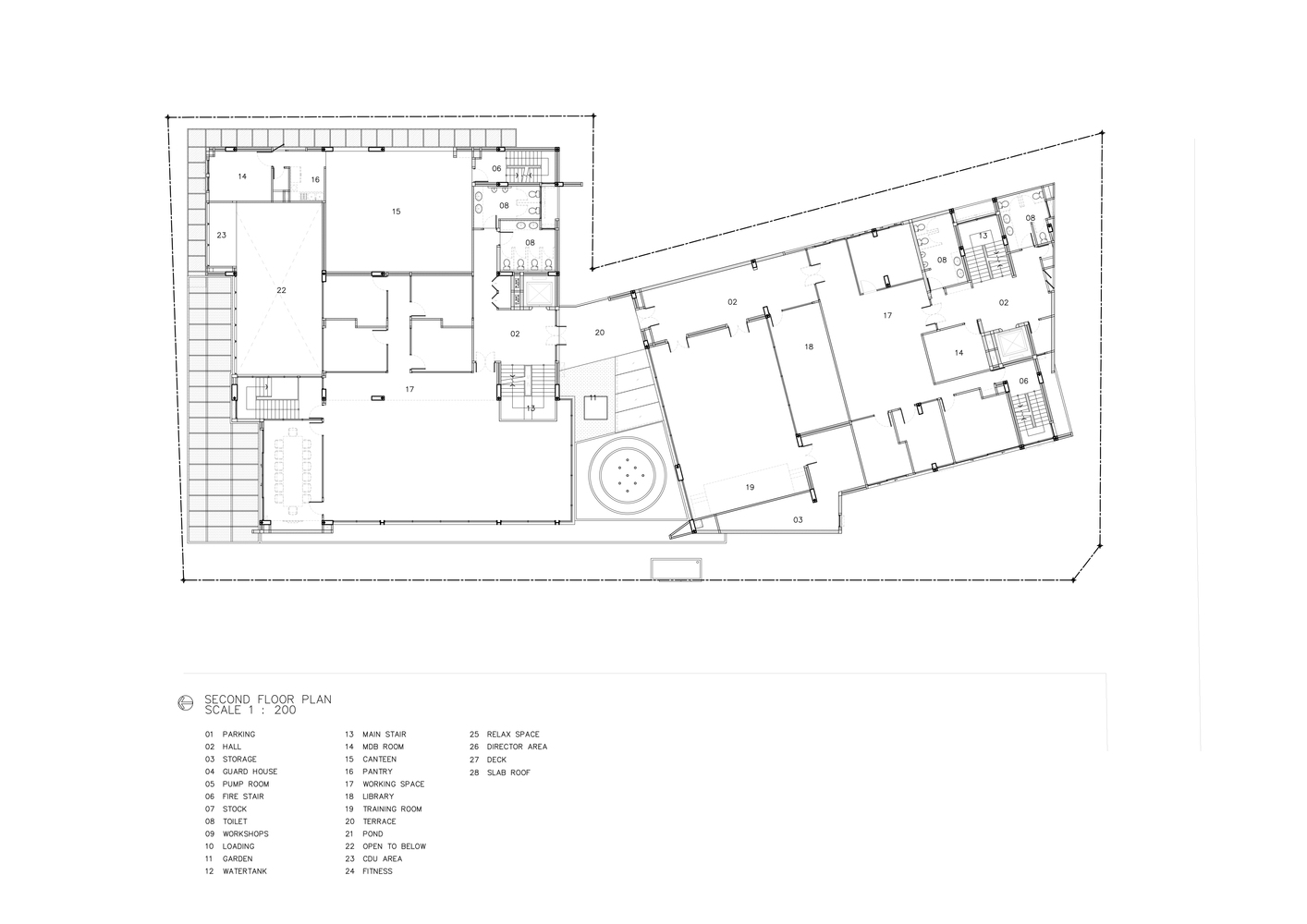
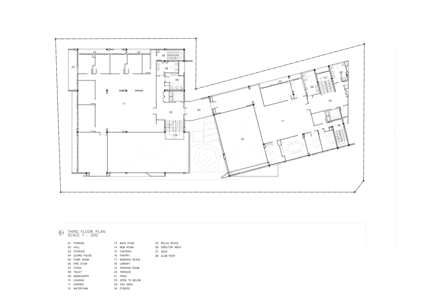
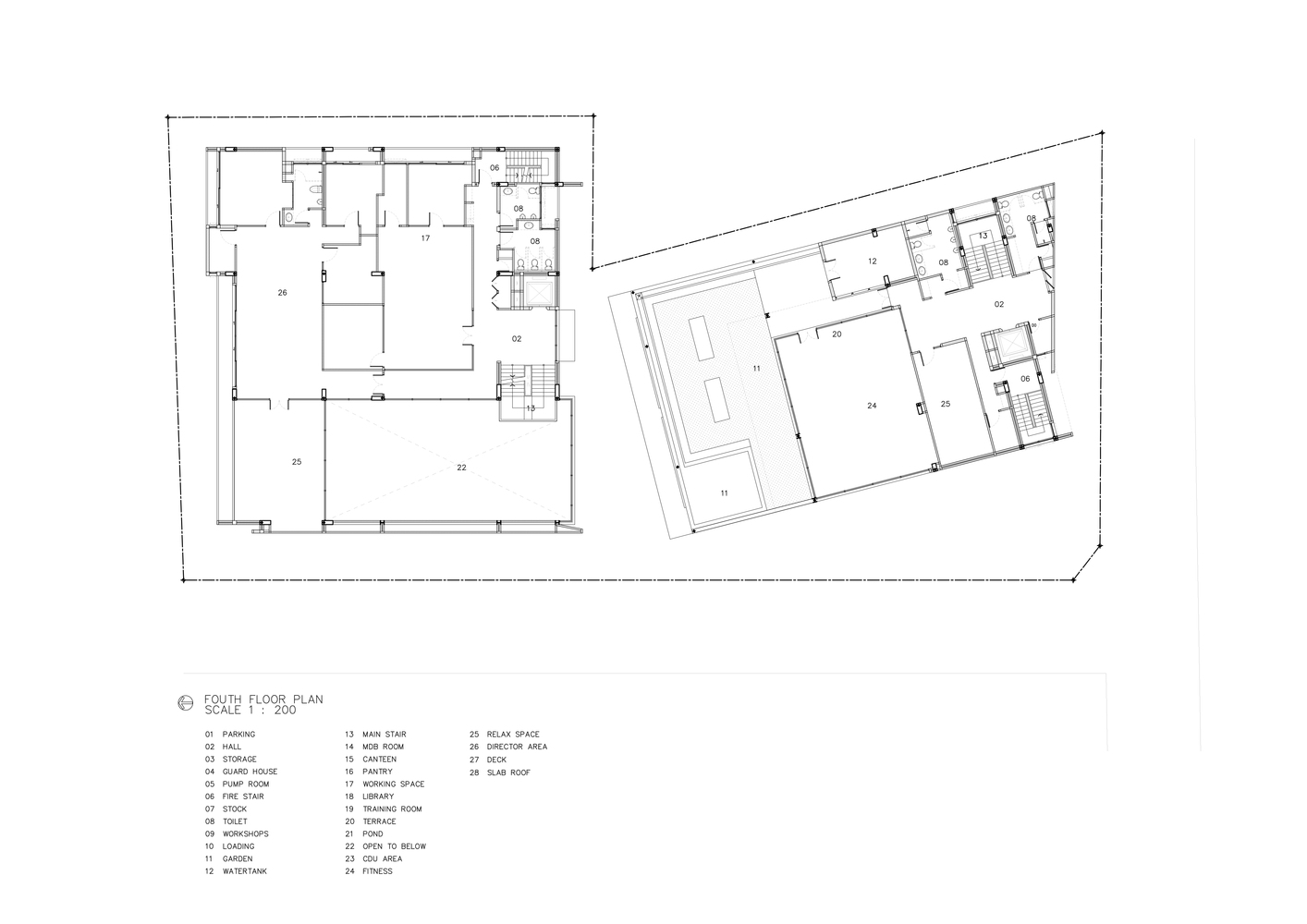
项目业主需要大约4,000平方米的可用面积,由办公室和接待处组成。本工程材料简单,易于维护。设计者根据项目业主的需要安排建筑物的可用区域来分配空间。项目的底层被指定为停车空间和MEP房间。建筑的体量被分成两个大块,以便为视图创建中心球场景观。为在项目中提供阴影,设计人员强调了利用绿色空间。
The Project owner required a usable area of approximately 4,000 square meters consisting office and reception lounge. The materials of this project are simple and easy to maintain. The designers allocate the space by arranging a usable area of the building according to the project owner’s needs. The project’s ground floor is designated to be parking space and MEP room. The building’s massing is separated into two large blocks in order to create a central court landscape for the views. To provide shades at the project, the designer has emphasized utilizing green space.
The Project owner required a usable area of approximately 4,000 square meters consisting office and reception lounge. The materials of this project are simple and easy to maintain. The designers allocate the space by arranging a usable area of the building according to the project owner’s needs. The project’s ground floor is designated to be parking space and MEP room. The building’s massing is separated into two large blocks in order to create a central court landscape for the views. To provide shades at the project, the designer has emphasized utilizing green space.
© Soopakorn Srisakul
(Soopakorn Srisakul)
Sections H,I, J and K
H、I、J和K节
© Soopakorn Srisakul
(Soopakorn Srisakul)
建筑物的西墙和东墙设计为实心混凝土,以阻挡热量进入建筑物。在另一边,北墙和南面的墙壁不关心过热,因此,已设计使用玻璃外墙,以最大限度地发挥景观。入口处的墙壁已经设计好了,把主要的入口引到了视线里。此外,楼上的健身室还提供了高层次的城市景观。
The west and east walls of the building have been designed as solid concrete to block heat from entering the building. On the other side, the northern and southern walls have no concern overheat, and therefore have been designed using glass façade to maximize the views. The entrance walls have been designed bring the main approach into sight. Additionally, the fitness room on the upper floor features a high-level city view.
The west and east walls of the building have been designed as solid concrete to block heat from entering the building. On the other side, the northern and southern walls have no concern overheat, and therefore have been designed using glass façade to maximize the views. The entrance walls have been designed bring the main approach into sight. Additionally, the fitness room on the upper floor features a high-level city view.
© Soopakorn Srisakul
(Soopakorn Srisakul)
Architects I Like Design Studio
Location Soi Prasert Manukitch 25, Khwaeng Chorakhe Bua, Khet Lat Phrao, Krung Thep Maha Nakhon 10230, Thailand
Lead Architect Narucha Kuwattanapasiri
Area 4000.0 m2
Project Year 2014
Photographs Soopakorn Srisakul
Category Office Buildings
Manufacturers Loading...
客服
消息
收藏
下载
最近













































