查看完整案例


收藏

下载
架构师提供的文本描述。Runkelsteiner是意大利博尔扎诺市的一座公寓楼,建在一处安静的地产上,周围是松树和历史建筑。该结构,地面以上三层,一个大型地下室和一个屋顶露台,包含三个全层单元,大梯田俯瞰山脉和典型的南蒂罗尔景观。
Text description provided by the architects. The Runkelsteiner is an apartment building in the city of Bolzano, Italy, built on a quiet property surrounded by pine trees and historic buildings. The structure, with three levels above ground, a large basement and a roof terrace, contains three full-floor units with large terraces overlooking the mountains and the typical landscape of South Tyrol.
Courtesy of JMA
JMA提供
建筑外壳大多是透明的,因此室内充满了自然光,建筑对周围环境的影响较小。在东边,南面和西侧,体积是由薄的白色框架和垂直的铝百叶窗组成的组合设计的,而北面的立面只有很少的开口。白色框架定义了内部布局的不同功能,并创建了独立的梯田,通过无框玻璃外壳显示为内部空间的连续性。铝百叶窗,安装在框架的边缘,是战略性的放置,以提供一些隐私,从邻近的建筑物。特别清晰的玻璃护栏允许将白色框架解读为干净的矩形形状,并允许从内部进行通畅的观察。
The building shell is mostly transparent so that the interiors are flooded with natural light and the construction has a lighter impact on the surroundings. On the East, South and West side the volume is designed with a combination of thin white frames and vertical aluminum louvers, while the North elevation has very few openings. The white frames define the different functions of the interior layout and create independent terraces that appear as the continuity of the interior spaces through the frameless glass enclosure. The aluminum louvers, installed at the edge of the frames, are placed strategically in order to provide some privacy from the neighboring buildings. The extra-clear glass parapets allow to read the white frames as clean rectangular shapes and grant unobstructed views from the inside.
Courtesy of JMA
JMA提供
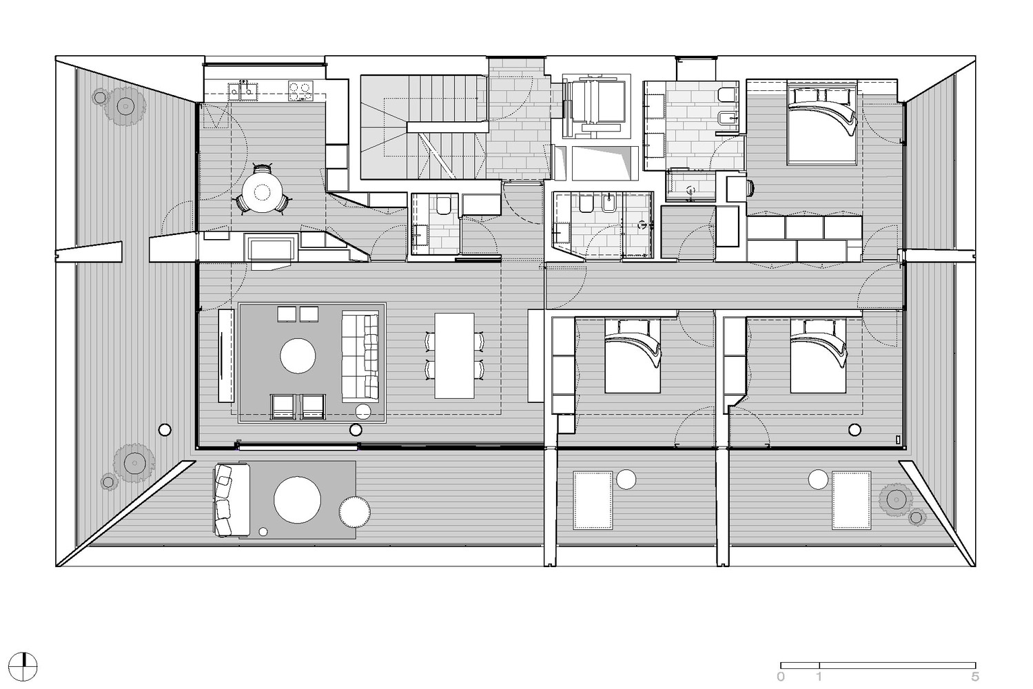
Ground Floor Plan
Courtesy of JMA
JMA提供
该建筑达到了最高的能源性能认证水平,原因是立面三层玻璃、北立面有厚厚的绝缘层、屋顶上安装了光伏和太阳能电池板,以及每个单元都安装了新鲜空气通风系统。在设计阶段考虑了计算和阴影分析,使太阳无法在较温暖的夏季到达室内,并使公寓过热。
The building reaches the highest level of energy performance certification due to the triple glazing of the façades, thick insulation on the North elevation, photovoltaic and solar panels installed on the roof, as well as a fresh air ventilation system in each unit. Calculations and shadow analysis have been taken into consideration during the design phase, so that the sun could not reach the interiors during the warmer summer months and overheat the apartments.
Courtesy of JMA
JMA提供
玻璃外壳采用热破碎钢型材系统设计,使门框更加纤细,南部露台上的大型滑动玻璃门以更舒适、更简单的方式被机动化。门和滑动门框都在外面被玻璃覆盖,并与侧面固定的玻璃齐平。大的固定玻璃板完全插入地板,天花板和垂直侧,以允许一个连续空间的最大意义。
The glass shell is designed with a thermally broken steel profile system to keep the door frames slimmer, and the large sliding glass door on the South terrace is motorized for a more comfortable and simple use. Both the door and the sliding door frames have been covered by glass on the outer face, and they result flush with the fixed glass on the sides. The large fixed glass panes are completely inserted on the floor, ceiling and vertical sides, to allow the maximum sense of a continuous space.
Courtesy of JMA
JMA提供
一楼和一楼的单位设计有三间卧室和两个半浴室,而二楼的单位则有两间卧室和两间浴室的布局。(鼓掌)
The Ground and First Floor units are designed with three bedrooms and two and a half bathrooms, while the Second Floor unit has a two bedroom and two bathroom layout.
Courtesy of JMA
JMA提供
每套公寓都选择了橡木板作为室内地板,并为所有的露台铺上了木地板。所有的磨坊,厨房和门都是定制的。浴室用不同尺寸的喷砂白色石灰石长方形瓷砖夹杂,铺有动态图案,梳妆台设计采用深色大理石顶部和天然橡木抽屉。每个单元都配备了一个集成在生活区磨坊系统中的黑色钢壁炉。
For each apartment, oak planks have been selected for the interior floors and ipe wood decking for all the terraces. All the millwork, kitchens and doors have been custom designed. The bathrooms are cladded with sandblasted white limestone rectangular tiles of different sizes, laid with a dynamic pattern, and the vanities are designed with a dark marble top and natural oak drawers. Each unit is equipped with a black steel fireplace integrated in the living area millwork system.
Courtesy of JMA
JMA提供
客服
消息
收藏
下载
最近














































