查看完整案例


收藏

下载
© David Frutos
(C) 戴维·弗鲁托斯
架构师提供的文本描述。在爱尔切,阿利坎特,这个独立的单身家庭的房子是建立在一个极简和雕塑的灵魂。ZüV 别墅是由托马斯·阿马特建筑工作室 (Pablo Belda Tomás Amat) 设计和管理的。工作室找到了一个解决这个复杂且要求很高的项目的方法,该项目试图为一对有两个孩子的夫妇实现隐私和质量,他们从一开始就对有一个非常清晰的认识,他们的新家应该考虑和传达的是简单、优雅和功能。
Text description provided by the architects. In Elche, Alicante, this detached-single family house was built bearing a minimalistic and sculptural soul. The Villa ZüV- was designed and managed by Tomás Amat Architectural Studio, Pablo Belda + Tomás Amat. The Studio was able to find a solution to the complex and highly demanding project that sought to achieve both privacy and quality for a couple with two children who had from the beginning a very clear idea of what their new home should contemplate and convey, that being simplicity, elegance and functionality.
© David Frutos
(C) 戴维·弗鲁托斯
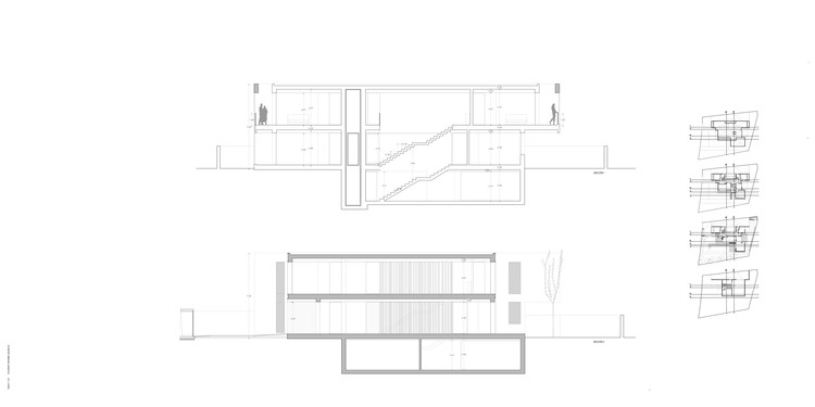
这就是结果。这座别墅建在 1000 平方米地块的 590 平方米上,位于城市的一个综合住宅区,周围三面都是房屋。正如建筑师所指出的那样,项目“在地块内的足迹是根据该区域的管理限制和主立面的方向来定义的”。这两个因素“也影响了房子的定义和表达成三个纵向的体积,给它一个支离破碎的形象,每个部分的需求计划的不同部分”。
This was the result. The villa is built on 590m2 of the 1000m2 lot, in a consolidated residential neighbourhood of the city surrounded by houses on three of its sides. As the architects indicate, the project "footprint within the plot was defined based on the regulatory limitations of the area and the orientation of the main facade". These two factors " also influenced the definition and articulation of the house into three longitudinal volumes that give it a fragmented image, each section a different part of the needs program".
© David Frutos
(C) 戴维·弗鲁托斯
© David Frutos
(C) 戴维·弗鲁托斯
ZüV 别墅分布在两层:地面以上和地下室。一进街面的房子,就有厨房、客厅、书房、厕所和客房。前两个开放到花园,并通过极简和可伸缩的铝木工连接到它,允许内部-- 外部之间的完全连接。边界被稀释而不失去任何隐私。这个出口的水平滑动铝门保护了别墅的内部生活,不让别人看到,也遮住了落日的入口处。游泳池和花园区的全景和 ZüV 别墅居民的隐私也得到了保证。
The Villa ZüV is distributed on two floors: above ground level and a basement.
On entering the house at street level, there is a kitchen, living room, study, toilet and guest room.
The first two open to the garden and are connected to it through minimalistic and retractable aluminum carpentry that allows for a total connection between the interior-exterior.
The borders are diluted without losing any of the privacy.
The horizontal sliding aluminum doors in this exit protect the interior life in the villa from the view of others and shade the entrance of the setting sun.
The panoramic views towards the swimming pool and the garden area are guaranteed, as is the privacy of the residents of Villa ZüV.
Ground Floor Plan
一个令人印象深刻的楼梯连接了一楼和地下室,这是该项目最突出的特点。楼梯的设计不仅从形式和结构的角度,而且还寻求它的雕塑价值,以享受与每一步。作为房屋的核心元素 (核心),它有着轻的审美吸引力,尽管它是用混凝土建造的。它的两侧是玻璃板和木型材的保护结构。其设计平衡和谐,分别对比了橡木材料、冷暖材料的审美品质。
An impressive staircase connects the first floor and the basement, designed to be the project’s most prominent feature. The staircase was designed not only from a formal and structural point of view, but also seeks for its sculptural value to be enjoyed with each step. As the central element of the house (the inner core of it) it has light aesthetic attraction despite being built with concrete. It is flanked by glass sheets and a protective structure made of wooden profiles. Its design is balanced and harmonious, beautifully contrasting the aesthetic qualities of the oak materials, cold and warm materials respectively.
© David Frutos
(C) 戴维·弗鲁托斯
天然阳光穿透木板,而入口和不同的走廊仍然遮挡在上面和下部的地板上。这些木条的不规则排列唤起了一种节奏感和运动感,光线在人行道上照耀着,创造了千千万万的细微差别和音调。
Natural sunlight penetrates through the wood paneling while the entrance and the different corridors remain shaded on the upper and lower floors. The irregular arrangement of these wooden slats evokes a sense of rhythm and movement with beams of light shining through and creating a set of a thousand nuances and tones on the pavement.
房子的上层是客厅和电视区,还有三间大卧室。每个人都会看到一个不同的立面,有一个私人浴室和露台。所有这些房间都由一条走廊连接起来。
The upper level of the house hosts the living room and TV area, as well as three large bedrooms. Each looks onto a different facade with a private bathroom and terrace. All these rooms are connected by a corridor.
© David Frutos
(C) 戴维·弗鲁托斯
车库和设施室位于地下室层,以免失去指定给花园的可利用的地面空间。这个主要的外部区域是在长方形游泳池周围,也有一个厨房和餐饮空间。一个大型双高门廊与微水泥整理,作为一个平台,提高了别墅的分数形象。在别墅的后面还有另一个户外区域,专门为烧烤和其他美食活动而设计,作为一家人和接待游客时可以一起享受。
The garage and facilities rooms are located on the basement level so as not to lose utilizable floor space designated to the garden. This main exterior area is raised around the rectangular pool to which, also features a kitchen and dining space. A large double height porch with micro-cement finishing serves as a terrace and enhances the fractional image of the villa. In the back of the villa there is another outdoor area designed especially for barbecues and other gastronomic events with which to enjoy as a family and when receiving visitors.
应该特别提到本地的绿色物种,特别是棕榈树,它在 ZüV 别墅的景观区发光,以及其他进口植物,这些植物为房子的外部增添了异国情调和活力。
A special mention should be made of the native green species, especially the palm tree, which shine in the landscaped areas of Villa ZüV. As well as other imported plants that add an exotic and exuberant touch to the exterior of the house.
© David Frutos
(C) 戴维·弗鲁托斯
豪华材料和极简设计
Luxurious materials and minimalist design
在任何这种风格的住宅项目中,室内设计所用的质量和材料对成品都有很大的影响。在规划和开发 ZüV 别墅时,这些细节是业主的优先事项,列出了具体要求。他们想要高端的优质涂料,以永恒的外观设计一个极简和现代的设计,反过来,将给房子一个和谐和舒适的美学。
In any residential project of this style, the quality and materials used in the interior design make a big difference to the finished product. In the planning and development of Villa ZüV, these details were priorities for the owners, laying out specific requirements. They wanted high-end quality coatings with a timeless look for a minimalist and contemporary design that, in turn, would give the house a harmonious and cozy aesthetic. © David Frutos
(C) 戴维·弗鲁托斯
为了实现这一点,汤姆·阿马特和巴勃罗·贝尔达工作室选择了在别墅 ZüV 内部主要使用混凝土、微型水泥和天然木材。在潮湿的房间 (厨房和浴室),技术水泥地板安装在灰色色调中。浴室的顶部也有不同颜色的技术水泥墙,这给这些房间带来了一种更深的感觉。在厨房里,使用乡村橡木板存储模块,烤箱和酒窖塔是明显的特点,以及与那些与大理石台面平行的岛桌。
To achieve this, the Tomás Amat and Pablo Belda Studio opted for the predominant use of concrete, micro-cement and natural wood in the interior of Villa ZüV. In the wet rooms (kitchen and bathrooms) tecno-cement flooring was installed in grey tonality 2. The bathrooms are also topped with tecno-cement walls of different colours, which gives these rooms a sensation of greater depth. In the kitchen, the use of rustic oak in the panelled storage modules and the oven and wine cellar towers are clear features, as well as the island table in parallel to those with marble countertops. © David Frutos
(C) 戴维·弗鲁托斯
公共日间、大厅和走廊 (起居室、餐厅、休闲厅、走廊和大厅) 以及私人和夜间活动区域 (卧室) 铺有陈年的天然橡木地板。主卧室,除了双高的主房外,还有覆盖其垂直墙壁的技术水泥黑色,创造了有趣的焦点,使这些宽敞的空间充满了明显的连续性,就好像它们说着同一种语言,彼此连接在一起。
The communal day rooms, halls and corridors (the living room, dining room, leisure halls, corridors and halls) and the private and nocturnal areas (bedrooms) are paved with aged natural oak flooring. The master bedroom, in addition to the double height main room, has tecno-cement black covering its main vertical walls, creating focal points of interest that complete and fill these spacious spaces with a demonstrated continuity, as if they spoke the same language and were connected to each other.
天然橡木和白色漆木滑动和悬挂门是房子内部设计的必备品,这是整个设计的关键要素。在装饰层面上,它们是简约和简约家具的缩影。选择布置房间的部分和谐而平衡,特别是沙发、扶手椅、桌子、椅子、床。设计中的每一个元素都有直线和精巧的线条,属于中性色范围 (灰度和土色调),最终的结果再好不过了。
Natural oak and white lacquered wood sliding and hanging doors were a must for interior design of the house, a key element of the overall design. At a decorative level they are the epitome of simplistic and minimalistic furniture. The pieces chosen to furnish the rooms coexist in harmony and balance, particularly the sofas, armchairs, tables, chairs, beds. Each element of the design has straight and refined lines and belongs to a neutral chromatic range (grayscale and earth tones) for a final result which couldn’t be finer.
© David Frutos
(C) 戴维·弗鲁托斯
Architects Tomás Amat Estudio de Arquitectura
Location Elda, Spain
Architects in Charge Pablo Belda, Tomás Amat
Builder Sector Obra S.L.
Area 590.0 m2Project Year 2017
Photographs David Frutos
客服
消息
收藏
下载
最近










































