查看完整案例


收藏

下载
Somjai House:当地手工制作
这所房子主要是作为业主退休后的家而设计的,同时也是作为CocoNutNoom度假胜地的一个招待会,在那里,家人、朋友和客人可以来拜访,玩得很开心。
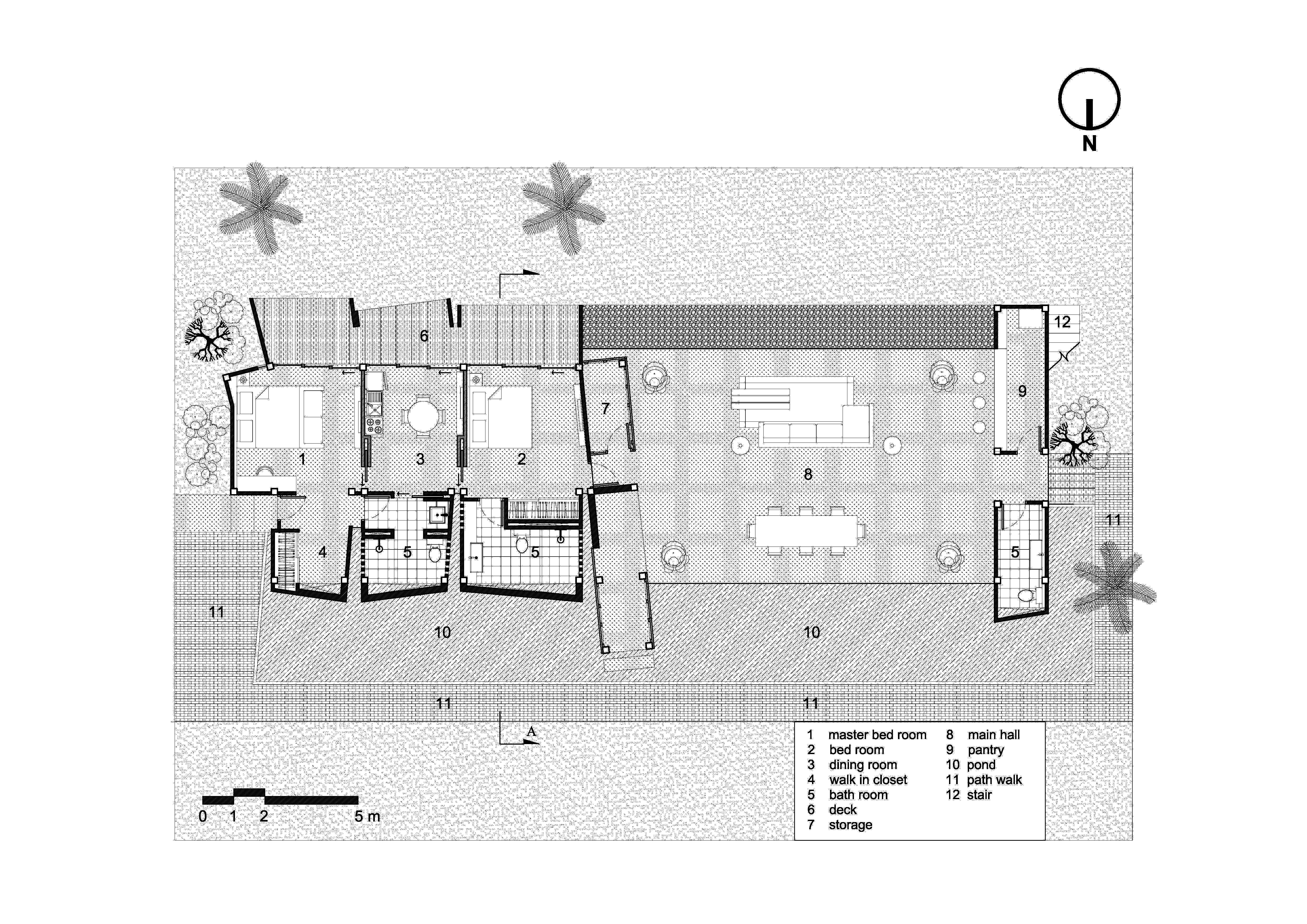
这座建筑由一间主卧室、一间客房和一间家庭厨房组成。大楼的主大厅是一个灵活的多用途空间.它可以用作生活空间,聚会场所,咖啡厅,甚至瑜伽区。上层的设计是为了提供被包围的椰子园、大海、塞缪尔岛和山丘的全景。
建筑形式的线条与建筑后面山丘的天际线有关,这使得风在弯曲的设计中畅通无阻。建筑物的正面设计成开放的角度,可以看到大海的全貌。悬臂梁的概念是用来保护建筑物免受炎热的阳光照射。
主要的颜色是红色,使建筑从椰子园的绿色和大海的蓝色中脱颖而出。砖和抛光混凝土是由于冷却性能,以保护房屋免受高温,并由于当地建筑工人的专业知识。细铁梯亦显示本地工人的工艺,他们是码头的建筑工人,擅长金属工作。
Firm NPDA studio
Type Residential › Multi Unit Housing Private House
STATUS Built
YEAR 2015
SIZE 0 sqft - 1000 sqft
BUDGET $0 - 10K
keywordsarchitecture, architecture news, interiors, interior design, portfolio, spec, brands, marketplace, products Somjai House
关键词建筑、建筑新闻、室内设计、组合、规格、品牌、市场、产品
客服
消息
收藏
下载
最近
































