查看完整案例


收藏

下载
架构师提供的文本描述。几年后,我们第一次委托工作,在CASA ROC,然后是双人间,中华民国立方体和G-ROC,我们进行了最后的公寓装修在同一物业,位于巴塞罗那附近的戈蒂科。
Text description provided by the architects. Some years after our first commissioned work at CASA ROC, followed by TWIN HOUSE, ROC CUBE and G-ROC, we carried out the final apartment renovation in the same property, located in the Barcelona neighbourhood of Gótico.
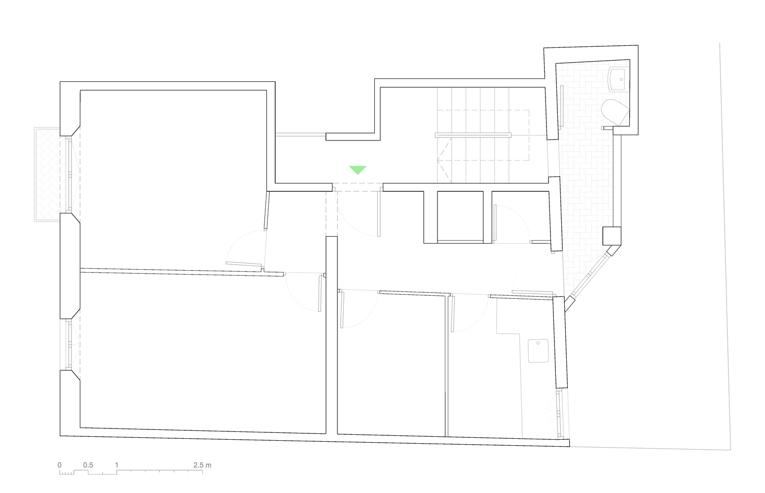
Axonometry
考虑到以前项目的经验,这一次我们决定取消我们认为多余的任何东西,留给我们一个干净的、有结构的围栏,并给予我们更大的自由。
With the experience of the previous projects in mind, this time we decided to do away with anything that we considered to be superfluous, leaving us with a clean, structural enclosure and granting a greater degree of freedom.
© Yago Partal
(Yago Partal)
功能简约,类似于以前的公寓,是开发一套带有双卧室、厨房面积、餐厅、客厅和完整浴室的房子。
The functional brief, similar to that of the previous apartments, was to develop a house with a double bedroom, kitchen area, dining room, living room and complete bathroom.
© Yago Partal
(Yago Partal)
每个不同的用途都被安排成通过现有的窗口直接连接到室外空间。与以前的项目一样,白天的区域位于主立面,利用阳台和窗户的自然光线。
Each of the different uses have been arranged in such a way as to be connected directly with the outdoor space via the existing windows. Just as with the previous projects, the daytime area was positioned along the main façade, capitalizing on the nature light from the balcony and window.
© Yago Partal
(Yago Partal)
这间卧室位于公寓后面安静得多的地方,由于一扇恢复了的窗户,它是通风的。还可以通过相邻的浴室进入后阳台,这间浴室本身就是洗衣房。
The bedroom, located at the much quieter rear of the apartment, is ventilated thanks to a restored window. There is also access to rear balcony via the adjacent bathroom, which itself doubles up as a laundry room.
© Yago Partal
(Yago Partal)
安装了钢型材以加固已产生裂缝的结构墙。我们使用这些配置文件不仅定义了浴室和厨房的布局,而且还用于安装和照明系统。同时,这使我们能够优化房间的体积,并创造宽敞的,头顶的存储区域。
Steel profiles were installed to strengthen the structural walls, which had developed cracks. We used these profiles not only to define the layout of the bathroom and kitchen, but also to house the installations and lighting systems. At the same time, this allowed us to optimize the volume of the rooms and create spacious, overhead storage areas.
© Yago Partal
(Yago Partal)
在规模较小的房屋中,主要结构单元的布置在同一水平上留下了有限的存储空间,在这种情况下,架空存储可以被证明是一种有效的替代方案。在浴室和厨房上方建造阁楼,是存放较少经常使用的物品的理想场所。
In smaller houses, where the arrangement of the main structural elements leaves limited space for storage on the same level, overhead storage can prove to be an effective alternative. The construction of the mezzanine level above the bathroom and kitchen, is the ideal place for storing less frequently used possessions.
© Yago Partal
(Yago Partal)
在材料方面,我们使用了一种预先存在的覆盖植物指纹的墙壁.这既保留了深度感,也创造了视觉效果,将真正的植物与它们背后的印刷图像并置在一起。
In terms of materials, we made use of a pre-existing wall covering with plant prints. This retained the sense of depth and also created a visual effect, juxtaposing real plants with the printed images behind them.
© Yago Partal
(Yago Partal)
我们还能够保留地砖整个大部分的财产。在不可能的情况下,我们使用了波特兰水泥。与以前的项目一致,我们采用了小版面瓷砖和木制家具等成品,以及存储空间和绘图的黑色。这个色彩主题继续在厨房,浴室和卧室的一些分区。
We were also able to retain the floor tiles throughout most of the property. Where this was not possible, we used portland cement. In line with the previous projects, we employed finishings such as small format tiles and wooden furniture, as well as the black colour of the storage spaces and draws. This colour theme was continued in some of the partitions in the kitchen, bathroom and bedroom.
© Yago Partal
(Yago Partal)
我们在结束时的干预方式,就像在CASA ROC、孪生宫、中华民国立方体和G-ROC那样,围绕着重建和巩固建筑物的原有特征。空间被分割成白天的区域-在房子喧闹的部分-卧室在后面。
The approach of our intervention at END THE ROC, as with those at CASA ROC, TWIN HOUSE, ROC CUBE and G-ROC, revolved around the restoration and consolidation of the building’s original character. The space was split into the daytime area - in the noisier part of the house - with the bedroom to the rear.
© Yago Partal
(Yago Partal)
最后,我们将一些房间的空间划分为两层,从而最大限度地利用了房产的高度。这使房屋的实际体积最大化,并创造了宁静的区域。
Finally, we made the most of the height of the property by dividing the space of some rooms into two levels. This maximised the actual volume of the house and resulted in the creation of restful areas.
Architects nook architects
Location Barcelona, Spain
Area 45.0 m2
Project Year 2017
Photographs Yago Partal
Category Apartment Interiors
Manufacturers Loading...
客服
消息
收藏
下载
最近


















