查看完整案例


收藏

下载
© Joonhwan Yoon
尹俊焕(Joonhwan Yoon)
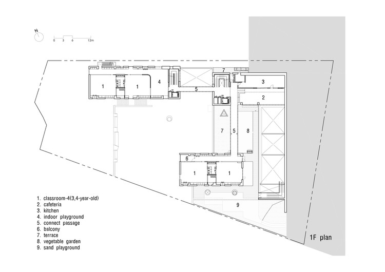
First floor plan
一楼平面图
架构师提供的文本描述。Naver Imae托儿所建立在本当的东边,是一所托儿所,有300名学生。有了一个大学规模的花园,一个跨越场地十多米的斜坡,以及在一个绿地内法定建筑覆盖率为20%的要求,一个新型托儿所的设计计划已经启动。
Text description provided by the architects. The Naver Imae Nursery School, established on the eastern edge of Bundang, is a nursery school that teaches 300 students. with a college scale garden, a slope that extends more than ten metres across the site, and the requirement of a 20% legal building coverage ratio within a green area, a design plan for a new type of nursery school was initiated.
© Joonhwan Yoon
尹俊焕(Joonhwan Yoon)
© Joonhwan Yoon
尹俊焕(Joonhwan Yoon)
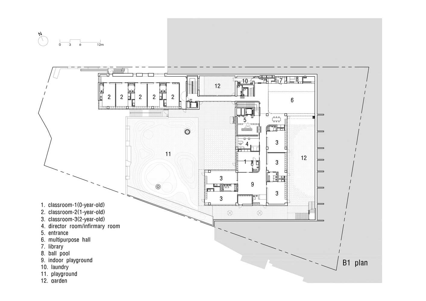
该建筑物利用自然分级场地,分为三层:最低层的停车场和辅助设施,上两层的托儿所设施。孩子们得到了一所安全的学校,学校的禁区可以容纳所有的停车需求和公共汽车转弯。通过有效地利用倾斜的场地,在规划过程中就有了一个与地面接收自然光条件相同的地下空间,除顶层外,所有楼层都与地面接触,这意味着几乎每个幼儿园教室都有一个前院。300名学生分散在三个不同的建筑单元中,通过地下柱连接起来。
Elevation 01
Elevation 01
Section 01
Section 01
© Joonhwan Yoon
尹俊焕(Joonhwan Yoon)
这三座建筑从东到西排成一排,中心是操场,拥抱着南方温暖的阳光。在教室之间放置模块化的组件,组成休息室和游戏室。随着坡度的上升,建筑物的高度逐渐上升,自然与周围的山景相融合。消色差水泥砖和裸露混凝土饰面的物理性能成为自然的背景,并与周围的绿色相伴。
These three buildings are placed in a row from east to west, with the playground at the centre, embracing the warm sunlight from the south. Modularized plies were placed between classrooms to compose the rest room and playroom. As the building's height gradually escalates following the incline upward, it naturally assimilates with the surrounding mountain scene. The physical properties of the achromatic cement bricks and exposed concrete finishing become nature's background and goes along with the surrounding green.
© Joonhwan Yoon
尹俊焕(Joonhwan Yoon)
Architects D•LIM Architects
Location Bundang-gu, Seongnam-si, Gyeonggi-do, South Korea
Category Kindergarten
Team Yeonghwan Lim, Sunhyun Kim
Design Team Park Raehoon, Park Jisun, Shin Aeri, Kim Jungtae, Park Jinsun
Area 5356.0 m2
Project Year 2017
Photographs Joonhwan Yoon
Manufacturers Loading...
客服
消息
收藏
下载
最近











































