查看完整案例


收藏

下载
奥贝维利是一个甜蜜和混乱的郊区,位于巴黎北部。查理斯·蒂伦街看上去像镇上最混乱的街道,但当我们仔细观察时,我们意识到,东侧惊人的80年代建筑被称为“蓝色屋顶”(或蓝精灵),有效地表达了巨大的塔楼、小房子和墓地之间的对比。
蓝精灵都是菲乌马尼设计的
野兔建筑师们选择用他们自己的工具完成这项工作,重新诠释蓝色屋顶设计师的原始目标。它们扩展了建筑物的基础,并设计了大型垂直墙,以供该地区的塔楼参考。然后,他们以自己的方式发展了一个与附近墓地的亭子和石碑相关的规模等级。蓝色被包层中天空的反射所整合。
最后,他们为“蓝色屋顶”做了一张脸。一种弹出式结构,可能是从一本书,折叠的巨大文件,并置大窗户完全开放的南方。
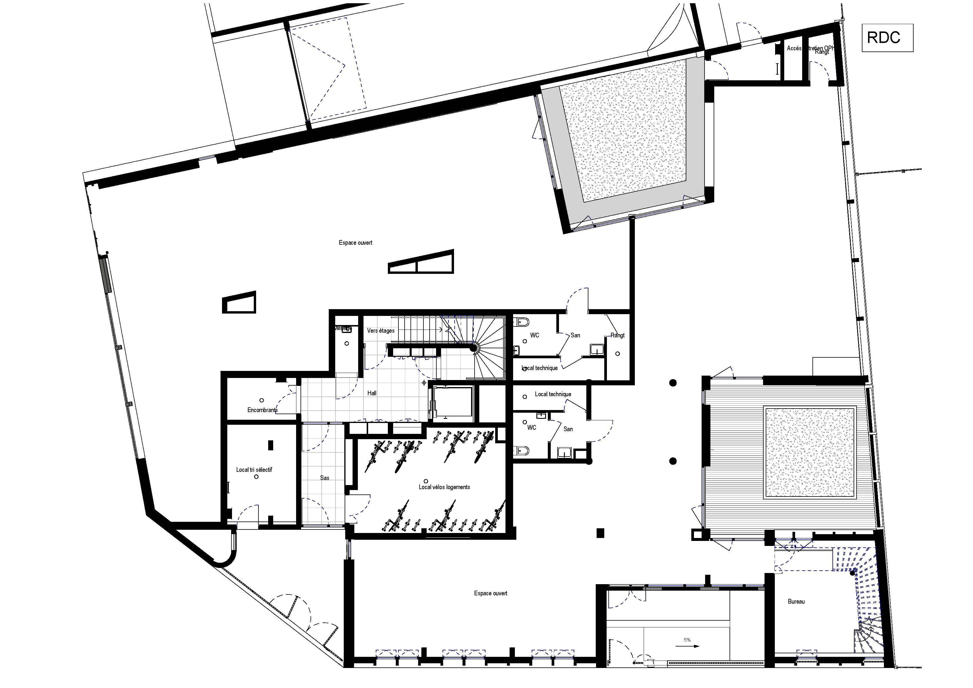
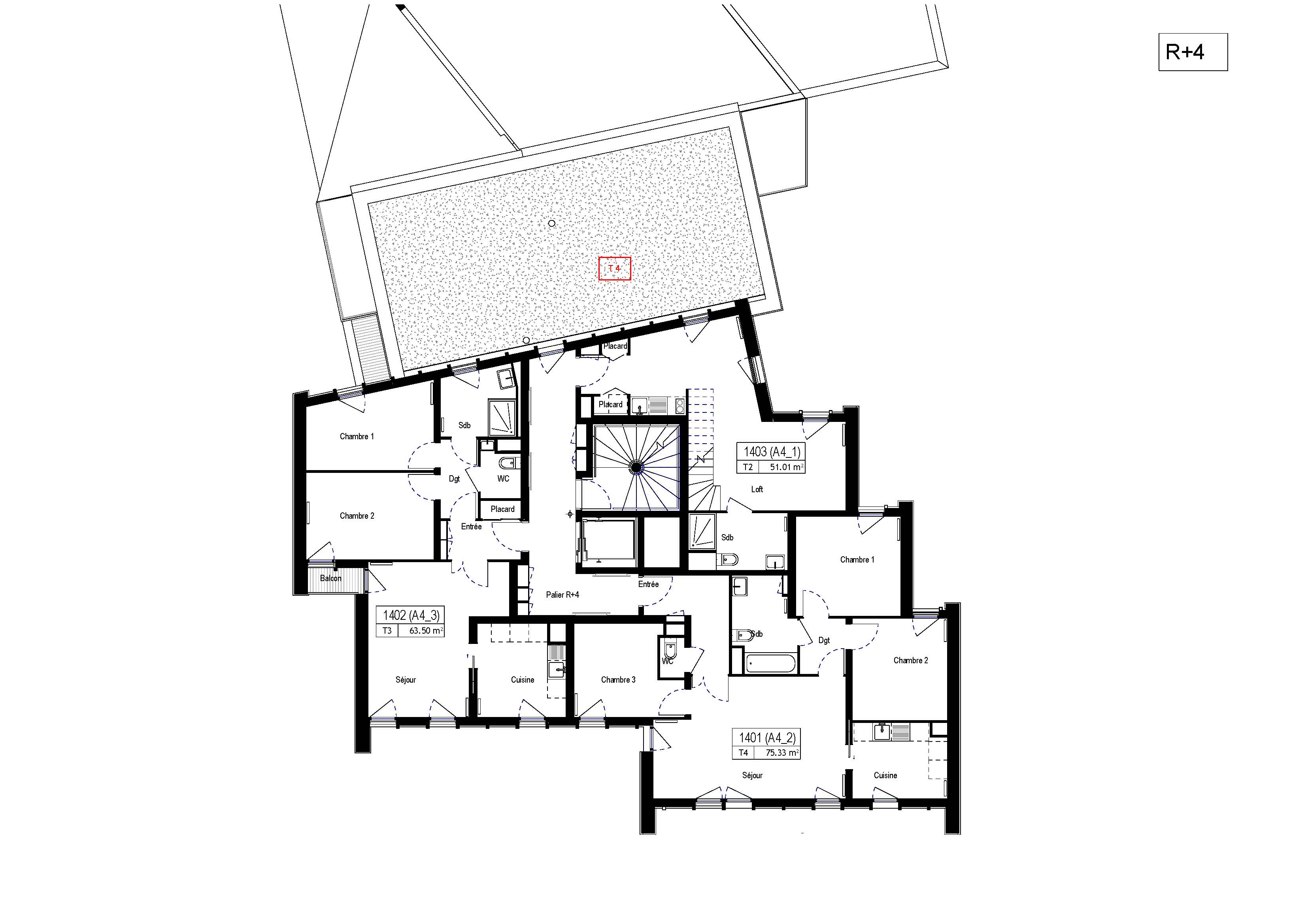
很难发现,这座七层楼的建筑实际上是用木头建造的。流行建筑展示了木结构的能力,使自己服务于一个敏捷和理想的架构。
这栋建筑有六层木结构,位于混凝土地下室和底层。这是对2011年赢得的这场比赛的技术和监管挑战。(当时,法国较高的木屋建筑有5层楼高。)
关于法国的规定,这座建筑被归为第三大家族,涉及到安全和防火法规的所有后果。
承重的正面和墙壁由交叉层合木(CLT)板组成.非承重正面是用木框架制造的.
地板-所有的CLT面板-形成一个刚性隔膜嵌入CLT墙和中央混凝土核心构成的楼梯井和电梯。
建筑师和工程师们选择了在外墙的绝缘上使用沙井系统-这是一种通常在屋顶上使用的技术。这种创新的方法可以优化墙的预制,减少雨幕的穿孔。
涂层主要是透明的,以减少过热。整个建筑-除了核心-都是干法建造的,包括平板。
Firm W.R.A. - Wild Rabbits Architecture
Type Residential › Multi Unit Housing
STATUS Built
YEAR 2017
SIZE 10,000 sqft - 25,000 sqft
BUDGET $1M - 5M
keywords:architecture, architecture news, interiors, interior design, portfolio, spec, brands, marketplace, products Pop-Up Building
关键词:建筑,建筑新闻,室内设计,组合,规格,品牌,市场,产品流行建筑
客服
消息
收藏
下载
最近




























