查看完整案例


收藏

下载
© Yoshihiro Koitani
(C)Koitani Yoshihiro Koitani
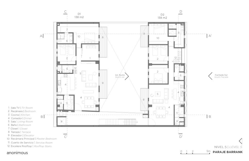
架构师提供的文本描述。在墨西哥城南部,露台的空隙组织了两卷五层的公寓,10 套公寓,每套 138 平方米。
Text description provided by the architects. The void of the patio organizes two volumes of five levels with 10 apartments measuring 138 m2 each, in the south of Mexico City.
© Yoshihiro Koitani
(C)Koitani Yoshihiro Koitani
Concept Diagram
概念图
© Yoshihiro Koitani
(C)Koitani Yoshihiro Koitani
相邻建筑的格和空间组织有助于激发一个向内看的项目。
The lattices and spatial organization of the adjoining constructions help to inspire a project that looks inwards.
© Marcos Betanzos
马科斯·贝坦佐斯
这些公寓面积为 20x25 米,充分利用了整个房间的正面,确保房间里充满了光线和空气。一条走廊连接着南边和北边的书卷,以及它们之间的庭院。
With an area of 20 x 25 m, the apartments take advantage of the whole frontage to ensure that rooms are filled with light and air. A corridor links the volumes on the south and north sides, and the courtyard between them.
Section AA’AA节‘
邻墙的黄色是埃尔·佩德雷加尔地区许多邻近建筑的特色,从入口到北塔的过程中,从东方接收光线。
The yellow color of the adjoining wall, a feature present in many neighboring buildings in the El Pedregal district, receives light from the east during the journey from the entrance to the north tower.
© Yoshihiro Koitani
(C)Koitani Yoshihiro Koitani
带有灰色色调的混凝土瓷砖地板让人想起了传统“Vecindad”风格住宅的入口处。
The concrete tile floor with patterns in tones of gray recalls the entrances of the traditional “vecindad” style of housing.
南外立面,面向城市,被一个褶皱的金属皮肤所包围,灵感来自马提亚斯·戈里茨 (Matías Goeritz) 的雕塑作品。
The south façade, which looks towards the city, is enclosed by a pleated metal skin inspired by sculptures by Matías Goeritz.
South Facade
南立面
这种通风的立面能降低热量,并可打开以接受空气,实现交叉通风,同时全天接受直接照明。三个“黄色”开口打破了节奏,标志着行人通道,车辆通道,和一扇窗户的顶层公寓,可以看到附近公园的树梢。
This ventilated façade dampens the heat and can be opened to receive the air, achieving cross ventilation and at the same time receiving direct light throughout the day. Three “yellow” openings break the rhythm to mark the pedestrian access, vehicular access, and a window of the penthouse that provides views over the treetops of the nearby park.
© Yoshihiro Koitani
(C)Koitani Yoshihiro Koitani
这座建筑的底座有一个格子,允许光线进入停车场的半地下室,而在上面,屋顶花园展示了一个紫色的花束,与门面的金属色调形成鲜明对比。
The base of the building opens with a lattice that allows light into the semi-basement of the Parking lot, while up above, the roof garden displays a purple bougainvillea that contrasts with the metallic tone of the façade.
Secction BB’
分段 BB‘
露台,这个项目的主角,是把用户的生活聚集在一起的空间。在一楼,一个满是竹子和蕨类植物的广场邀请大家共同居住。在上层,黑色陶瓷砖的外墙被类似潜水板的阳台打断。
The patio, the protagonist of the project, is the space that brings together the lives of the users. On the ground floor, a square filled with bamboo and ferns invites shared occupation. On the upper floors, the façades of black ceramic brick are interrupted by balconies that resemble diving boards.
© Marcos Betanzos
马科斯·贝坦佐斯
栏杆的木材创造平衡和温暖,结合砖块和绿色的播种机。
The wood of the balustrades creates balance and warmth, combined with the brick and the green of the planters.
Lower Plan
较低计划
该项目最显著的特点是连接这两卷的桥梁预制立面的陶瓷垫。
The most distinctive feature of the project is the ceramic mat of the prefabricated façade of the bridges that link the two volumes.
© Marcos Betanzos
马科斯·贝坦佐斯
穿孔的圆形,方形和三角形格子创造了一个拼贴板,将光线过滤到内部,将图案投射到地板上,而在外面,它展示了一幅与相邻建筑屋顶细节有关的当代壁画。
Perforated circular, square and triangular lattices create a collage that filters the light into the interior, projecting the patterns onto the floor, while on the outside it presents a contemporary mural that relates to the roof detailing of the adjacent constructions.
© Yoshihiro Koitani
(C)Koitani Yoshihiro Koitani
Architects anonimous
Location Juan Tinoco 135, Merced Gómez, 01600 Ciudad de Mexico, CDMX, Mexico
Architects in charge Alfonso Jiménez, Barbara Trujillo, Mónica Ochoa, Pablo Eguiarte, Daniel Cerón
Construction anonimousArea 2137.0 m2Project Year 2016
Photography Yoshihiro Koitani, Marcos Betanzos
客服
消息
收藏
下载
最近


























