查看完整案例


收藏

下载

翻译
Progetto in collaborazione con l'interior designer Arch. Claudia Rossi.
Luci My Lights
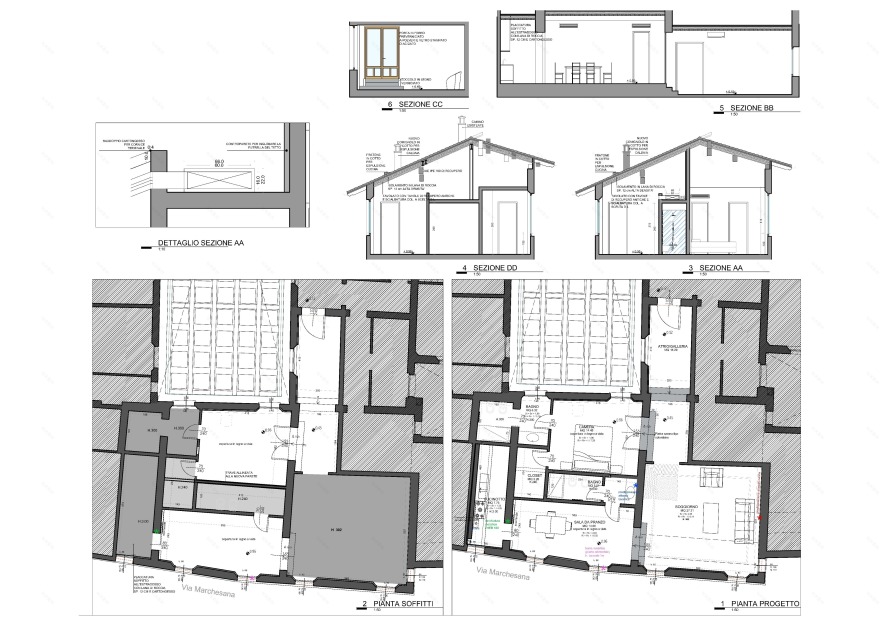
Tavole di legno di recupero per i controsoffitti isolati e inclinati e parquet a spina pesce ungherese per tutto l'appartamento. Sono questi i materiali principali scelti. Un taglio progettuale materico e minimale scalda l'ambiente creando una vera e propria casa in città: un appartamento sotto un tetto.
客服
消息
收藏
下载
最近


















