查看完整案例


收藏

下载
这所房子是一对年轻夫妇住在一座小山上一片重新调整过的土地上的。该遗址北临一条街道,周围是其他三面的邻近房屋。起初,这似乎是一种相当平常的城市条件,但我们很兴奋地发现,下面有一个公园,位于街对面,朝东北方向。我们想象着,如果我们把房子弄得够高,他们就能看到公园和山上城镇的全景,并从那里享受树木的季节性变化。所以我们的设计从提供一个大窗户到顶层的公园景观开始。
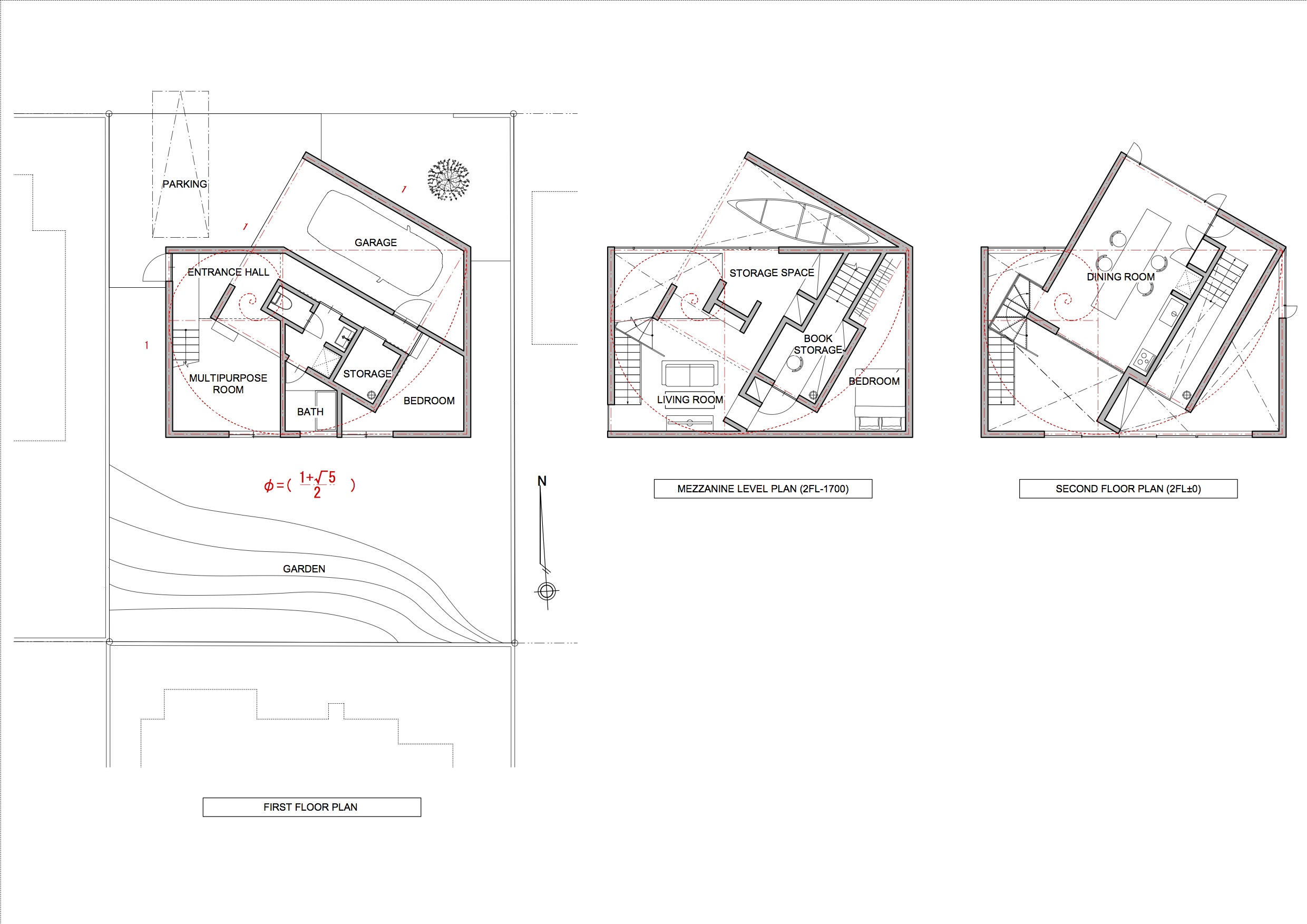
这座建筑由与场地平行的长方体和旋转30度的立方体组成,以面向公园。长方体的平面图以黄金比例为基础,空间划分采用对数螺旋法。通过对空间比例和构成的排序,可以在生活环境中提供一种稳定和舒适的感觉。这是一个经典的设计方法,在过去已经被许多建筑师所采用。
我们在这个方法中增加了一个新的步骤,即提取正方形并旋转它。因此,我们创造了一个循环和形成的动态螺旋流。当你在空间上下移动时,光和视图以多种方式转换。
每一层都有不同的地板,每层都被分配给特定的用途,地板不断地向上延伸,向外延伸。阁楼顶棚与顶楼之间的空隙被用作存储空间。
车库放置在旋转立方体的一部分,天花板的高度足以容纳独木舟,因为客户喜欢户外运动。我们在车库上方建立了存储空间,这样他们就可以直接从汽车上装卸户外运动用品。
每个空间有不同的天花板高度。入口大厅有一个6.6米高的空隙,当你爬上天花板时,每个起居空间的高度都会降低。阁楼的起居室高3.9米,二楼的餐厅被压缩到2.2米高。这里强调的是水平感,以增强视觉体验。当你接近全宽的窗口时,树木和周围城市景观的明亮全景就会显着地打开。
书房/书库位于中间的夹层,用作客户妻子的私人房间。它在视觉上是无法从房子的其他地方接触到的,只是它在视觉上连接到双高卧室,这样夫妻就可以在保持隐私的同时感觉到对方的存在。她可以用厨房后面的楼梯从二楼下来,所以很容易从家务中休息,享受她的空闲时间。
通过平分楼层,我们能够在同时保持一种团结感的同时,将生活空间分隔开来。
这对夫妇站在餐厅的窗户旁,看到邻居的孩子们在公园里兴高采烈地玩耍。当他们有了自己的孩子,他/她最终会加入那里。从这个窗口,他们将注视着所有孩子的成长和他们的家乡。
Firm Takato Tamagami Architectural Design
Type Residential › Private House
STATUS Built
YEAR 2013
keywordsarchitecture, architecture news, interiors, interior design, portfolio, spec, brands, marketplace, products Northern Nautilus
关键词建筑、建筑新闻、室内设计、组合、规格、品牌、市场、产品
客服
消息
收藏
下载
最近



























