查看完整案例


收藏

下载

翻译
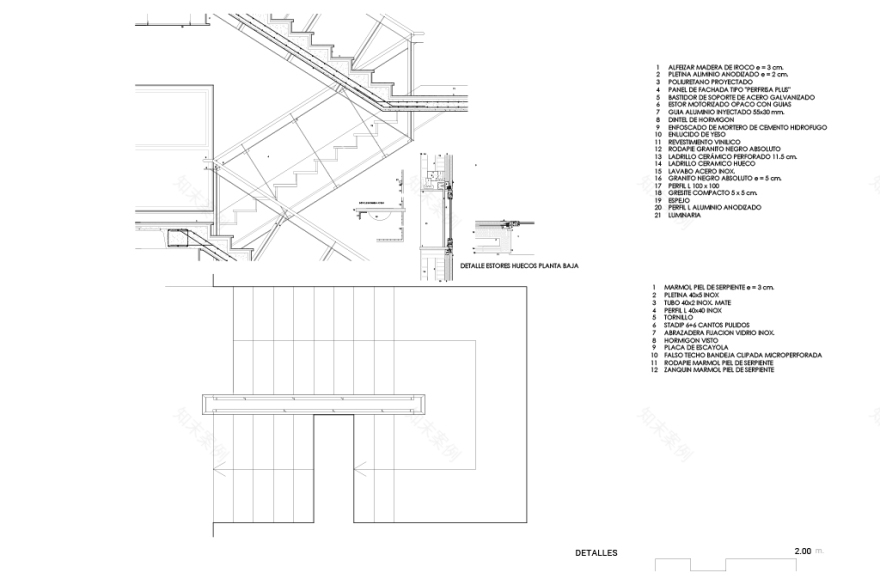
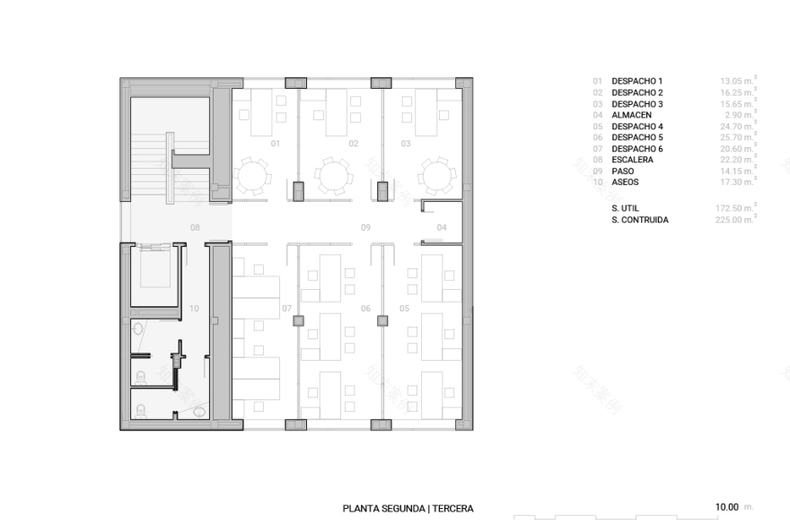
Se nos encarga la construcción de un cubo de 15×15 m. para realojar el Laboratorio de Microscopía Electrónica de la U.P.V., hasta entonces ubicado en unos despachos junto al edificio de rectorado. Las dimensiones y volumetría del nuevo edificio vienen condicionadas por la ordenación del Campus. Es por ello por lo que se opta por la construcción de un edificio regular, con forma de cubo, capaz de albergar todo el programa previsto a excepción de las instalaciones, para las que se ha habilita una planta de sótano que se conecta con el resto del edificio mediante la escalera general y el ascensor, y con el exterior mediante un “patio inglés”, de tal manera que se garantiza la correcta ventilación de las máquinas así como el acceso para el mantenimiento. El acceso y el núcleo de comunicaciones verticales queda dispuesto junto a la fachada oeste, permitiendo así liberar el resto de orientaciones, mejores, para el asoleo y ventilación de las diferentes dependencias en que se organiza el edificio. La planta baja y primera, comunicadas entre sí mediante una escalera de uso interno y un hueco que comunica visualmente ambas plantas, albergará el Laboratorio de Microscopía Electrónica de la U.P.V. Las dos plantas restantes se reservan para despachos departamentales.
客服
消息
收藏
下载
最近















