查看完整案例


收藏

下载

翻译
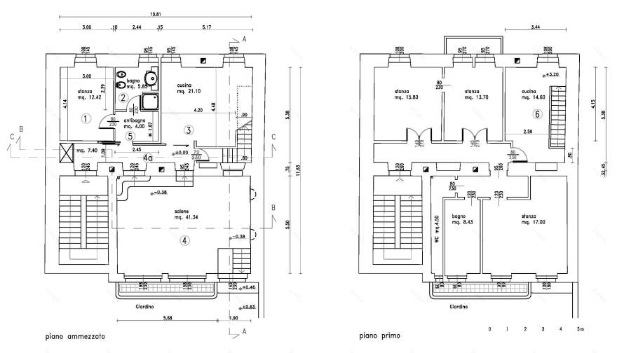
La revisione di un appartamento nel Borgo Giuseppino, sul versante a pochi metri dal mare delle Rive, ha messo ancora più in evidenza il rapporto con gli alberi che entrano visivamente dalle finestre su ambedue i lati contrapposti dell'edificio: dal giardino rialzato di proprietà esclusiva e dal parco di Villa Necker il cui muro di cinta confina con l'edificio. L'appartamento si sviluppa su due livelli reinventati come luogo rifugio, una casa urbana tra gli alberi, un piccolo paradiso verde.
客服
消息
收藏
下载
最近



















