查看完整案例


收藏

下载

翻译
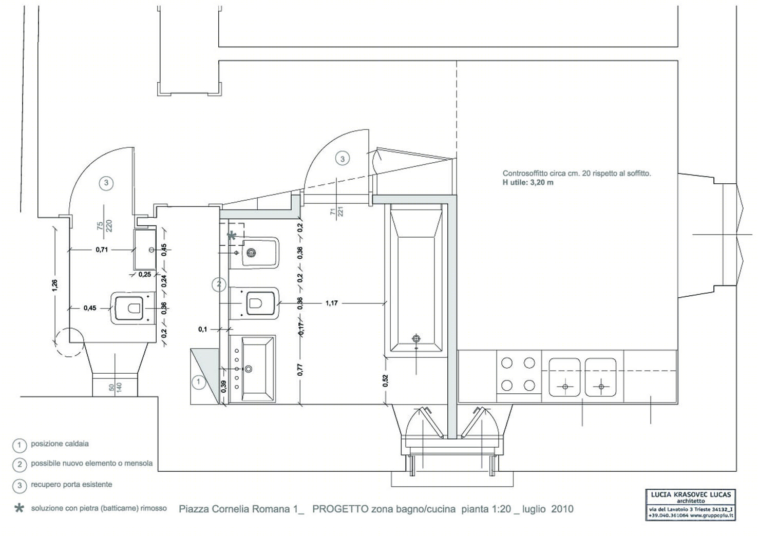
Un appartamento nel Borgo Giuseppino, nella suggestiva dimensione di Piazza Cornelia articolata e ritmata da scalinate urbane, giardini, facciate liberty e lo sfondo scenografico di piazza Hortis. L’interno è sospeso, come lo spazio urbano : il susseguirsi delle stanze rimane inalterato estraendone la bellezza e perizia pittorico decorativa del primo Novecento, il ritmo viene scandito dal pendolo di Budapest e dalle sedie di Hoffmann, tra libri e idee, pensieri e memorie che fluttuano in un universo prezioso senza tempo : solo la “testa” si rinnova per ridare nuove possibilità nell’abitare. Un lavoro paziente e unico, fatto di molti momenti in cui si ascoltava insieme lo spazio, per capire cosa volesse dire, per poterci sintonizzare con la sua poetica.
客服
消息
收藏
下载
最近
















