查看完整案例


收藏

下载
“房子里的房子”是上世纪80年代在瓦塞纳斯宾巴安地区对一座梯田房屋进行的可持续改造。我们的设计挑战是把陈旧拥挤的住宅改造成一个充满个性的明亮的现代空间,同时也为家庭提供足够的空间。其结果是一个开放的居住空间,巧妙地利用了房子的高度。由于屋顶结构和阁楼窗户,又增加了40平方米,使光线流入房子的中心。
‘House in a House’ is the sustainable renovation of a terraced house from the 1980s in Wassenaars Spinbaanquarters. Our design challenge was to transform the dated and cramped residence into a bright, modern space with character, yet providing enough space for a family. The result is an open living space that makes smart use of the height of the house. Thanks to the rooftop structure and attic windows, another 40 m2 is gained, enabling light to stream into the centre of the house.
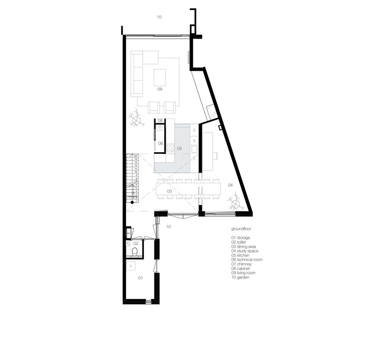
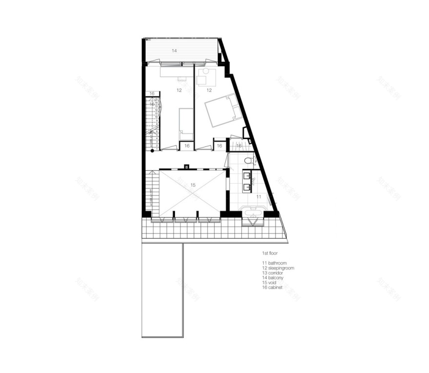
Floor Plan
起居室位于中庭周围,因此创造了不同形状的房间和有趣的景色。楼梯间横跨两层,是房子的一个焦点。现代设计和对空间的创造性使用确保了一种体验和舒适程度,远远超过了最初的生活体验。
The living quarters are located around the atrium, thereby creating rooms of different shapes with interesting vistas. The stairwell spans over two floors and is a focal point of the house. The modern design and the inventive use of space ensures an experience and level of comfort far surpassing the original living experience.
After. Image © Mirko Merchiori
之后。图像C.Merchiori Mirko Merchiori
材料坚固的材料,一个未完成,但温暖的外观选择了这次翻新。现有的地面木地板是用砂纸打磨,涂上较浅颜色的油。为了厨房我们选择了裸露的混凝土。厨房单元,安装在车轮上,是定制的设计和制造橡木与不锈钢表面。起居室的承重墙用混凝土抹灰完成,一楼采用软木地板。屋顶结构留下“未完成”,暴露梁和油芬兰松木地板。这些温暖的天然材料与白色的灰泥墙形成了美丽的对比。
Materials Rugged materials with an unfinished but warm look were chosen for this renovation. The existing wooden floor at ground level was sanded down and oiled in a lighter color. For the kitchen we chose exposed concrete. The kitchen unit, mounted on wheels, was custom designed and made in oak with a stainless steel worksurface. The load bearing wall in the living room was finished with a concrete plaster and on the first floor a cork floor Is used. The roof structure is left ‘unfinished’, exposing beams and oiled Finnish pinewood floorboards. These warm natural materials stand in beautiful contrast to the white plastered walls.
After. Image © Mirko Merchiori
之后。图像C.Merchiori Mirko Merchiori
可持续性、舒适性和环境是这次翻新的主要主题。这座房子是从“综合可持续性”的角度设计的。被动式太阳能、自然通风、供暖和制冷都在中庭进行管理。通过在房子里放置一所房子,所有的房间都会向中庭开放。通过关闭或打开窗户,房间从中央空间的变暖和冷却质量中受益。这个综合系统还创造了一个独特的建造环境。
Sustainability Comfort and the environment are the main themes of this renovation. The house is designed from an ‘integrated sustainability’ point of view. Passive solar energy, natural ventilation, heating and cooling are all managed in the atrium. By placing a ‘house within a house', all rooms open up to the atrium. By closing or opening windows the rooms benefit from the warming and cooling qualities of the central space. This integrated system also creates a unique built environment.
这项翻新包括以下特点:健康的居住环境,自然通风和优化的光能需求,由于使用绝缘材料和良好的设计.通过在房屋的南侧使用百叶窗控制自然光-中庭,在需要时保持热量-太阳能电池板用于空间加热/水加热
This renovation includes the following features: - Healthy living environment with natural ventilation and optimised light - Reduced energy demand due to the use of insulating materials and good design - Control of natural light through the use of blinds on the South side of the house - The Atrium, retaining heat when required - Solar panels for space heating / water heating
After. Image © Mirko Merchiori
之后。图像C.Merchiori Mirko Merchiori
客服
消息
收藏
下载
最近























