查看完整案例


收藏

下载
© Nguyễn Quốc Anh
(C)ễn Quốc Anh
架构师提供的文本描述。建筑师的。这所房子与喧闹的城市隔开,谦卑地安顿在河内黄凡泰街的一条小巷里。
Text description provided by the architects. From the architect. Separated from the noisy city, the house is humbly ensconced in a small alley on Hoang Van Thai Street, Hanoi.
这座房子的面积刚刚超过46平方米,需要保证即将结婚的年轻夫妇的住宅的基本和必要的功能,但由于预算非常紧张,建造时间也尽可能短,特别是在经济稳定和需要改变生活的情况下,将来可以很容易地进行翻新和更换。经过许多计划,建筑师终于找到了最优的方案。
With an area of just over 46 square meters, the house is required to guarantee essential and necessary functions of a home for a young couple about to get married, however are limited in terms of extremely tight budget, and time of construction as short as possible, especially in the future it can be easily renovated and replaced when the economy is stable and life-changing is needed. Over many plans in place, the architects finally find the most optimal plan.
从设计的角度来看,把生活空间和自然空间联系起来,中庭空间扮演着房屋的中心角色,这就是阳光、风和树木的融合,是所有有助于健康生活的因素的集中,而这些因素一直被净化。
With a design perspective of linking living space to natural, atrium space plays the central role of the house, which is the convergence of the sun, wind and trees, of all factors that contribute to a healthy life, which has always been purified.
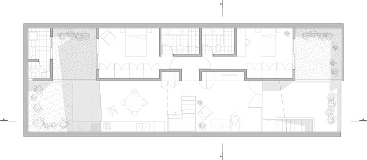
进入房子后,整个公共空间布置得很流畅,通风良好,车库、客厅、厨房和餐厅以传统的方式分开,营造了一种真正宽敞舒适的感觉。许多河内管道房正面临着一些问题:空间分散,光线不足,湿度低。
Entering the house, the entire public space is arranged smoothly and airy, with a garage, living room, kitchen and dining room splited in a conventional way, which creates the feeling that the house is really large and comfortable. There are issues that many Hanoi tube houses are suffering: fragmented space, lack of light and low humidity.
© Nguyễn Quốc Anh
(C)ễn Quốc Anh
二楼是为业主保留的空间,卧室的窗户直接打开进入中庭空间,屋主每天早晨都能呼吸到新鲜空气,从这里可以很容易地通过桥梁走廊连接到工作空间。这个地方的主要目的是工作,但它也是一个储存空间,满足未来使用的需求时,年轻夫妇欢迎他们的后代。
The second floor is a space reserved for the privacy of the owner, with the bedroom having its windows open directly into the atrium space, where homeowners can breathe fresh air every morning, and from here it can easily connect to working space through the bridge corridor. The main purpose of this place is to work, but it is also a storage space, serving the demands for future use when the young couple welcomes their offsprings.
房子的家具使用温暖和乡村色彩,从天花板上的瓷砖和白蚁处理的松木,到花砖阵列,让人回想起怀旧的过去,以及用木头砌成的桌子的细节,这些不仅是独特的,而且也是房子的亮点.所有这些都混合在一起,构成了最真实、最乡村的气氛,但对年轻夫妇来说并不缺乏兴趣。
The furniture of the house uses warm and rustic colors, from the arrays of ceiling tiles and termites-treated pine wood, to the arrays of flower bricks recalling nostalgic past and the details on the tables made from wood blocks which is not only unique but also a highlight for the house ..., all blend together to make up the truest, most rustic atmosphere, but no lack of interest for young couple.
© Nguyễn Quốc Anh
(C)ễn Quốc Anh
建筑成本也是房屋带来的一个完全令人惊讶的因素,由于顾问灵活使用了钢结构,这不仅减少了房屋的荷载,而且最大限度地缩短了施工时间和人工工作量。另一方面,回收旧房子的一些细节,既可以保留记忆,也可以节省成本。
Construction costs is also a completely surprising factor that the house bring to, due to the consultant has flexibly used steel structure, which not only reduce the load of the house, but also maximally shorten the construction time and labor work. On the other hand, the recycling of some details from the old house is both the way to keep back memories and the way to save costs.
每栋房子的背后都有自己有趣的故事,而这座房子也是如此。主人是一位年轻的讲师,他对木头家具知之甚少,他自己为自己的房子设计和制作了家具,使房子看上去就像在用他的方式隐藏一些真正特别的东西!
Each house built has their own interesting story behind and this house does, too. The owner, a young lecturer, with his little knowledge in wood furniture, had himself designed and created furniture for his own house, making the house look as it is hiding something really special in his way!
© Nguyễn Quốc Anh
(C)ễn Quốc Anh
1st Floor Plan
一楼图则
Architects Global Architects & Associates
Location Hanoi, Vietnam
Category Houses
Architect in Charge Nguyễn Hoàng Hiệp
Area 46.0 sqm
Project Year 2016
Photographs Nguyễn Quốc Anh
客服
消息
收藏
下载
最近




















