查看完整案例


收藏

下载
© Javier Agustín Rojas
c.哈维尔·奥古斯丁·罗哈斯
架构师提供的文本描述。该项目由两套四套房屋组成,每套房屋被放置在相近的批次中。一个位于城市广场的对角线上,前面在里瓦达维亚大街上,另一个在街道格栅的中间街区毗邻的街区里。罗卡。
Text description provided by the architects. The project consists of two sets of four houses each, placed in similar batches close together. One on the diagonal to the square of the city, with front on the street Rivadavia and the other in the block adjacent mid-block on the street Gral. Roca.
© Javier Agustín Rojas
c.哈维尔·奥古斯丁·罗哈斯
在第一种情况下,单元按照拉斯赫拉斯的第一栋建筑排列成一行,重复排列,在拐角处有一个特定的字符;而在中座住宅中,所有单元都成对地统一,共用前面卧室的突出部分和留下的空隙,重复测量,模糊了房屋和另一栋房子之间的隔阂。
In the first, the units are arranged in a line, repeated in series, giving a particular character to the corner in accordance with the first buildings of Las Heras; while in the mid-block houses, all unified volumetrically articulated in pairs, sharing the projections of the bedrooms at the front and the gaps left them, duplicate measures and blurring the division between a house and another.
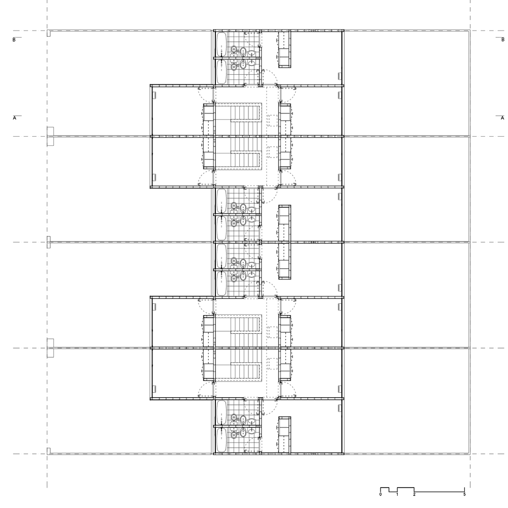
Ground Floor Plan (Riv)
底层图则(RIV)
这两套都是由结构镀锌钢型材,即钢架和涂布片预先涂黑(保证必要的太阳热增益在这些纬度)。材料和颜色,提供连续性,通过没有屋檐,统一的“锯齿”的设定卷。
Both sets are built with structure galvanized steel profiles known as Steel-Frame and coated sheet pre painted black (guaranteeing the necessary solar heat gain in these latitudes). The material and color, provide continuity through the absence of eaves, unifying the "jagged" of the set volume.
© Javier Agustín Rojas
c.哈维尔·奥古斯丁·罗哈斯
在底层,基座是混凝土砌块,在开口需要石阶或盲面的地方,以及在使用磨损较大的分隔和隔墙道路中,用作面板。此外,他们统一的颜色和材料与庭院和外部刷混凝土人行道。
On the ground floor, the base is of concrete block, used as a facing in places where openings require ledges or blind planes, and in the dividing and containments walls roads where wear for use is greater. Also they unified by color and material with the yard and exterior brushed concrete sidewalks.
© Javier Agustín Rojas
c.哈维尔·奥古斯丁·罗哈斯
黑色铝的开口,是根据太阳效应,视觉和自然的环境照明,大小和定位的战略。
The openings of black aluminum, were sized and positioned strategically depending on the solar effect, visual and natural lighting of the environment.
Section AA (Riv)
第AA条(Riv)
Section BB (Roca)
第BB条(罗卡)
由于该地区的强风特征,开放的布是倾斜翼与固定的面板组合,在几乎所有情况下,其比例分别为1/3-2/3。
In response to the strong winds characteristic of the area, the open cloths are tilt-wing combined with fixed panels that in almost all cases have a ratio 1/3 - 2/3 respectively.
© Javier Agustín Rojas
c.哈维尔·奥古斯丁·罗哈斯
该项目的标志,由其倾斜的天花板的特征轮廓和其墙壁的黑暗轮廓,站在城市的街道上没有尖利。
The mark of the project, given by the characteristic profile of its sloping ceilings and the dark outline of its walls, stands without shrillness on the streets of the city.
© Javier Agustín Rojas
c.哈维尔·奥古斯丁·罗哈斯
Architects Gálvez Autunno Arquitectos
Location Las Heras, Santa Cruz Province, Argentina
Category Housing
Area 888.0 sqm
Project Year 2015
Photographs Javier Agustín Rojas
客服
消息
收藏
下载
最近





































