查看完整案例


收藏

下载
架构师提供的文本描述。巴特和萨拉在比利时海岸边的一个小镇布雷德尼买了一片向北的地块。建筑条例限制了建筑的体积,立面必须是白色、黑色或灰色。
Text description provided by the architects. Bart and Sara bought a north-facing plot in a typical allotment in Bredene, a town on the belgian coast side. The constuction regulations restricted the building volume, and the facade had to be white, black or gray.
© Luc Roymans
卢克·罗曼斯
如果他们以传统的方式建造,他们现在将有一个住宅,一楼有一个开放的居住空间,北面有一个毗邻的露台。楼上我们会找到卧室的。在地块周围,他们应该设置传统的树篱或屏障,以确保他们的隐私,他们将不得不建造一个花园棚屋,以弥补缺乏储存。
If they had built in the traditional way, they would now have a home with an open living space on the ground floor, and an adjacent terrace to the north. Upstairs we would have found the bedrooms. Around the plot they should have placed the traditional hedge or barrier to ensure their privacy, and they would have to build a garden shed to compensate the lack of storage.
© Luc Roymans
卢克·罗曼斯
他们的房子把这一传统的细分实际上是颠倒的:为了避免桩基,基础被设想为一个大型的混凝土储罐。车库、大储藏室和卧室是半地下的,而露台的开放式居住空间则位于半地面上。
Their house puts this traditional subdivision literally upside down: to avoid a pile foundation, the foundation was conceived as a large concrete tank. The garage, large storage room and the bedrooms are semi-underground, while the open living space with terrace is located on the semi-above ground.
Section A-A
A-A节
Section B-B
B-B节
小房间,跨度小,位于下面,所以没有结构薄片需要穿上一层。这使他们能够建立更多的预算友好,与一个非常宽敞,开放和明亮的客厅作为结果。
The small rooms, with small spans, are situated below so there are no structural flimflams required to wear the upper floor. This allowed them to build more budget friendly, with a very spacious, open and bright living room as a result.
© Luc Roymans
卢克·罗曼斯
灰色的正面被彩色条纹打断,车库门和其他一些元素都是橙色的。卧室的窗户就在地面上。由于有充足的光线从中央楼梯井进入,它感觉不像半地下室。浴室位于楼梯的一半处,在地面,楼上一个人进入厨房,俯瞰室外露台。再上几层楼梯,你就可以进入客厅,俯瞰露台和周围地区。
The gray facades are interrupted by colored stripes, and the garage door along with a number of other elements were provided in orange. The windows of the bedrooms are located just above ground level. Because of the abundance of light that enters via the central stairwell, it does not feel like a semi-basement. The bathroom is situated halfway up the stairs, at the ground level, and upstairs one enters the kitchen area overlooking the outdoor terrace. Another couple of stairs higher you enter the living room overlooking the terrace and the surrounding area.
© Luc Roymans
卢克·罗曼斯
一个弯曲的音量在整个客厅里摆动。厨房、入口处和卫生间,以及你可以俯瞰房间的桌子就在这一卷里。通过集中这些特征在这一卷,其余的空间可以保持完全开放和通风。
A curved volume swings throughout the living room. The kitchen, the entrance and toilet, and the desk from where you can overlook the rooms are situated in this volume. By concentrating these features in this one volume the rest of the space could be held fully open and airy.
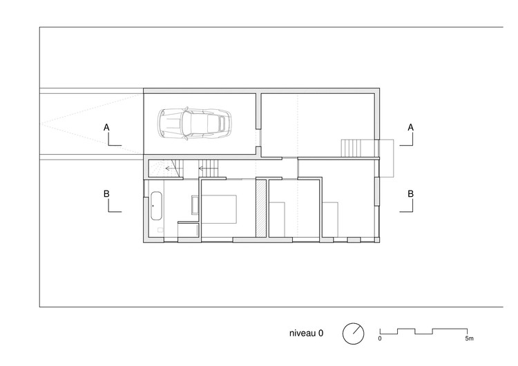
Floor Plan - Level 0
平面图-0层
Floor Plan - Level 1
平面图-1楼
这所房子以一种完全不同的方式来处理分配房屋的问题。在开发中充分利用了现有的少数质量和能力,与传统的分配住房不同,这导致了一个能够充分利用灯光和景观的背景住宅。花园里种有沙丘草,与当地植物区系相连。
This house is in a radically different way to deal with the question of the allotment building. The few qualities and capabilities that exist are fully utilized in a development, which -in contrast to the traditional allotment house- results in a contextual home that makes the most of the lights and views. The garden has been planted with dune grasses, which connects to the local flora.
© Luc Roymans
卢克·罗曼斯
客服
消息
收藏
下载
最近
























