查看完整案例


收藏

下载
© Kenta Hasegawa
(3)长谷川甘田
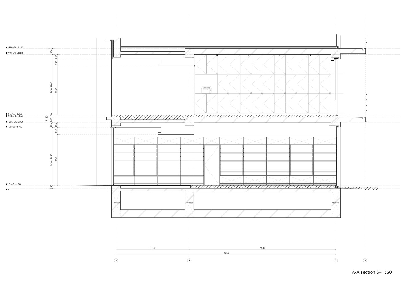
架构师提供的文本描述。一开始,我惊喜地发现,在东京中部的青山,这片土地上长满了茂盛的绿色植物。我想给一楼和二楼的顾客提供同样的惊喜。这座建筑矗立在那里,对现有的绿色植物显得简朴而开放,似乎与大地的活力相协调。考虑到这样的周边环境,我们尽量减少填充结构,用家具代替室内组合。
Text description provided by the architects. At first I was pleasantly surprised to discover this land filled with such lush greenery in Aoyama, in the middle of Tokyo. I wanted to provide the same kind of pleasant surprise to customers of this shop, both on the first and second floors. The building stood there, simple and open towards the existing greenery, and seemed to harmonize with the vitality of the land. Respecting such surrounding environment, we tried to minimize the infill construction and composed the interior with furniture instead.
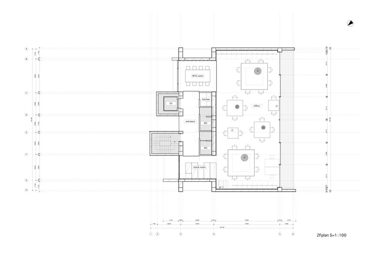
2 Floor Plan
2楼图
该网站位于一定距离繁忙的地区,我们需要提出一个不同的设计与他们以前的店内风格。此外,他们希望在进行过程中作出必要的修改。
The site is located at a certain distance from the busy district, and we needed to come up with a different design from their previous shop-in-shop style. In addition, they are hoping to make necessary modifications as they go along.
© Kenta Hasegawa
(3)长谷川甘田
我们的解决方案是设计基于标准模块的显示单元,这些模块可以自由移动和组装。为了避免单调的外观,我们把清晰的丙烯酸单元不规则地放置在木单元上,同时故意在一定程度上破坏稳定感。在视觉序列中,这种不规则的断裂会根据不同的观点对展示的产品产生不同的印象。
Our solution was to design display units based on standard modules that can be moved and assembled freely. In order to avoid a monotonous appearance, we placed clear acrylic units in/on wooden units irregularly, while deliberately breaking a sense of stability to a certain degree. Such irregular breaks in the visual sequence create different impressions of displayed products according to viewpoints.
© Kenta Hasegawa
(3)长谷川甘田
日本传统的园林观念是“借来的风景”,或以周围的自然风光为背景。在二楼的办公室里,我们不仅要“借用”周围的绿色植物作为背景,还要在办公桌上植树,努力把它与室内空间结合起来,这要归功于西田世君的大力帮助。
There is a traditional Japanese gardening concept of the “borrowed scenery”, or using the surrounding natural scenery as the background. In the second floor office, we not only wanted to “borrow” the surrounding greenery as the background, but also tried to integrate it with the interior space by planting trees on the desks, thanks to the great help from Seijun Nishihata.
© Kenta Hasegawa
(3)长谷川甘田
Architects Schemata Architects
Location 5 Chome-43-7 Jingūmae, Shibuya-ku, Tōkyō-to 150-0001, Japan
Category Interiors Architecture
Architect in Charge Jo Nagasaka
Design Team Masami Nakata, Kosuke Nakano
Area 378.8 sqm
Project Year 2015
客服
消息
收藏
下载
最近



















