查看完整案例


收藏

下载
架构师提供的文本描述。来自C
Text description provided by the architects. From C&C DESIGN CO.,LTD. ,we designed a cool activity center which is black and white style. When you strict rationality and high-density office space walk into a black and white motion space , you will achieve differences conversion about space from the visual and psychology, the difference of the black and white give a person with the perfection of collision force and beauty acme imagination.
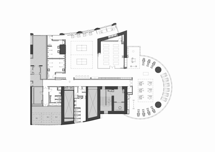
Floor Plan
活动中心由六个区域组成:乒乓球区、按摩区、瑜伽舞蹈室、运动区。
The activity center consist of six areas, the table tennis area, massage area, yoga dance studio, sports & fitness area and shower area. They are connected to each other, dynamic or quiet.
Courtesy of C&C DESIGN CO., LTD.
C提供
设计师采用走廊侧设计巧妙的开放式储物柜,球衣号码直接用丝印在储物柜上,它不仅起到了识别空间的作用,而且也成了乐趣的亮点。
The designers use the corridor side cleverly designed open type lockers, the jersey numbers are directly silk-screen on the lockers, it not only play a role in identifying the space but also has become a highlight of fun.
Courtesy of C&C DESIGN CO., LTD.
C提供
特殊的黑色LED聚光灯是自由缠绕在天花板上的,如此动态,创造了丰富的照明效果和空间层次。开放式天花板和裸露管道需要对管道布置进行重组,随意铺设管道反映了最原始的工业美学之一,即避免浮华的装饰,使建筑空间中最基本的经验,同时也符合国际环境卫生设计的潮流。
The special black LED spotlights are freedom intertwined in the ceiling, so dynamic, creating a rich lighting effects and spatial levels. The open type ceilings and exposed pipeline need to reorganize the pipeline arrangement , strewn at random discretion pipeline reflects one of the most pristine industrial aesthetics, which is avoid flashy decoration, and make the most essential experiences of architectural space, at the same time conforms to the international trend of environmental health design.
Courtesy of C&C DESIGN CO., LTD.
C提供
在健身中心的设计中,设计师避免了传统的俱乐部风格,从开放的空间、宣传和环境这三个方面重新界定了现代企业员工活动中心的设计。开放而又充满亲和力的空间,既体现了企业的朴素与真实,也体现了企业是健康生活时尚的领军者。
In the design of the fitness center, the designer avoid the conventional club-style, redefine the design about modern enterprise staff activity center from the openness of the space, the publicity and environment this three aspects. The open and full of affinity of space manifests the enterprise is simple and truth, and also manifests the enterprise is leading of the fashion for health quality life.
Courtesy of C&C DESIGN CO., LTD.
C提供
室内装修又包住了建筑物,以前从地板到墙面到天花板,造成了大量的装修噪音、灰尘和垃圾,管道隐藏的装修在今后的维护和维修中是不方便的,石材、石材等装饰材料、过度使用的软袋也造成不必要的浪费。我们应该做更多的工作来促进生态友好型室内设计,这就要求设计师引导市场朝着正确的方向发展。
Interior decoration wrapped the building again, from floor to the wall to ceiling previously, cause a lot of renovation noise, dust and garbage, pipeline hidden decorate is not convenient to maintenance and repair in the future, stone, the adornment material such as stone material, the soft bag of excessive use of also cause unnecessary waste. We should do more to promote eco-friendly interior design, which requires designers to guide the market in the right direction.
Courtesy of C&C DESIGN CO., LTD.
C提供
设计师创造尽可能多的开放空间,使人们可以在活动中心看到彼此,此外,如乒乓球、健美操等,也鼓励了人与人之间更多的交流。在单调乏味的办公空间中,由于工作速度快、效率高,现代城市白领大多被分割成“孤岛”。因此,创造一个能够相互沟通的公共空间是非常重要的,公共空间由人类提供的共存所产生的公共交往是维持不同层次社会关系的重要环节,人们的公共交往在公共领域是不可或缺的,这就是平衡私人空间。公共空间可以帮助人们形成个人归属感,这似乎为现代企业添加了一剂润滑剂。
Designers creat the open space as much as possible, so people can see each other in the activity center, in addition, such as table tennis, aerobics, etc., also encourage more communication between people. In the dull monotony of office space, because of the fast and efficient work requirements, most of the modern urban white-collars is split as one of "isolated island". So create a public space that can communicate with each other is very important, public space provided by the human co-existence arising from the public communication is to maintain different levels of social relationships important link, People’s public communication in the public domain is indispensable , which is to balance the private space . Public space can help people form the individual sense of belonging, which seems to add a dose of lubricant for the modern enterprise.
Courtesy of C&C DESIGN CO., LTD.
C提供
客服
消息
收藏
下载
最近






















