查看完整案例


收藏

下载
© Adam Scott
(亚当·斯科特)
架构师提供的文本描述。拯救伦敦屋顶伦敦蝴蝶屋顶返回不符合规定的斯托克纽顿,北伦敦。
Text description provided by the architects. Save the London Roof_ The London butterfly roof returns to non-conformist Stoke Newington, North London.
© Adam Scott
(亚当·斯科特)
伦敦屋顶正在迅速消失!由于人们不移动和改善他们的家园,转换屋顶空间不再保护独特的栏杆屋顶。
The London roof is fast disappearing! As people don’t move and improve their homes, converting the roof space no longer protects the distinct parapet roofline.
© Adam Scott
(亚当·斯科特)
为了避免平庸的倾斜延伸,新的后部延伸是对传统伦敦屋顶形式的现代诠释。
Keen to avoid the mundane lean-to extension, the new rear extension is a modern interpretation of the traditional London Roof form.
屋顶为伦敦北部这座中间梯田式住宅的后花园提供了一种生动的建筑语言。“蝴蝶”屋顶的内部表现为暴露木材萝卜,并提供一个动态的建筑特征和自然温暖的客厅。
The roof provides an enlivened architectural language to the rear gardens of this mid-terraced house in North London. The ‘butterfly’ roof is expressed internally as exposed timber rafters and provides a dynamic architectural feature and natural warmth to the living room.
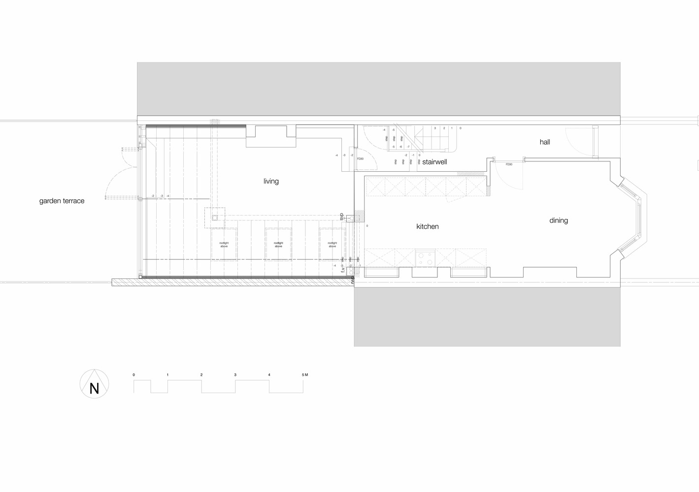
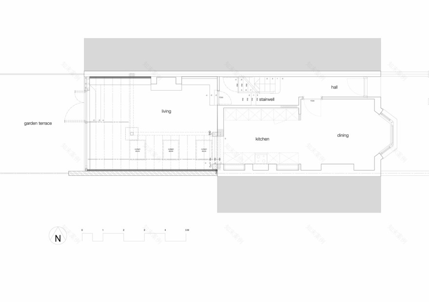
原来的天花板高度太低,不适合起居室,因此有必要挖掘,以创造一个更慷慨的房间体积。新的生活地板水平已经降低,以提供一个天花板的高度更符合房子的其他部分,并创造了一个阶梯关系厨房和花园以外。
The original ceiling height was too low for a living room so it was necessary to excavate to create a more generous room volume. The new living floor level has been reduced to provide a ceiling height more in keeping with the rest of the house and has created a stepped relationship with kitchen and the garden beyond.
© Adam Scott
(亚当·斯科特)
一个新的燃木炉为客厅提供了一个焦点,它有一堵图书馆的墙,挂在上面的木萝卜上,占据起居室的一边。在晚上,灯光是微妙和谨慎的位置与间接聚光灯,并避免需要吊灯挂在房间。
A new wood-burning stove provides a focal point to the living room with a library wall, which hangs from the timber rafters above to occupy one side of the living room. In the evening the lighting is subtle and discreetly located with indirect spotlights and avoids the need for pendant lights hanging in the room.
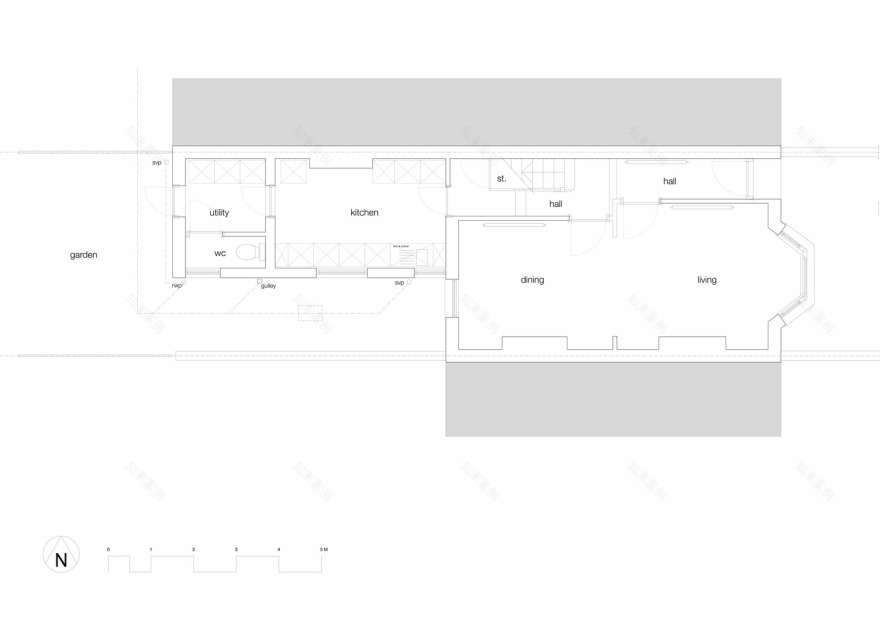
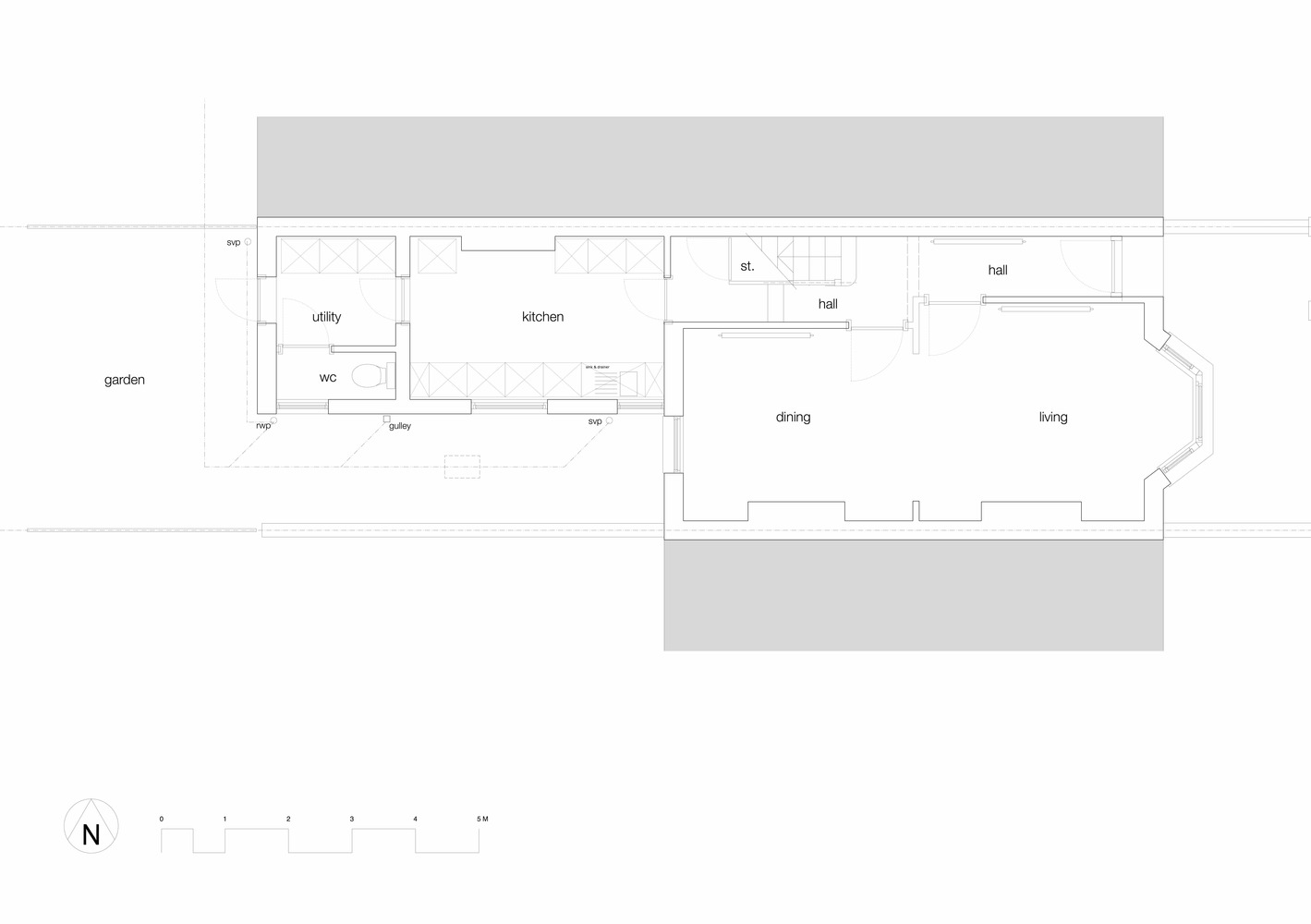
作为翻修工程的一部分,对整个底层进行了重新配置。厨房已经从房子的后面搬来搬去,在新的起居室和餐厅之间进行搬迁,以便在房间之间提供一个开放式的平面连接。
As part of the refurbishment works the entire ground floor has been reconfigured. The kitchen has moved from the back of the house and is relocated between the new living room and the dining room to provide an open plan link between rooms.
© Adam Scott
(亚当·斯科特)
厨房避免高水平的橱柜,有两个长长的柜台,两边都有一个大面积的工作表面。餐厅已经搬到了可以俯瞰街道的海湾前的房间。餐厅保留了维多利亚式露台屋的许多传统装饰特色。然而,配色方案更大胆,并辅之以现代1950年代的家具和灯饰。
The kitchen avoids high-level cupboards with two long counters providing an extensive work surfaces area to each side. The dining room has moved to the bay fronted room overlooking the street. The dining room retains many of the traditional decorative features expected of a Victorian terrace house. The colour scheme is however bolder and is complimented by the addition of a modern 1950’s furniture and light fittings.
© Adam Scott
(亚当·斯科特)
餐厅现在已经被完全定位为早餐,太阳从东方升起。到了西边,一个大的六角形的玻璃窗框,可以看到小花园里的夕阳。
The dining room is now perfectly orientated for breakfast with the sun rising from the East. To the West a large hexagonal glass window frames views of the small garden for the setting sun in the evening.
Architects forresterarchitects
Location London, United Kingdom
Category Extension
Area 40.0 sqm
Project Year 2015
Photographs Adam Scott
客服
消息
收藏
下载
最近






















