查看完整案例


收藏

下载
© Derek Swalwell
德瑞克·斯沃韦尔
架构师提供的文本描述。一堵混凝土的联排墙延伸了整个联排别墅的长度,把它和它的邻居隔开(它是三排一排),在视觉上把前面的入口和后院花园连接起来。
Text description provided by the architects. A concrete party wall extends the entire length of the townhouse, separating it from its neighbour (it is one in a row of three) and visually connecting the front entry to the rear courtyard garden.
© Derek Swalwell
德瑞克·斯沃韦尔
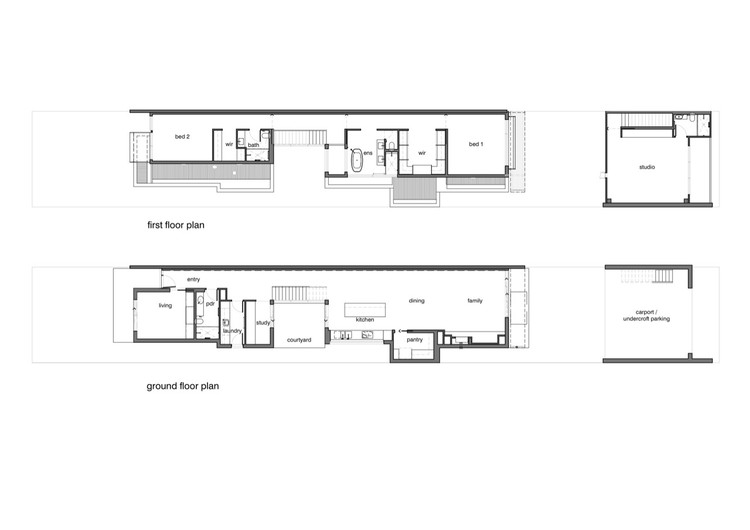
在底层,书房、厨房和生活区围绕着一个玻璃中央庭院流动,这个庭院与一个相邻的木结构楼梯一起提供了一个中央光源,并聚焦到长长的直线空间。
On the ground floor the study, kitchen and living areas flow around a glazed central courtyard, which with an adjacent crafted timber stair provides a central light source and focus to the long lineal space.
© Derek Swalwell
德瑞克·斯沃韦尔
© Derek Swalwell
德瑞克·斯沃韦尔
一个小巢穴提供了一个安静的静修,并在前面的甲板和花园。上层包括两间豪华的卧室和一间瑜伽室,瑜伽巷位于后方庭院外的车库上方。
A small den provides a quiet retreat and addresses the front deck and garden. The upper floor includes two luxuriously appointed bedrooms and a yoga studio, Yoga Lane, sits above the carport beyond the rear courtyard.
© Derek Swalwell
德瑞克·斯沃韦尔
三栋联排别墅的入口门廊上挂着一根长的黑色木栏杆,位于前卧室的上方,构成了整栋建筑的统一元素。它的顶部有一个钢制的框架,一旦藤蔓覆盖将软化建筑,并将它与绿树成荫的街道景观联系起来。
A long black timber balustrade off the front bedrooms hovers over the entry porches of all three townhouses and forms a unifying element for the building. It is capped with a steel framed pergola that once vine covered will soften the architecture and relate it to the leafy tree lined streetscape.
© Derek Swalwell
德瑞克·斯沃韦尔
客服
消息
收藏
下载
最近























