查看完整案例


收藏

下载
© Namsun Lee
李南孙
架构师提供的文本描述。Seam(社会企业家和使命)中心是促进和支持社会企业家追求基督教信仰的中心。我们计划尽量减少外部的改动,但把大楼内部完全改造成社区中心地。
Text description provided by the architects. SEAM (Social Entrepreneurship And Mission) CENTER is the HUB to promote and support social Enterprisers in pursuit of Christian faith. We plan to minimize alterations to the exterior but entirely convert inside of building into community hub – Ground & 1st floor are designed for co-working space and 2nd & 3rd floor are planned for share house. The theme of this building is “Platform of spare sharing”
© Namsun Lee
李南孙
这座建筑建于1990年,是一座典型的多家庭住宅。它与首尔森林相邻的高层公寓毗邻。我们扩展了现有的外楼梯,并新建了合作空间的主入口,以便与死胡同(建筑外)有更密切的关系。我们选择采用油漆涂饰和木制百叶窗的正面设计,以自然的方式带来对过去的记忆和痕迹,而不是隐藏外墙的陈旧和恶劣的状况。
This building was built in 1990 as a typical multifamily housing. It borders high-rise apartment neighboring Seoul Forest. We extend existing outer-stairway and newly make main entrance of co-working space in order to have closer relationship with the dead end road (outside of building). Instead of hiding old and poor condition of the outer wall, we choose facade design using paint finishing and wooden louver to bring memories and traces of the past in natural way.
© Namsun Lee
李南孙
我们围绕共享空间重组内部空间。我们为地面建造内部楼梯
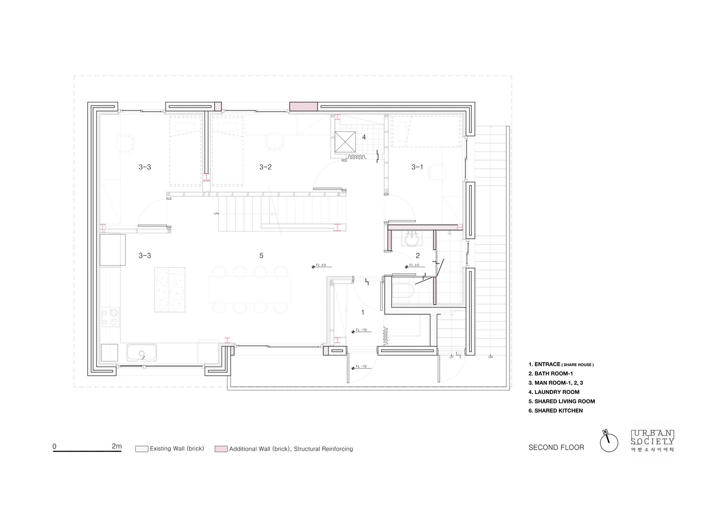
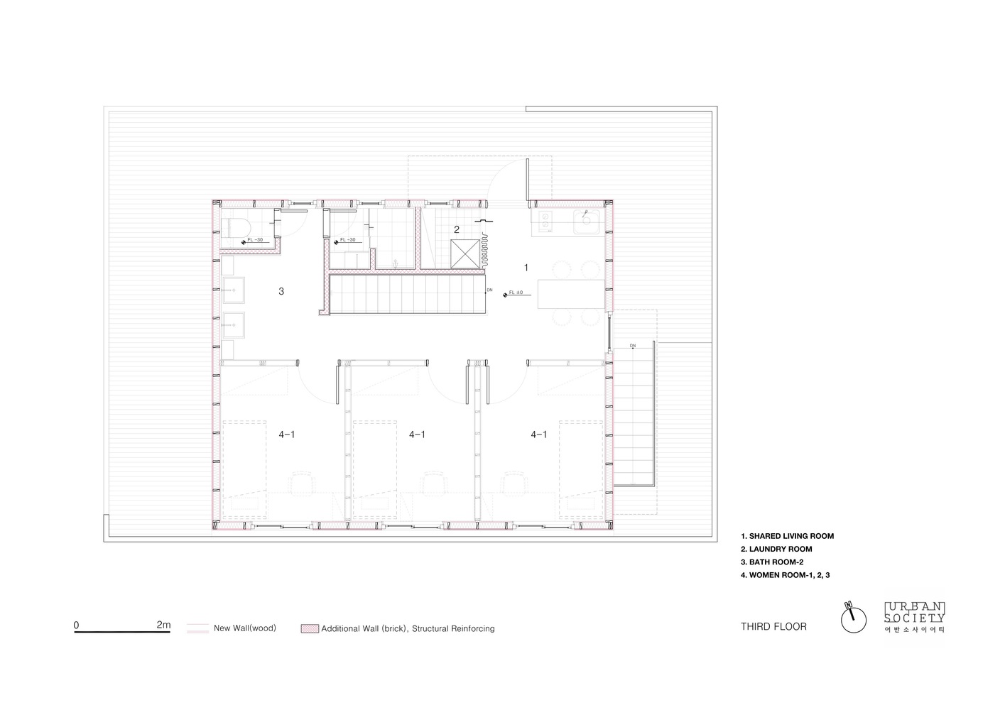
We restructure inner space around sharing space. We build internal staircases both for Ground & 1st floor of co-working space and 2nd & 3rd floor of share house. With these staircases, we could resolve vertical moving line matter. Terrace, the transfer space and the outer stairway and corridor which connect whole building as one, function not just as moving route but also the sharing zones. With this conceptive thinking and actualization, we could extend boundary of architecture.
为了最大限度地共享空间,现有的砌体承重墙结构采用钢框架进行加固。采用轻质木结构作为顶楼的居住空间,根据新的功能,保证整个建筑的结构安全。(鼓掌)
To maximize sharing space, existing masonry bearing wall construction is enhanced by steel frame. We apply light weight wooden structure for the living space of top floor to secure structural safety of whole building according to new functions.
© Namsun Lee
李南孙
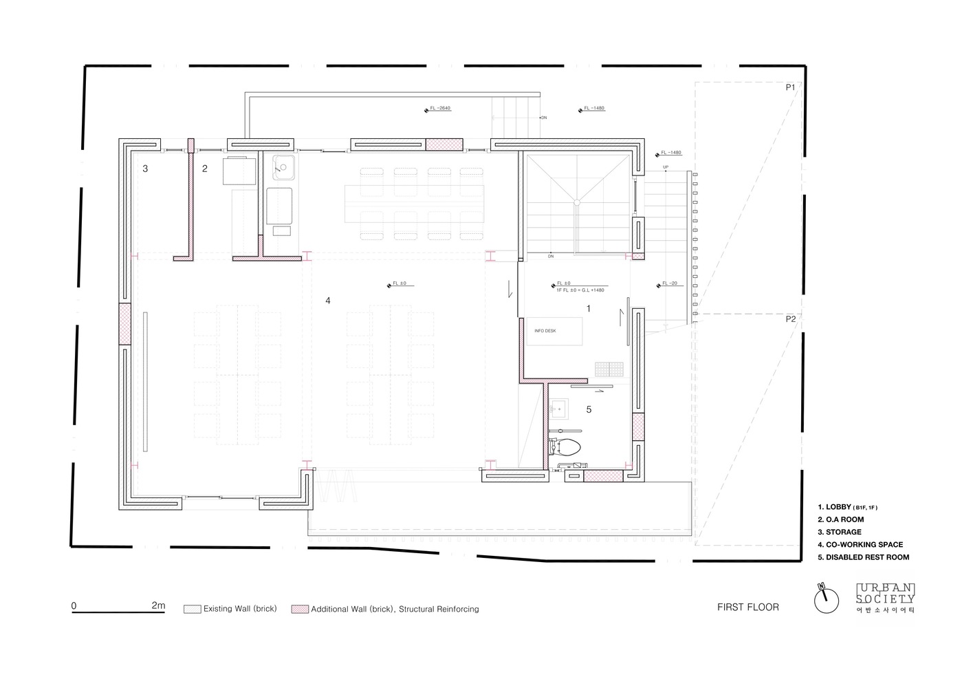
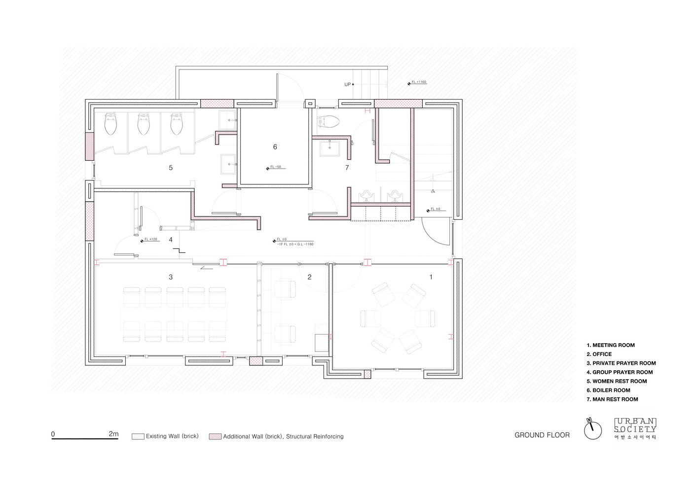
开放的合作空间可以同时容纳30人。对于可改变的家具配置,采用可移动的桌子和可移动的地板。设计了迷你酒吧、OA室、两间可容纳8~10人的会议室、行政办公室和残疾人厕所。这间共用房屋是为3名男子(2楼)和3名妇女(3楼)提供的。我们将现有的主室重新配置为共用厨房和餐厅,以适应各种社区活动。屋顶露台提供了最好的景观面向首尔森林,可以通过外楼梯。
Open co-working space could hold 30 people at the same time. For changeable furniture allocation, movable table and Access Floor are applied. Mini bar, OA room, two conference rooms holding 8~10 people, administrative office, and toilet for the disabled are designed. This share house is for 3 men (2nd floor) and 3 women (3rd floor). We reconfigure the existing master room into sharing kitchen and dining room to accommodate various community activities. Rooftop Terrace provides the best view as facing Seoul Forest and could be accessed through outer stairway.
© Namsun Lee
李南孙
Architects Urbansociety
Location Seoul, South Korea
Category Renovation
Area 300.0 ft2
Project Year 2016
Photographs Namsun Lee
客服
消息
收藏
下载
最近






























