查看完整案例


收藏

下载
竞赛:‘在加州维多利亚保护区插入建筑物’
大学:“离子明库”建筑与城市规划大学
地点:罗马尼亚布加勒斯特
日期:2016年3月15日
学生,大学生( student的名词复数 ):
一等奖获得者
țeanu Mihai-Cosmin
离子MădăLina
ȘAIN Andrei
描述:
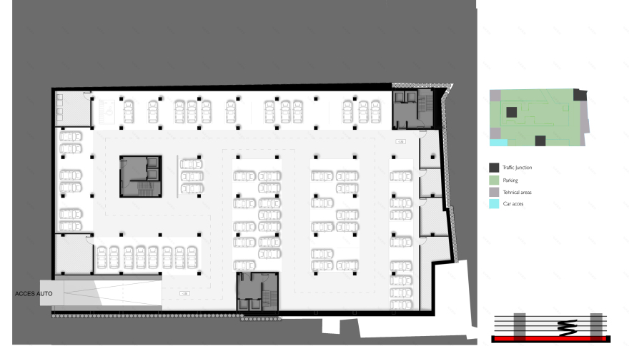
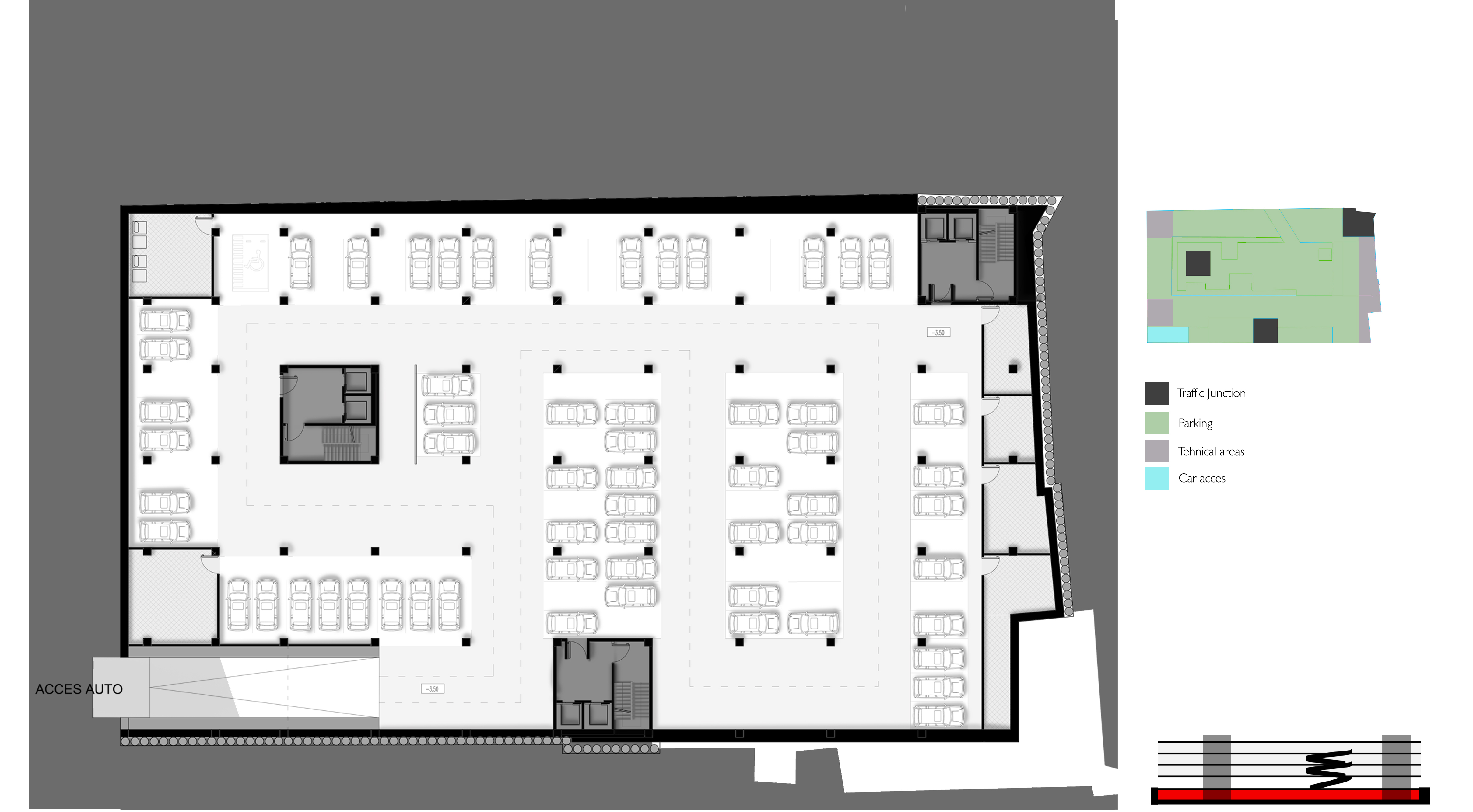
这里介绍的项目-绿色混合建筑-是由ȘIC建筑学生团队策划的,并在“离子明库”建筑和城市主义大学的内部竞赛中获得了一等奖。该网站位于罗马尼亚首都布加勒斯特的中心,位于加州维多利亚大道上,旨在容纳一个大型商业中心,但也在市中心提供办公和私人空间。鉴于其特点,基础设施应成为高技术公司的一个吸引力极,因为它正在朝着创新解决当今环境问题的方向发展。
该项目试图在建筑物与其环境、人工和自然之间建立一种关系,希望反映出一种设施,在探索技术解决方案的同时,保持与周围景观的对话。这是对一个功能程序的适当解决方案的回应,同时引入了不同的因素,使建筑对象成为能够确保其作为能源效率和可持续性基准的现代和创新的建议。这座建筑被设计成一个商业和文化中心,在地下室和底层,还有办公室和其他楼层的公寓。顶层有一个露台,有酒吧和休息区,可以俯瞰布加勒斯特的全景。
通过城市更新的过程,布加勒斯特市中心将成为一个具有公共性质的城市,并将使城市绿地的连续性,创造一条公共道路。从宫殿大厅的公园延伸到这两个建筑物所在的两个地点,可以在行人层面上找到,但也可以在建筑物内部找到。
这种“绿色”道路扩展了休闲路线,并使人们有机会在一楼增加一种公共功能,从而产生一个新的城市岛屿,这是十九世纪布加勒斯特特有的,其特点是在私人庭院的入口,里面装饰着美丽的花园,装饰着花饰。
这两座建筑物由一条行人道路连接在一起,这样可以提高地面的机动性,但也可以通过在相同的正交系统中处理正面的丰满和空旷。
绿色混杂是一种新的和未来主义干预的表现,表明这种正交化,无论是在平面上还是在外观上,都包含在这一自然元素中,使绿色空间得以延续。
绿色混合塔是一种现代化的表现,它的外部布局就像一个覆盖室内公共空间的表皮结构。入口是通过一个圆形的庭院与商店,书店和零售空间。其他楼层在办公区和起居区分为两个寄存器,由两个结构节点之间的核心植物隔开,标志着自然元素通过建筑物本身所代表的矿壳的过渡和连续性。
从附近建筑物的盲墙分离,使塔获得长细。这一区域由绿色植被墙解决,为办公区域提供了令人愉快的环境。
为了刺激室内发展的活动,需要可持续的设计,其特点是使用空调系统的单元,从内部使用绿色植物,确保减少夏季的能源消耗,并在冬季创造愉快和友好的环境。
Firm ȘIC team
Type Commercial › Office Retail Cultural › Cultural Center Gallery Residential › Apartment
STATUS Concept
keywords:architecture, architecture news, interiors, interior design, portfolio, spec, brands, marketplace, products Green Hybrid Tower
关键词:建筑,建筑新闻,室内设计,组合,规格,品牌,市场,产品绿色混合塔
客服
消息
收藏
下载
最近













































