查看完整案例


收藏

下载
架构师提供的文本描述。Jaggendorf House位于耶胡达·哈莱维街10号(Yehuda Halevy Street)10号,1925年由利伯森(Liberson)和范斯坦(Feinstein)建筑师设计,风格折衷。根据保护计划,这栋建筑被宣布为自然保护区,位于教科文组织宣布为文化世界遗产的地区。这座房子代表了上世纪20年代的简约风格。其对称主要表现在西侧。正面包括一个拱形阳台和一个带有护栏的突出阳台,以及一个遮住瓷砖屋顶的上部部分。外墙有丰富的长方形浮雕,装饰的飞檐和在屋顶边缘造型。在房子的后面,你可以看到沙岩限制了1892年在这里铺设的铁路线。
Text description provided by the architects. Jaggendorf House, at 10 Yehuda HaLevy Street, was designed in 1925, by the architects Liberson and Feinstein, in the eclectic style. The building was declared conserved according to the conservation plan and located in the area declared a cultural world heritage site by UNESCO. The house represents a somewhat minimalist style from the 1920s, with the symmetry mainly expressed on the west side. The façade includes an arcer and a projecting balcony with a parapet, as well as an upper section that conceals the tiled roof. The façade is rich in rectangular reliefs, decorated cornices and moulding at the roof edges. At the rear of the house one can discern the sandstone restricting the railway line that was laid here in 1892.
© Amit Geron
阿米特·杰龙(Amit Geron)
在20世纪初,“宅地协会”提出了一个新的想法:不再建造没有事先规划的小而拥挤的社区,如Neve Tzedek和Neve Shalom,而是建造一座新的希伯来人预先规划的城市,这将改变这块土地上定居点的面貌。这一新方法与宅基地协会的典型折中结构形成了完全相反的关系。该项目不仅通过转向城市,而且通过每套公寓的建筑空间,展示了这一新的面貌。通过使用黑色镀锌覆盖屋顶、墙壁、楼梯井和窗台,增加的建筑和原来的建筑成为一个统一的单元。整体色彩强调了建筑物的坚实的雕塑外观,由众多的功能元素塑造的公寓以外的干净空间。
In the early 20th century the “Homestead Association” introduced a novel idea: no longer would small and crowded neighbourhoods be built, devoid of prior planning, such as Neve Tzedek and Neve Shalom, but instead a new, Hebrew, pre-planned city would be constructed, which would alter the face of the settlement in the land. This new approach constituted the complete opposite to the typical eclectic construction of the Homestead Association. The project revealed this new look not only through its turning to the city but also through the architectonic space of each of the apartments. The addition and the original building became one homogenous unit through the use of black zinc plating to coat the roof, walls, stairwells and window sills. The monolithic colour stressed the solid sculptured appearance of the building, shaped by the multitude of functional elements beyond the clean space of the apartments.
© Amit Geron
阿米特·杰龙(Amit Geron)
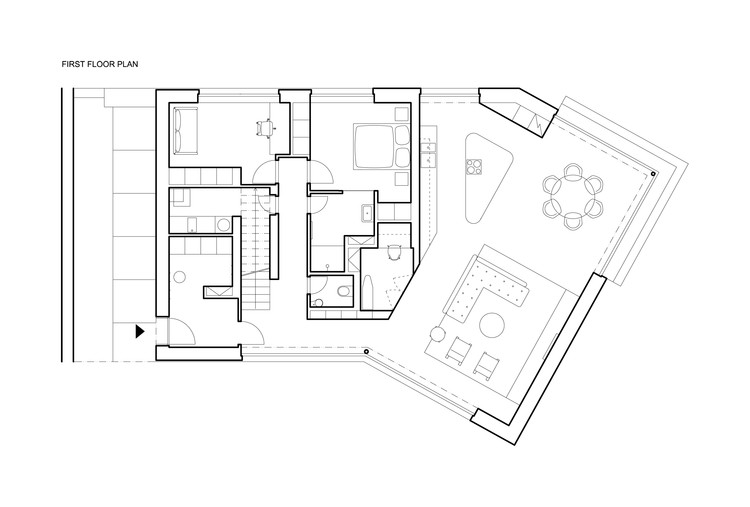
增加的设计符合特拉维夫的折中房屋的原始瓦片屋顶的几何形状。加建的镀锌墙构成了城市景观的框架。建筑物需要封闭的功能(如楼梯、电梯、厕所等)。位于从侧壁突出的锡“鸽子洞”中。这种几何图形让每套公寓都能看到城市的景色,黄昏时的太阳会深深地穿透整个空间。平面图很简单,但垂直层的变化创造了一种空间变化的体验,以及公寓内部倾斜的方向,有点类似于阁楼。
The design of the addition responds to the geometry of the original tiled roof that characterised the eclectic houses of Tel Aviv. The zinc-plated walls of the addition frame the urban landscape. The building’s functions that need to be enclosed (e.g. stairways, lift, toilets, etc.) are located in the tin “pigeon-holes” that protrude from the side walls. The geometry enables each apartment to have a view of the city, with the sun at twilight penetrating deeply into the space. The floor plan is simple but the change in vertical levels creates an experience of change in space and an inclined orientation inside the apartments, somewhat resembling that of a loft.
Axonometric
Roof Sections
顶板段
根据保护计划,该项目最大限度地利用了土地。附加物的扭曲和倾斜完全遵循保护计划的限制。屋顶上的每一个点都描绘了一个附加物允许的最大高度。附加物的无定形通过“鸽子洞”-浮雕-消防逃生和通往楼梯井的通道而增加。这些附加元素有助于将项目的零碎外观集成到环境中。该项目俯瞰特拉维夫早期定居点的遗迹,就像剧院一样:最初的建筑是舞台,老房子创造了第二层,新市镇提供了背景。
The project exploits a maximum use of the ground as determined by the conservation plan. The distorted and inclined body of the addition follows the restrictions of the conservation plan quite literally. Each individual point on the roof depicts the maximum height permitted for an addition. The amorphous shape of the addition is increased by the “pigeon-holes” – the reliefs – fire escape and access to the stairwells. These additional elements help to integrate the fragmented appearance of the project into the environment. The project overlooks the remains of the early settlement in Tel Aviv, like a theatre setting: the original building is the stage, the old houses create the second layer and the new town provides the background.
© Amit Geron
阿米特·杰龙(Amit Geron)
Architects Yaniv Pardo Architects
Location Tel Aviv-Yafo, Israel
Category Houses
Architects in Charge Yaniv Pardo and Natalie Zichrony
Project Year 2015
Photographs Amit Geron
Manufacturers Loading...
客服
消息
收藏
下载
最近






























