查看完整案例


收藏

下载
架构师提供的文本描述。生活是用瞬间来衡量的,最重要的是,我们能够对现实、机会、我们周围最简单的日常细节的神奇之处敞开心扉。
Text description provided by the architects. Life is measured in moments and, above all, in our ability to be open to reality, opportunity, the magic of the simplest everyday details that surround us.
© Norbert Tukaj
(Norbert Tukaj)
私人住宅建筑为分享日常混乱创造了空间,并为人们提供了玩耍的机会。看着火车经过,鹿群来到你的花园吃苹果,当孩子们在你身上爬山打雪仗的时候,把脚放在新割的草地上。它并不意味着一个干净的房子,但它肯定意味着美好的回忆。
Architecture of private housing creates spaces for sharing the everyday chaos and opens opportunities to play. Watching the trains pass by, deers coming to your garden to eat apples, putting feet on fresh cut grass while the kids are climbing on you and playing snowfights. It does not mean a clean house, but it sure means fantastic memories.
© Norbert Tukaj
(Norbert Tukaj)
生活不一定要完美才能精彩。这个故事不是关于房子,而是一个家。
Life doesn’t have to be perfect to be wonderful. This story is not about the house, but a home.
位于维尔纽斯的帕维尔尼斯地区公园,这座简陋实用的房子提供了一种超越物质的丰富感:纯粹的舒适、享受和生活质量。
Located in Pavilnys Regional Park in Vilnius this humble and practical house offers a sense of richness beyond materiality: pure comfort, enjoyment, and quality of life.
© Norbert Tukaj
(Norbert Tukaj)
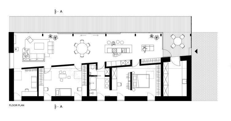
Floor plan
© Norbert Tukaj
(Norbert Tukaj)
这座建筑物被分成两部分。在一边,一个开放的公共空间,包括厨房,餐厅和生活区,跨越整个房子的长度。这一空间在一个充满活力和共享的环境中便利了日常的家庭生活,而不符合礼节或整洁。没有单独的房间可供阅读、吃饭或工作,只有一个充满活力和不断变化的空间,它包含了使一个房子成为一个幸福家园的一切:一些混乱,一点混乱,还有很多笑声。
The building is split into two functional halves. On one side, an open common space containing the kitchen, dining, and living areas spans the entire length of the house. This space facilitates everyday family life in a vibrant and shared environment, without conforming itself to formality or tidiness. There are no separate rooms for reading, eating, or working, only a dynamic and ever-changing space that embraces everything that makes a house a happy home: some messiness, a bit of chaos, and lots of laughter.
© Norbert Tukaj
(Norbert Tukaj)
一道玻璃墙将公共空间与花园连接起来,在那里,苹果园偶尔会吸引鹿,而当地公园的自然环境构成了房子内生活的动态背景。内外的反差是模糊的,季节变化的气氛在室内和室外都能感受到。
A wall of glazing connects the common space to the garden, where an apple orchard attracts the occasional deer and the natural surroundings of the regional park form a dynamic backdrop to life inside the house. The contrast between inside and out is blurred, and the atmospheres of the changing seasons are felt as much indoors as they are outside.
卧室和安静的空间位于大楼的另一半,为家庭成员提供了隐秘的空间,让他们远离骚动,允许隐私和个人空间,而不会与房子的其他部分完全断绝联系。面向东方的天窗为卧室和公共空间带来了晨光,确保了整个房间的明亮和通风。
Situated along the other half of the building, bedrooms and quiet spaces offer secluded areas for family members to retreat from the commotion, allowing for privacy and personal space, without total disconnection from the rest of the house. East facing skylights bring morning light to both the bedrooms and the common space, ensuring the house is bright and airy throughout the day.
© Norbert Tukaj
(Norbert Tukaj)
这座建筑表明,好的建筑不必过分。房子不是通过昂贵的材料或东西提供丰富,而是通过它的能力为生活设置场景。这是一个与自然融为一体的家,在那里你可以感受到你周围环境的一部分,在那里你可以和你的孩子们在雪地里玩耍,在花园里摘苹果。这是一个对比的家,提供隐秘和连接。一条铁路线与现场接壤,提供了7分钟的进城之旅,并与每一列经过的火车一起娱乐孩子们。这是一个促进记忆,拥抱家庭,庆祝日常生活的家。
The building shows that good architecture need not be excessive. The house does not offer richness through expensive materials or things, rather through its ability to set the scene for life. This is a home at one with nature, where you feel a part of your surroundings, where you can play with your children in the snow, and pick apples in the garden. This is a home of contrast, offering both seclusion and connectivity. A rail line borders the site providing a 7 minute trip into the city, as well as entertaining the children with every passing train. This is a home that facilitates memories, embraces family, and celebrates everyday life.
© Norbert Tukaj
(Norbert Tukaj)
Architects DO ARCHITECTS
Location Vilnius, Lithuania
Architect in Charge Sabina Daugėlienė, Algimantas Neniškis, Andrė Baldišiūtė, Ieva Marija Malinauskaitė
Area 150.0 m2
Project Year 2016
Photographs Norbert Tukaj
Category Houses
Manufacturers Loading...
客服
消息
收藏
下载
最近




























