查看完整案例


收藏

下载
架构师提供的文本描述。摩斯曼湾豪斯探索了两种截然不同的空间体验,一种是动态和流动的,另一种是被动的和沉思的。一个集中在对河流和城市的远见卓识,一个是嵌入花园。这是 Jekyll 博士和 Hyde Quality 先生对活动和公共空间、生活、就餐、烹饪和私人空间、睡眠、学习和洗澡的规划要求。
Text description provided by the architects. The Mosman Bay House explores two contrasting spatial experiences, one is dynamic and fluid and one is passive and contemplative. One focuses on the distant views to the river and city and one is embedded with the garden. This Dr Jekyll and Mr Hyde quality responds to the programmatic requirements of active and communal spaces; living, dining, cooking and private spaces; sleeping, study and bathing.
© Peter Bennetts(Peter Bennetts)
在引用 Eames 的“十的力量”时,我们探索了与该网站有关的多个尺度,在遥远的景色和家庭关系的动态之间波动,与花园和游泳池的触觉接触形成对比。上层是一条搁浅的小船,一艘船沿着河漂下,冲上了前滨,“你可以在城市里,但不能在城市里。你可以从那里回到水面,看到周围的一切都在你身边,留下你一个人。”(蒂姆·温顿-CloudStreet)。
In a reference to The Eames ’Powers of Ten’ we explored multiple scales of relating to the site fluctuating between distant views and the dynamics of family relationships, contrasted with the tactile engagement with the garden and pool. The upper level appears as a stranded boat, a vessel drifted down the river and washed up on the foreshore, "from the river you could be in the city but not on or of it. You could be back from it out there on the water and see everything go by you, around you, leaving you untouched" (Tim Winton- Cloudstreet).
第三个空间连接着内部和外部,上下层,一个很长的空间和一个日常体验的回归参考点。这是一个拒绝结束并随着外部条件迅速变化的空间。这个空间收集北极光,并分布夏季风,由一系列冷却池冷却。
A third space connects interior and exterior, upper and lower levels, one long space and a returning point of reference for day-to-day experiences. This is a space that refuses to end and changes rapidly with external conditions. This space collects north light and distributes summer wind chilled by a sequence of cooling ponds.
© Peter Bennetts(Peter Bennetts)
外部材料是触觉的,设计为自然气候,较低的水平是在白沙的渲染中完成的,是白河沙的前滨。上层是回收和搭的 Jarrah,这是一个流动的容器,在室内活动和家具的印记上蜿蜒而行,这是一个拒绝保持静止的空间。
External materials are tactile and designed to weather naturally, the lower level is finished in a white sand render, the foreshore of white river sand. The upper level is recycled and lapped Jarrah, a fluid vessel that meanders and wears the imprint of interior activities and furniture, a space that refuses to remain static. © Peter Bennetts (Peter Bennetts)
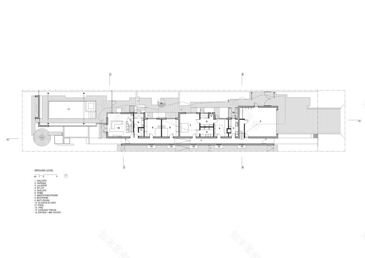
房子沿着场地的东西轴伸展,较低的空间都朝向北方的亲密和私人花园,收集冬季阳光和被动式热量。上层向北移动,为较低层建造一个连续的露台,为邻居提供隐私,并保护其免受夏季阳光的照射。上层血管的下腹被染成黑色,将地面反射到内部空间。上层的北移也允许冬季的太阳穿透到南部邻近的外部活动区。
The house is stretched along the east and west axis of the site, the lower level spaces all face north on to intimate and personal gardens, collecting winter sun and passive heat gain. The upper level shifts north to create a continuous veranda for the lower levels, providing privacy from neighbours and protection from summer sun. The underbelly of the upper level vessel is stained black reflecting the ground in to the interior spaces. The north shift in the upper level also allows winter sun penetration in to the south neighbours external activity areas.
Ground Level
Upper Level
这座花园是由卡里尔·波斯默斯专门设计的,以配合建筑理念,创造出一种抒情和整体的体验。在与倾斜的柱子和蜿蜒曲折的雅拉墙和屏幕对话中,一系列“跳舞”的白色吠叫的桉树过滤着北太阳,这些墙和屏风一直通向游泳池“比拉邦”(Billabong)。
The garden was specifically designed by Carrier Postmus to engage with the architectural concepts creating a lyrical and holistic experience. A series of ‘dancing’ white barked eucalypts filter north sun while in dialogue with the tilting columns and the meandering lapped Jarrah walls and screens leading one to the pool ‘Billabong’. © Peter Bennetts (Peter Bennetts)
一个野生动物创造了一个凉爽而郁郁葱葱的避难所,将绿色光线反射到书房和浴场。一个微妙的土生土长的“地毯”花园和橄榄灰色的调色板回应了白色的河流沙墙,加强了一种河流前滨的感觉。一个隐藏的空间与气体壁炉和移动循环水允许一个人‘漂移’在边缘的财产。
A fernery creates a cool and lush refuge space reflecting green light into the study and bathing areas. A subtle native ‘carpet’ garden and olive grey colour palette responds to the white river sand walls reinforcing a sense of river foreshore. A hidden space with gas fireplace and moving recycled water allows one to ‘drift’ on the edge of the property.
© Peter Bennetts(Peter Bennetts)
帕梅拉·甘特 (PamelaGaunt) 的一种综合玻璃艺术,将建筑的线条与河流蜿蜒的线条结合起来,将图案和色彩反射到白色的长凳上。
An integrated glass art by Pamela Gaunt layers the lines of the architecture with the meandering line of the river, reflecting pattern and colour on to the white island bench. © Peter Bennetts (Peter Bennetts)
可持续设计
Sustainable Design
这所房子位于一个充满挑战的狭长地带,位于东西向。这对房屋的环境设计产生了很大的影响,它向东向西延伸,最大限度地利用室内空间的关系来收集冬季的北被动热量。高层进一步向北移动,以建立一个连续的阳台,保护地面空间免受夏季阳光的照射,同时允许南方邻居仍能享受冬季的阳光。上层的阳台和剖面是通过太阳模型形成的,评估冬季太阳穿透到较低层,并考虑到上层的功能要求。
This house is on a challenging long and narrow site in an east west orientation. This greatly influenced the environmental design of the house, it is stretched in an east west direction maximising the relationship of interior spaces to collect north passive heat gain in winter. The upper level shifts further north to create a continuous veranda protecting ground level spaces from summer sun while allowing the southern neighbour to still enjoy winter sun. The veranda and profile of the upper level was shaped by solar modelling assessing winter sun penetration to lower levels and in consideration of the functional requirements of the upper level.
© Peter Bennetts(Peter Bennetts)
朝南的开放式画廊空间沿着房子的整个长度延伸,让西南风吹过整个房子。一系列独立的冷却池被放置在每个内门附近并打开,允许个人控制冷却。在每个冷却池旁边都有一个地面遮阳窗,上面有一层挡板。西南风由后墙的雕刻和弯曲轮廓漏斗,增加了风速。池塘上的风自然冷却了。
A south facing open-ended gallery space extends along the entire length of the house allowing the southwest winds to filter through the entire house. A series of individual cooling ponds are placed adjacent to each internal door and opening allowing individual control of cooling. A ground level awning window with flyscreen accompanies each cooling pond. The southwest winds are funnelled by the sculptured and curved profile of the rear wall, increasing the velocity of the winds. The wind flowing over the pond is naturally cooled.
雕塑的形式也允许自然光进入这个南方的空间,加热墙壁和蜡混凝土地板。
The sculptured form also allows natural light in to this southern space heating the walls and waxed concrete floor.
地面空间可以划分,以便于取暖和冷却和个人控制。风扇被提供到地面空间进行额外的冷却。这些空间没有空调。
The ground level spaces can be compartmentalised to allow easy heating and cooling and individual control. Fans are provided to the ground level spaces for additional cooling. There is no air conditioning to these spaces. © Peter Bennetts (Peter Bennetts)
上面的水平包括北面的突出窗口,旨在允许冬季太阳被动式热增益。
The upper level includes north facing highlight windows designed to allow winter sun passive heat gain.
它被覆盖在重叠和油回收的吉拉,并任由自然的天气随着时间的推移。
It is clad in lapped and oiled recycled jarrah and is left to weather naturally over time.
后方空间有助于未来证明房子,并允许共同世代的生活。
A rear space helps to future proof the house and allow for co-generational living. © Peter Bennetts (Peter Bennetts)
在规划审批过程中,发展署长担心我们的可持续设计方法会导致该地区的房屋“贬值”。我们被要求向市长和发展审批小组提交报告,在介绍过程中,市长问我们为什么要出席,他指出,设计和可持续设计原则是有抱负的,并认为“如果按预期建造”将导致一个具有重大环境和社会价值的项目。
During the planning approval process, the Director of Development was concerned that our sustainable design approach would result in a house that would ‘de-value’ the area. We were requested to present to the mayor and development approval panel. Mid way through the presentation, the mayor asked why we had been asked to present. He noted the design and sustainable design principles were aspirational and believed “if built as intended” would result in a project of significant environmental and social value. © Peter Bennetts (Peter Bennetts)
Architects iredale pedersen hook architects
Location Mosman Park, Australia
Category HousesArea 474.0 sqmProject Year 2015
Photographs Peter Bennetts
客服
消息
收藏
下载
最近




















































































