查看完整案例


收藏

下载
Courtesy of Gabriela Caicedo-Liebert
加芙列拉·凯西多·利伯特(Gabriela Caicedo-Liebert)
架构师提供的文本描述。迪利多·豪斯是一座独具特色的家庭住宅,设计具有独特的视觉、表现力、个人故事和建筑历史。其目的是建立一个尊严和诚实的架构。这些想法建立在迈阿密丰富的历史、地理和文化的坚实基础之上,同时使用最新的建筑技术和高质量的材料。DiLido Haus的正面展示了MIMO的关键特征,这是一种从艺术装饰和流线型发展而来的建筑风格。带有水平比例的矩形,平面屋顶宽阔的突出屋檐与阳台的水平突出部分相呼应,形成了两条细长的连续灰色线条,画在白色的外墙上,并将其划分为三个元素:屋顶露台、二楼和一楼。
Text description provided by the architects. DILIDO HAUS is a single family home designed with a unique vision, the expression of both, personal story and architectural history. The intention was to achieve an architecture of dignity and honesty. The ideas built upon the strong foundations of Miami’s rich history, geography and culture, while using the latest construction technologies and high quality materials. The front façade of Dilido Haus expresses the key characteristics of MIMO, an architectural style that evolved from Art Deco and Streamline. A rectangle with horizontal proportions, flat roof broad overhanging eaves echoed by horizontal projections of balconies, creating what appear to be two thin continuous gray lines drawn across the white façade and dividing it into three elements: roof terrace, second and ground floor.
Courtesy of Gabriela Caicedo-Liebert
加芙列拉·凯西多·利伯特(Gabriela Caicedo-Liebert)
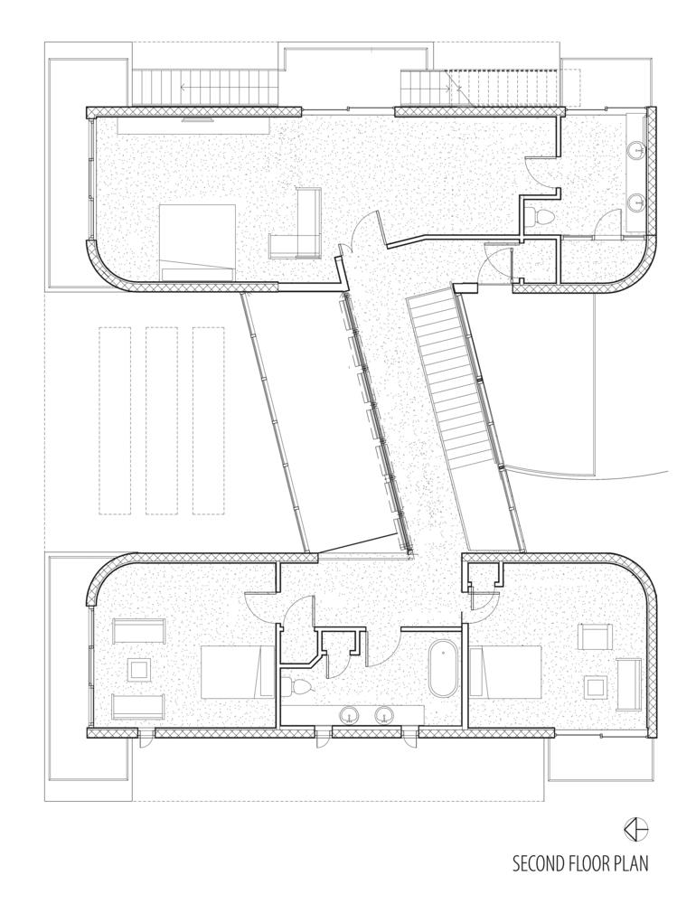
两个相同的白色,圆角,无窗的砖块形成了一个镜子的形象,彼此面对一个慷慨的内部庭院,部分由一个双高度商店前面的玻璃墙。一座薄桥连接着这两个卷。这些街区的坚固性与其对庭院的内部开放和扩大室内空间的外部阳台突出形成了鲜明的对比。水平面似乎是由传统的、薄的圆形钢柱悬挂的。弯墙将车口与外部台阶隔开,导致主入口着陆,加强了中轴线向西移动,产生了微妙但明显的不对称。从前门开始,主轴以马赛克线的形式投射到地板上,以蛇形运动穿过中央室内空间,一直延伸到外盖的后露台,浸入水池,并在水景的墙壁上找到终点。
Two identical white, round cornered, windowless blocks form a mirror image of one another facing a generous interior courtyard, partially enclosed by a double height store front glass wall. A thin bridge connects the both volumes. The solidity of the blocks contrasts with their interior openness to the courtyard and the exterior balcony projections that expand the interior spaces. The horizontal planes appear to be suspended by traditional, thin round steel columns. The curved wall separates the car port from the exterior steps leading to the main entrance landing, strengthening the central axis shift to the west and producing a subtle but noticeable asymmetry. From the front door, the main axis is projected onto the floor as a mosaic line, running in serpentine motion across the central interior space to the exterior covered back patio, dipping into the pool and finding and end point on the wall of the water feature.
Courtesy of Gabriela Caicedo-Liebert
加芙列拉·凯西多·利伯特(Gabriela Caicedo-Liebert)
Courtesy of Gabriela Caicedo-Liebert
加芙列拉·凯西多·利伯特(Gabriela Caicedo-Liebert)
DiLido Haus是用浇筑的混凝土建造的。由于岛屿的沙质地形,30多个山脚,大约12米(40英尺)深支撑着地基。玻璃窗和门抵御110公里/小时(177英里/小时)的风。一楼比100年的洪泛平原高出75厘米(2.5英尺)。
Dilido Haus was built using poured in place concrete. Due to the sandy terrain of the island, more than 30 pilotis, approximately 12 meters (40 feet) deep support the foundation. The glass windows and doors resist 110 Km/h (177 miles per hour) winds. The first floor is elevated 75 cm (2.5 feet) above the 100 year flood plain.
关于加芙列拉·凯西多·利伯特
About Gabriela Caicedo-Liebert
加布里埃拉·利伯特,也叫加芙列拉·凯西多,出生于厄瓜多尔的基多。她毕业于杜兰大学,获得建筑学硕士学位。加布里埃拉随后在纽约市的罗克韦尔集团和佛罗里达州迈阿密的阿奎托尼察工作。2000年,加芙列拉在珊瑚山墙的卢迈内尔工作,在那里她扩展了她对高端欧洲现代家具和室内空间规划的知识。加布里埃拉专业设计创新的原型和独特的住宅项目,特别强调概念设计的发展。此外,加布里埃拉目前代表美国建筑师协会,欧洲分会,作为德国主任。
Gabriela Liebert, also known as Gabriela Caicedo, was born in Quito, Ecuador. She graduated with a Masters in Architecture from Tulane University. Gabriela then worked for The Rockwell Group in New York City and Arquitectonica in Miami, Fl. In 2000 Gabriela worked at Luminaire, Coral Gables where she broadened her knowledge of high end European modern furniture and Interior Space Planning. Gabriela specializes in the design of innovative prototypes and unique residential projects, with a strong emphasis in the development of conceptual design. Additionally, Gabriela currently represents the American Institute of Architects, European Chapter, as Germany Director.
Courtesy of Gabriela Caicedo-Liebert
加芙列拉·凯西多·利伯特(Gabriela Caicedo-Liebert)
Architects Gabriela Caicedo-Liebert
Location Miami-Dade County, United States
Category Houses
Area 337.0 sqm
Project Year 2016
客服
消息
收藏
下载
最近






















