查看完整案例

收藏

下载
© Daniela Mac Adden
c.Daniela Mac Adden
架构师提供的文本描述。亚美尼亚大厦位于布宜诺斯艾利斯市的一个社区-- 巴勒莫·索霍 (Palermo Soho)。由于过去十年发生的士绅化进程,巴勒莫 SOHO 得到了更新,成为美食、文化、商业和旅游热点,提高了该地区的房地产价格。
Text description provided by the architects. Armenia Building is located in Palermo Soho, a neighborhood in the city of Buenos Aires. Due to the gentrification process occurred during the last decade, Palermo Soho was renewed and became a gastronomic, cultural, commercial and touristic hotspot, which has raised real estate prices in the area.
© Daniela Mac Adden
c.Daniela Mac Adden
该大楼位于亚美尼亚街,一条平均宽度的公路,两旁都是年代久远的树木。
The building is situated on Armenia Street, an average width road lined with aged trees.
© Daniela Mac Adden
c.Daniela Mac Adden
为了从该地区的潜力中获利,一家投资集团委托一栋公寓楼在一楼开了一排商店。这座建筑应该由一套多样化的公寓组成。虽然委员们打算他们中的大部分都是可以暂时出租给游客的阁楼,但更宽敞的公寓 (一间、两间和三卧室的公寓) 将作为永久住宅出售。有人要求该项目应包括公共区域、绿地、日光浴室,并应赋予水的存在。在物质性方面,客户已经了解了工作室在其作品的美学和使用暴露混凝土的经验方面的职业生涯。他们认为这不仅是出于美学上的原因,而且也是因为它需要最低限度的维护。
In order to profit from the area’s potential, an investment group commissioned an apartment building with a row of stores on the ground floor. The building should be composed of a varied set of apartments. While the commissioners intended most of them to be lofts that could be temporarily rent out to tourists, the more spacious unities (one, two, and three-bedroom apartments) would be sold as permanent residencies. It was requested the project should include common areas, green spaces, a solarium, and should also be endowed with water presence. With respect to materiality, the clients already knew the Studio’s career regarding the esthetics of its works and its experience in the use of exposed concrete. They considered it fit for the project not just for esthetics reasons, but also because it requires minimum maintenance.
© Daniela Mac Adden
c.Daniela Mac Adden
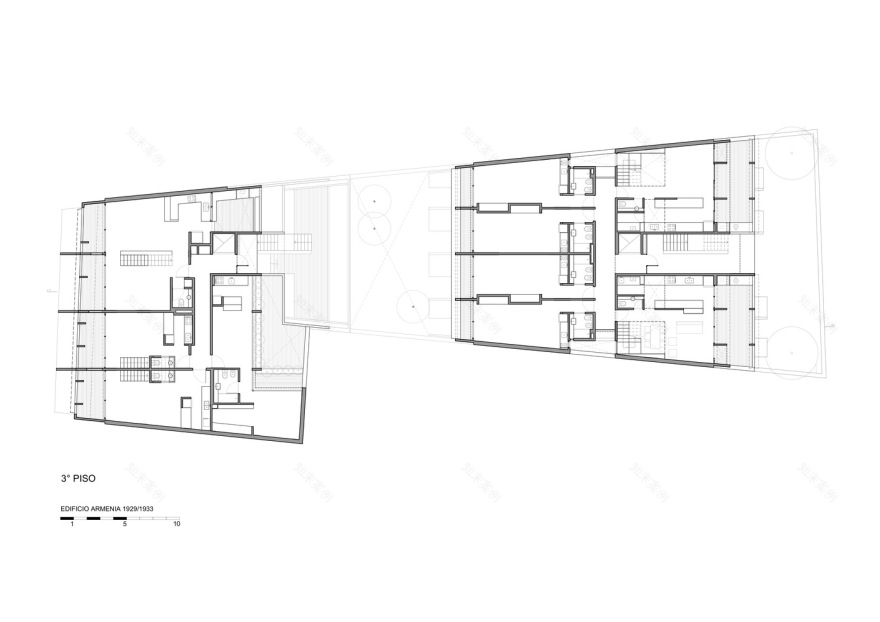
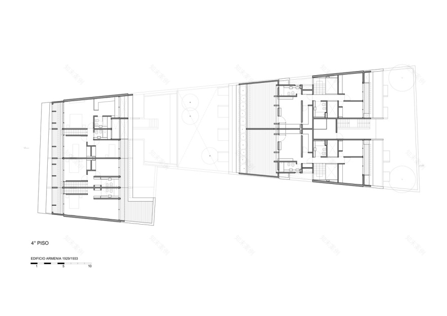
该项目综合开发了一座由中间的露台连接的两块紧凑型建筑,作为设计的核心。这些街区的高度是由代码的分区决定的:底层和其他四层。根据代码的要求,前排的不同楼层是按向内上升的步骤组织的。这一结构反映在后面的块,以便获得更好的阳光,空气和景观,倒在上一层,并产生一个开放的中央露台。
The project synthesis developed a building organized in two compact blocks linked by a patio in-between that would function as the heart of the design. The blocks’ height was determined by the code’s zoning: ground floor and four other floors. According to the code’s requirements, the different floors on the front block are organized in steps ascending inwards. This structure is mirrored by the block in the rear so that better insolation, air and views may be achieved, falling backwards on the upper floors and generating an opening towards the central patio.
© Daniela Mac Adden
c.Daniela Mac Adden
工作室的目的是避免这个空间的限制,因此地面免费平面图连接街道面积,中央庭院和后院。从建筑物的正面退去,前面的双高商店扩大了人行道的空间。商店的间隙位于大楼的入口,除了允许空气进入共管公寓的栅栏外,没有其他关闭的物理屏障。穿过整个平面图的空气缓和了公共空间和私人空间之间的过渡。
The Studio’s intention was to avoid this space’s confinement, so the ground free floor plan connects the street area, the central patio and the backyard. Receded from the building’s facade, the double-height stores set in the front expand the sidewalk space. Among the stores’ interstices is located the entrance to the building, with no closing physical barrier other than a fence that allows the passing of air into the rest of the condominium. The air going through the whole floor plan softens the transition between the public and private spaces.
© Daniela Mac Adden
c.Daniela Mac Adden
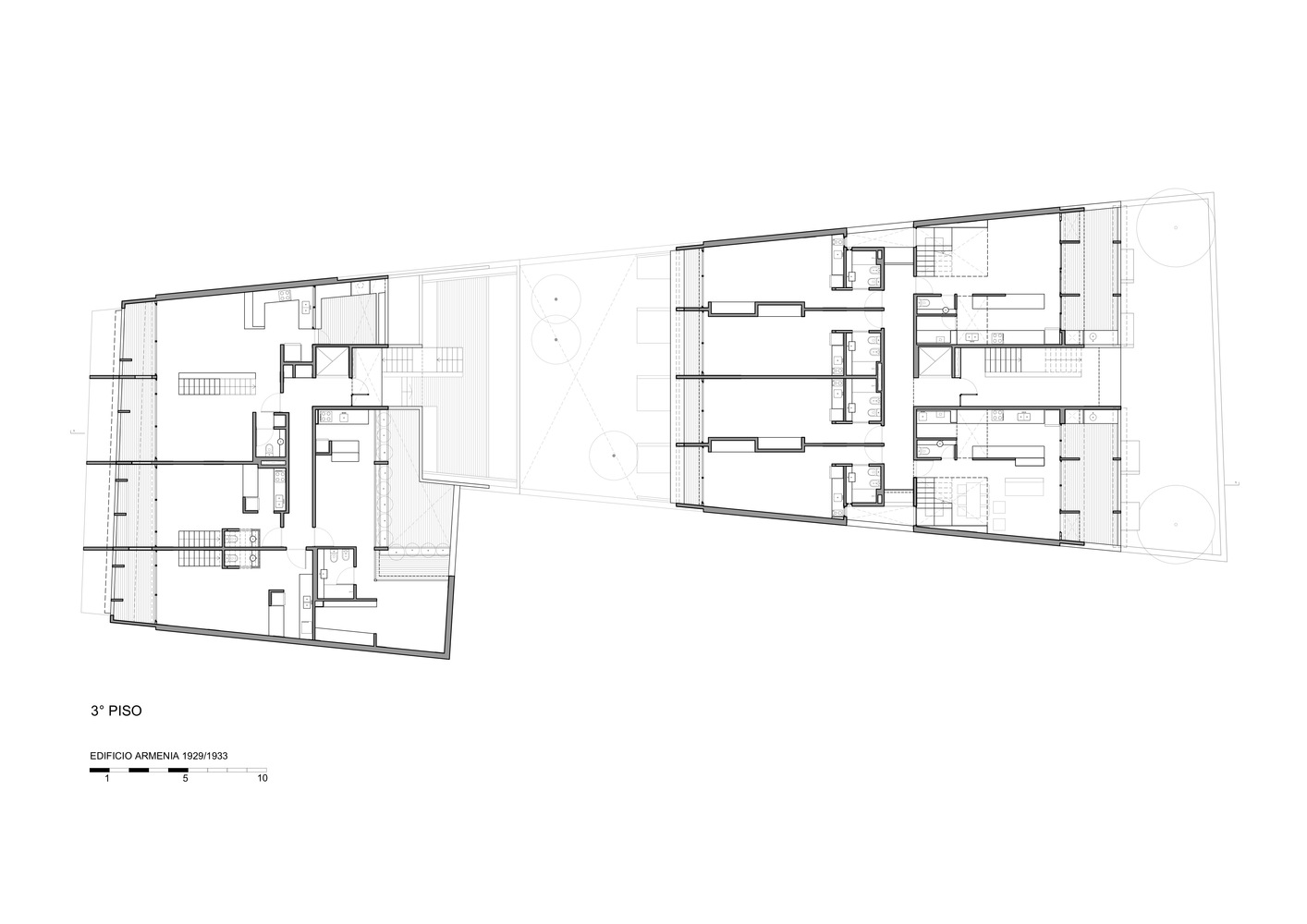
关于平面图的组织,两个街区的面积排列在一个正交的网格上。这个网格是双边设置在一个轴线的两侧,通过网站绘制的梯形。每个地块都有自己的循环核,都位于同一轴上。
Regarding the floor plan’s organization, both blocks area arranged over an orthogonal grid. This grid is bilaterally set on both sides of an axis that cuts through the trapezoid drawn by the site. Each block has its own circulatory nucleus and both lie on this same axis. © Daniela Mac Adden c.Daniela Mac Adden
© Daniela Mac Adden
c.Daniela Mac Adden
随着网站的几何学,多样化的类型要求我们的客户和意图实现良好的照明和通风的家庭被赋予良好的意见是该项目的主要挑战。
Along with the site’s geometry, the diverse typology requested by our customers and the intention to achieve well lit and aired homes endowed with good views were the project’s main challenge.
© Daniela Mac Adden
c.Daniela Mac Adden
关于立面,一个由垂直隔墙和水平屋檐组成的遮阳系统被设计成一种阳光控制装置,它也可以将公寓从街道的视野中遮住。
Regarding the facade, a brise-soleil system composed of vertical partitions and horizontal eaves was designed to function as a sun control artifact that would also shelter the apartments from the view from the street.
© Daniela Mac Adden
c.Daniela Mac Adden
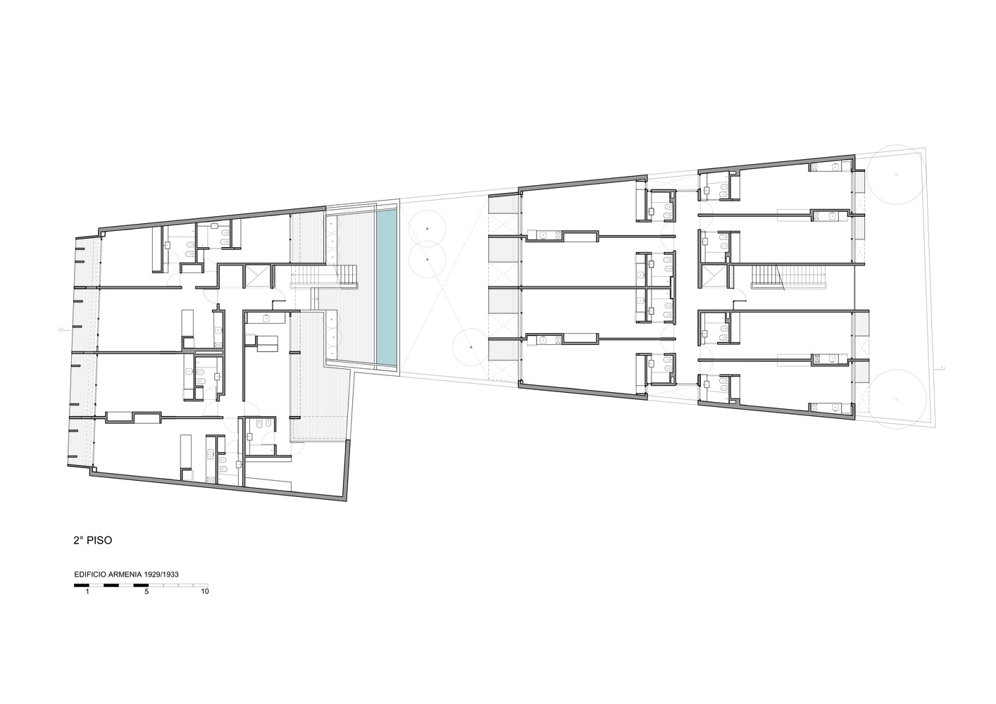
除了中央庭院,为其设计自然造林,共管公寓有一个常用的日光浴室和反射池在第二层,倾斜在露台上。
Apart from the central patio, for which natural forestation was designed, the condominium has a common use solarium and reflecting pool on the second level that lean over the patio.
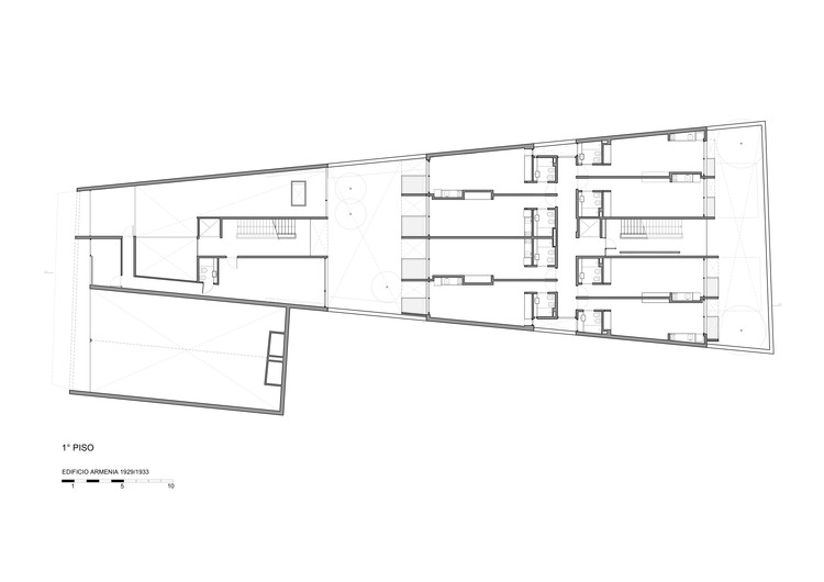
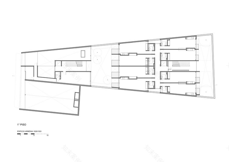
1st Floor Plan
一楼图则
中央露台有半覆盖的空间,可以用作停车位,但地下楼层也有一个车库和私人储藏室,可以通过电梯进入。
The central patio has semi covered spaces that may be used as Parking slots, but also there is a garage and private storerooms on the underground floor that can be accessed through a car elevator.
© Daniela Mac Adden
c.Daniela Mac Adden
当建筑工程已进行得很好时,运输署长便取得地盘旁边的土地,将其纳入工程项目,而原有的设计亦须加以修改。前面有新的商店,新的公寓 (现在是三十四套) 被纳入现有的结构,利用为原项目开发的循环核子。布丽斯-- 太阳系统被改造成与新建筑整合的元素。
When the construction was already well advanced, the commissioner acquired the lot next to the building site to incorporate it into the project and the original design needed to be adapted. New stores were included on the front and the new apartments (which were now thirty four) were integrated into the existing structure, making use of the circulatory nucleuses developed for the original project. The brise-soleil system was adapted so that it would serve as an integrating element with the new building.
© Daniela Mac Adden
c.Daniela Mac Adden
外露混凝土存在于建筑物外壳及公共区域、循环系统核、楼板底座以及由光滑混凝土制成的室内外地板上。与之相反的是,内部隔墙是涂成白色的砖墙。虽然公寓的框架是由深色的和尚阳极氧化铝,黑色的钢为前面的框架,内部结构支持商店的梅萨纳,以及其余的伪造。
The exposed concrete is present all over the building shell, as well as in the common areas, the circulatory nucleuses, the slab bases and both the indoor and outdoor floors, made of smooth concrete. In contraposition, inner partitions are plastered brick walls painted in white. While the apartments’ framing is made of dark bonze anodized aluminum, black steel was selected for the front framings, the internal structure supporting the stores’ mezzanines, and the rest of the forges.
© Daniela Mac Adden
c.Daniela Mac Adden
- Architects BAK Arquitectos- Location Palermo, Autonomous City of Buenos Aires, Argentina- Category Apartments- Armenia 1933 original project Architects María Victoria Besonías + Luciano Kruk- Armenia 1929 extension project architect Luciano Kruk- Area 3200.0 sqm- Project Year 2016- Photographs Daniela Mac Adden- Manufacturers Loading...
客服
消息
收藏
下载
最近



























