查看完整案例


收藏

下载
© RobitailleCurtis
© RobitailleCurtis
架构师提供的文本描述。这个镇上的房子有一个32英尺的中庭,天窗通通整个房子的宽度。我们的设计包含了这一特点,并提高了其动态内部体积的经验。一个壁炉被整合为一个中央协调中心。在地幔顶部是一个巨大的书架,提供存储和视觉兴趣,因为它吸引了一个人的眼睛向上通过中庭。
Text description provided by the architects. This townhome has a 32’ atrium with a skylight running the full width of the house. Our design embraces this feature and heightens the experience of its dynamic interior volume. A fireplace is integrated as a central focal point. Atop the mantle is a grand bookcase that provides storage and visual interest as it draws one's eyes upward through the atrium.
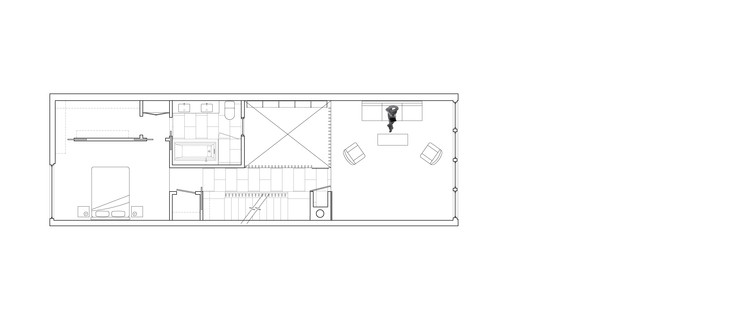
在主要的生活层次,厨房已经从房子的前部搬到了后面,现在它在靠近窗户墙的位置享受着更多的开放空间和阳光,可以看到一个新设计的花园。精心制作的“立方体”是底层平面图的主要组织要素。它是一种比例很好的物体,当它将起居室与中庭和厨房隔开时,它可以在空间中定向运动。“立方体”包含两个隐蔽的玻璃口袋门,使客厅被关闭。它还隐藏在家庭的主要入口的大衣衣柜和隐藏一个谨慎的化妆室。
At the main living level, the kitchen has been relocated from the front of the home to the rear where it now enjoys more open space and daylight in its position adjacent a window wall with views to a newly designed garden. A carefully detailed millwork 'cube' is a primary organizing element of the ground floor plan. It is a nicely proportioned object that orients movement through the space as it separates the living room from the atrium and kitchen. The 'cube' contains two concealed glass pocket doors that enable the living room to be closed off. It also conceals a coat closet at the main entry of the home and hides a discreet powder room.
© RobitailleCurtis
© RobitailleCurtis
在底层和上通过中庭和主楼梯,垂直谷物道格拉斯冷杉板条提供屏蔽意见,通过家庭和消除了护栏的必要性。道格拉斯冷杉,混凝土地板,白色漆磨坊结合,创造了一个脆,干净,温暖的材料调色板。
At the ground floor level and up through the atrium and main stair, vertical grain Douglas fir slats provide screened views through the home and eliminate the necessity for guardrails. Douglas fir, concrete floors, and white lacquered millwork combine to create a crisp, clean, and warm material palette.
© RobitailleCurtis
© RobitailleCurtis
在三层楼,在中庭顶部安装了一层净“地板”,使空出空间成为与孩子卧室相邻的戏剧性的玩耍表面。在这一地点使用网不需要护栏,并打开楼面平面图,使进出三楼的视野畅通无阻。太阳马戏团的钻机提供并安装了天网。
At the third floor level, a net 'floor' has been installed at the top of the atrium allowing the void space to become a dramatic play surface adjacent to the kid’s bedrooms. The use of a net in this location precludes the need for guardrails and opens the floor plan to unimpeded views to and from the third floor. Riggers from Cirque du Soleil provided and installed the trapeze net.
在花园中,与厨房相邻的覆盖座位区用于模糊内部生活空间和外部之间的边界。小心放置的角梁创建了一种从相邻建筑中提供隐私的空间树篱,同时将注意力集中在花园的后面。在花园的末端,从一个成熟的森林和云杉树那里借用了景色,增强了这个小城市花园的光泽感。此外,在混凝土台内建造的小、浅的喷泉充当焦点。
In the garden a covered seating area adjacent to the kitchen serves to blur the boundary between the interior living spaces and the exterior. Carefully placed hornbeams create an aerial hedge offering privacy from adjacent buildings while focusing attention towards the rear of the garden. At the garden's terminus, views are borrowed from a mature grove of hemlocks and spruce trees, enhancing the sense of lushness in this small city garden. Additionally, a small, shallow, fountain built into a concrete bench serves as a focal point.
© RobitailleCurtis
© RobitailleCurtis
Architects RobitailleCurtis
Location Montreal, Canada
Category Houses
Design Architect Andrew Curtis AIA, MRAIC, LEED BD+C
Designer Marie-Eve Lamarre Brodsky
Project Year 2016
Photographs RobitailleCurtis
客服
消息
收藏
下载
最近



















