查看完整案例


收藏

下载
© Michael Moran
迈克尔·莫兰
架构师提供的文本描述。为了提高它与周围环境的关系,建筑师们把一座简单的房子推向了极致。这座伸展而细长的房子的一端被锚定在山上,另一端则漂浮在沼泽湿地上。下雨时,水从房子下面流过:就在入口处的人行桥旁边,一座长满巨石的雨水花园级联在房子下面,一直延伸到草地下面。
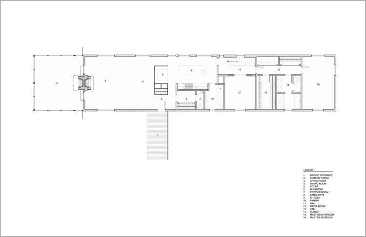
Text description provided by the architects. In order to heighten how it relates to its surroundings, the architects took a simple house to the extreme. One end of this stretched, elongated house is anchored into the hill, while the other floats over marshy wetlands. When it rains, the water literally runs under the house: next to the entry footbridge, a boulder strewn rain garden cascades underneath the house to the meadow beyond.
© Michael Moran
迈克尔·莫兰
专为热爱自然的夫妻而建造,即将退休到农村,房子集成了。“正在进行老化”在设计中,房子都在一个层面上,以便景观在四周升起和掠夺,以便在视觉上抵消未来的移动性损失。为了最大限度地体验户外的体验,可以享受全年的经过筛选的门廊,这多亏了一个大的Fieldstone壁炉和可互换的筛选和玻璃墙板。考虑到人(和犬类)的中心设计,所有侧面的窗户都是横向框架,朝向果园,到湖边,穿过树林,有两个低窗被战略性地放置,所以狗也能观察到。
Built for a nature loving couple who is retiring to the countryside, the house integrates ‘aging in place’ into its design. The house is all on one level, sited so that the landscape rises and plunges on all four sides, in order to visually counteract the future loss of mobility. In order to maximize the experience of outdoors, the screened porch can be enjoyed year-round, thanks to a large fieldstone fireplace and interchangeable screened and glass wall panels. Taking human (and canine) centered design into account, windows on all sides frame key vistas; up towards the orchard, down to the lake, and across to the woods. Two low windows are strategically placed so the dogs can look out as well.
© Michael Moran
迈克尔·莫兰
© Michael Moran
迈克尔·莫兰
与奥尼尔·罗斯建筑师(O‘Neill Rose Architect)的审美风格相符的是,他们对安坐的敏感态度与干净、轻盈的室内装饰搭配在一起。在细节上可以找到对乡村民谣的简化引用,比如弯弯吊顶缆索。与其他项目一样,关键家具和照明也是由建筑师设计和制造的,其中包括黑钢灯饰和蓝色柏木餐厅。
True to their aesthetic, O’Neill Rose Architects paired their sensitive approach to siting with clean, light filled interiors. Streamlined references to the rural vernacular can be found in details like the turn buckle ceiling cables. As with other projects, key furniture and lighting is designed and fabricated by the architects, including the blackened steel light fixtures and the blue cypress wood dining enclosure.
© Michael Moran
迈克尔·莫兰
产品描述。本项目的主要材料之一是柏树。我们喜欢用一种既突出我们作品的新颖性,又以新的视角投射原始上下文的方式来重新解释上下文。这一地区的农业建筑,是一种简单的木框架结构,以田野石基为基础,与我们产生了很大的共鸣。石头把建筑物固定在地面上,较轻的木结构与周围的建筑接触。我们觉得这个姿势非常合适,我们可以用它来真正地引起人们对建筑物在工地内的位置的注意。我们选择用柏木的垂直板包住大楼,用乌木染色,因为它是一种非常漂亮的木头,半透明的颜色展示了它的美丽。
Product Description. One of the principal materials in this project is cypress. We like to re-interpret context in a way that highlights both the newness of our work and casts the original context in a new light. The agricultural buildings in the area, which are simple wood framed structures with field stone bases, really resonated with us. The stone bases anchor the buildings to the ground, and the lighter, wood structures engage the surrounding site. We felt this gesture was really appropriate, and we could use it to really call attention to the building’s position within it’s site. We chose to clad the building in vertical boards of cypress, stained with ebony, because it is a really beautiful wood, and the translucent stain showcased its beauty.
© Michael Moran
迈克尔·莫兰
我们也在室内使用它;柏树和外面一样的乌木污渍创造了厨房服务酒吧所居住的“房子里的房子”,而一种特殊的蓝染柏树围护设施作为厨房栅栏圈发挥双重作用,这是开放式规划中的一个空间分隔器。
We used it at the interior as well; cypress with the same ebony stain as the exterior creates the ‘house within the house’ that the kitchen service bar inhabits, while a special blue stained cypress enclosure plays double duty as a kitchen banquette enclosure, a spatial divider within the open plan.
© Michael Moran
迈克尔·莫兰
Architects O’Neill Rose Architects
Location Sheffield, United States
Category Houses
Architect in Charge Devin O’Neill
Area 3000.0 ft2
Project Year 2016
Photographs Michael Moran
Manufacturers Loading...
客服
消息
收藏
下载
最近
























