查看完整案例


收藏

下载
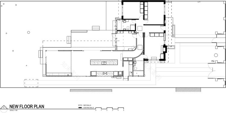
架构师提供的文本描述。翻修和扩建后,一个中等大小的‘前’住房委员会半分离熟料砖1940年在汉普顿的房子,位于慷慨的分配。
Text description provided by the architects. A renovation and extension to the rear of a modest sized ‘ex’ housing commission semi-detached clinker brick 1940’s house in Hampton, located on a generous allotment.
© Christine Francis
(克里斯蒂娜·弗朗西斯)
业主需要更多的空间,更新的设施,并希望与外界有牢固的联系。精心旅行的夫妇想要一个宁静、平静和放松的环境来拜访家。
The owners required more space, updated amenities and desired a strong connection to the outside. The well travelled couple wanted a tranquil, calm and relaxing environment to call home.
© Christine Francis
(克里斯蒂娜·弗朗西斯)
常常是旅程,而不仅仅是目的地,给生活带来欢乐和兴奋。通过这一项目的旅程从进入经过翻新的房屋开始,其中包括所有新的/更新的设施。现有的走廊然后指示您通过黑色木材覆盖弯曲隧道,在那里的末端是不可见的。目的地是一个惊喜,神秘等待着你的追踪。一种大型轻质木结构出现,呈现出新的开放式居住空间。这个帐篷就像空间一样,朝向北,周围是玻璃和木材,外面有一个木甲板。你的目的地已经到达-就目前而言,是一个放松和梦想旅行的地方。
Often it’s the journey and not exclusively the destination that brings joy and excitement to life. The journey through this project begins by entering through the renovated house which includes all new / updated facilities. The existing hallway then directs you through a black timber clad curved tunnel where the end is not visible. The destination is a surprise, the mystery a waits as you track on. A large light weight timber structure emerges that presents the new open plan living spaces. This tent like space is orientated to the north surrounded with glass and timber and extends outside with a timber deck. Your destination has been reached – for now, a place to relax and dream of traveling.
Courtesy of Nic Owen Architects
由尼克·欧文建筑师提供
Courtesy of Nic Owen Architects
由尼克·欧文建筑师提供
一个单一的外部皮肤包裹在新的扩展,定义了新的空间,在一个帐篷,如庄园。单一拱形屋顶线上升到北方,提供了一种空间的感觉,同时仍然保持着亲密的人类规模。这种上升的垂直高度使高窗户有机会捕捉到邻近树木的延伸视野。
A monolithic external skin wraps around the new extension defining the new space in a tent like manor. The single vaulted roof line rises up to the north providing a feeling of space whilst still maintaining an intimate human scale. This increased vertical height gave the opportunity for high windows to capture extended views of neighboring trees.
© Christine Francis
(克里斯蒂娜·弗朗西斯)
一个弯曲的黑暗隧道把原来的房子与新的作品分开,提供了一个神秘和惊喜的元素。
A curved dark tunnel separates the original house from the new works providing an element of mystery and surprise.
© Christine Francis
(克里斯蒂娜·弗朗西斯)
延伸沿南部边界运行,以利用北方的太阳收益,重新定位现有的关系与后院。
The extension runs along the south boundary to capitalize on northern solar gain, reorientating the existing relationship to the backyard.
© Christine Francis
(克里斯蒂娜·弗朗西斯)
街道上几乎看不到这些作品。新的作品尊重原来的点击砖块1940年的房子庆祝原来的特点。大部分原来的房子仍然存在,新的工程隐藏在后面。从街道上看,目前还不清楚现有房屋的后面是什么。
Very little of the works are visible from the street. The new works respect the original clicker brick 1940’s house celebrating the original features. Most of the original house remains and new works are hidden at the rear. From the street it is unclear what is at the back of the existing house.
© Christine Francis
(克里斯蒂娜·弗朗西斯)
客服
消息
收藏
下载
最近

























