查看完整案例


收藏

下载
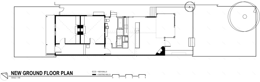
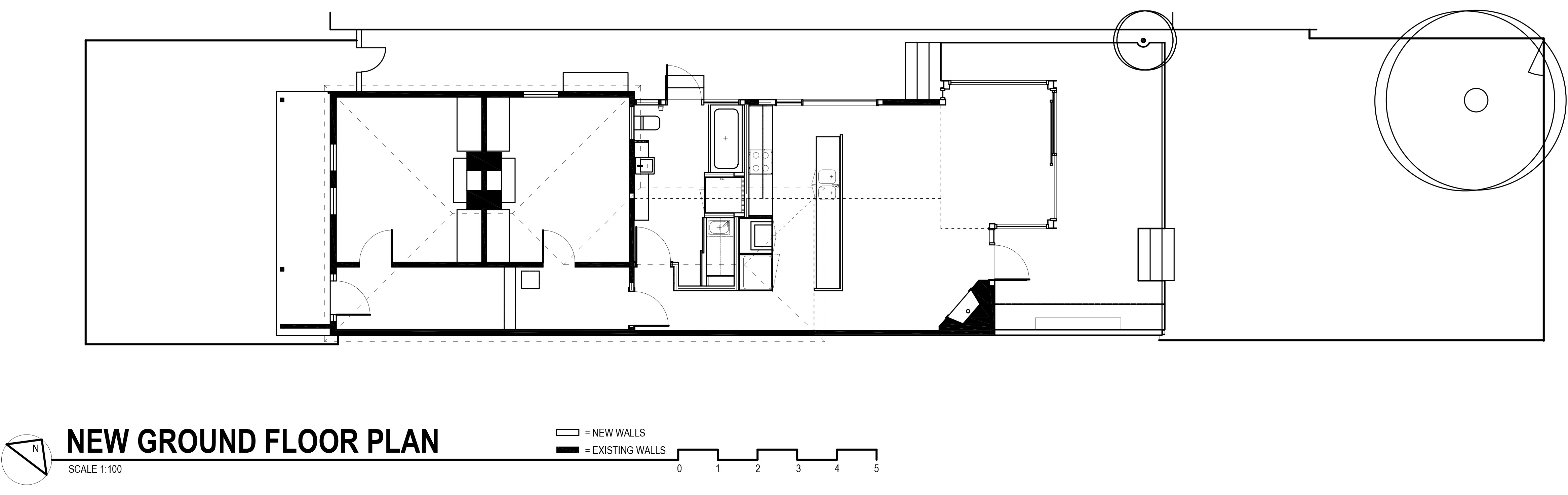
在维多利亚,澳大利亚肯辛顿,一座维多利亚式小屋的后部的翻新和延伸。
业主,一个单身的专业人士,喜欢她迷人的两间卧室小屋,但发现空间黑暗,疲劳,基本上需要修理。
邻近的2层延伸部分损害了她的隐私,将她的隐私转移到了后面的居住空间和后院,从而有效地降低了房产的可用性。
1970年的一个小的太阳房扩建被移除,取而代之的是黑色的钢和玻璃的小延伸部分。大画框窗为现有结构提供了照明和前景。
一个新的木材甲板扩展了生活空间,并包裹在边界围栏,创造了一个独特的隐私屏幕。
这个折叠/包装主题继续在里面,细木工台面垂直上升在新的厨房,浴室和洗衣房。
一个美化后院绿洲,以当地的西澳大利亚植被提供了一个真正的私人放松空间,让业主享受和连接她的珀斯路线。
虽然房子的总足迹实际上已经减少,但业主现在把她的住宅命名为“肯辛顿宫”,指的是人们感知到的宽敞空间和光线,以及更高的设施标准。
以谦逊达到优雅
经过深思熟虑的设计和严格审查业主的要求,一个伟大的建筑不必是庞大,昂贵和过度,以实现一个优雅的装修结果。
通过从“需求”中挑战和识别“需求”,可以实现更好的理解,并导致更加专注和成本效益更高的结果。
不需要更大的空间,但更好地利用空间、隐私和与户外的联系是很重要的。翻修和扩建工程以更小但更聪明的空间取代了一个较大但效率低下的建筑。
充满了自然光,很大的景观花园和丰富的借来的景观从附近的植被,这一新的延伸增加了现代生活的疲惫维多利亚式的小屋。
关键特征
隐私从2层的邻居实现与独特的垂直延伸木材甲板包裹和越过边界围栏线。
澳大利亚本土植被的私密绿洲
对邻里性格的同情反应
历史建筑的完整性和保留的细节
原始时期的街景保留
最大化日光和交叉通风
与户外有很强的联系
天然油剂的广泛使用
低维护终饰
适度的生活创造了巨大的空间感
限制材料和彩色托盘
建筑师声明
我这个项目的目的是创建一个现代的扩展,以满足客户的需求,更新的便利设施和隐私,同时挑战一个典型的建设过度性质。
这个项目是一个很好的机会来探索约束的概念,限制的大小,纹理和材料,创造一个诱人的,放松的私人空间。随着空间更聪明地工作,我喜欢挑战过度的想法。
Firm Nic Owen Architects
Type Residential › Private House
STATUS Built
YEAR 2015
SIZE 1000 sqft - 3000 sqft
BUDGET $100K - 500K
Photos Nic
keywordsarchitecture, architecture news, interiors, interior design, portfolio, spec, brands, marketplace, products Kensington Palace
关键词建筑,建筑新闻,室内设计,组合,规格,品牌,市场,产品肯辛顿宫
客服
消息
收藏
下载
最近



















