查看完整案例


收藏

下载

翻译
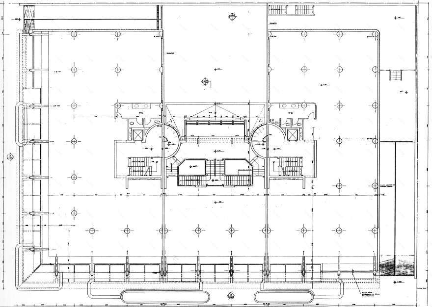
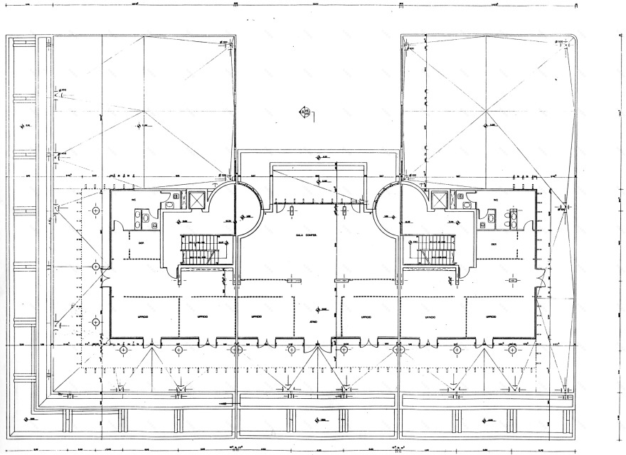
In 1988/1990 the ITALIAN NATIONAL COUNCIL FOR RESEARCHES (CONSIGLIO NAZIONALE DELLE RICERCHE - C.N.R.) assigns architect Raffaele Troncone the planning and the construction management of the Institute of Food Sciences in Avellino. This Institute is the main research centre on the Mediterranean Diet and on Food Certification.
客服
消息
收藏
下载
最近











