查看完整案例


收藏

下载

翻译
The purpose is to create a living system with a sensitive approach to environmental issues; a big covered plaza, a naturescape imaginery where families stay and create a community surrounded by a charming landscape with plants, water and the ground modeled smoothly.
The car access is located on the north-east side of the plot area on Noryangjin-ro, a ramp connect the parking system located in the underground at the “basement -1”. The circulation is anticlockwise, parking lots for the disabled and pregnant women are nearby the cores/lifts.
Advanced sewage treatment systems (ASTS) involve both anaerobic and aerobic (with oxygen) treatment to a higher level than a primary treatment system, resulting in effluent that is suitable for garden (excluding fruit and vegetables) and landscape irrigation. At the highest level of treatment (from ASTS), the treated effluent can be used in non-potable situations such as toilet flushing, vehicle washing and firefighting.
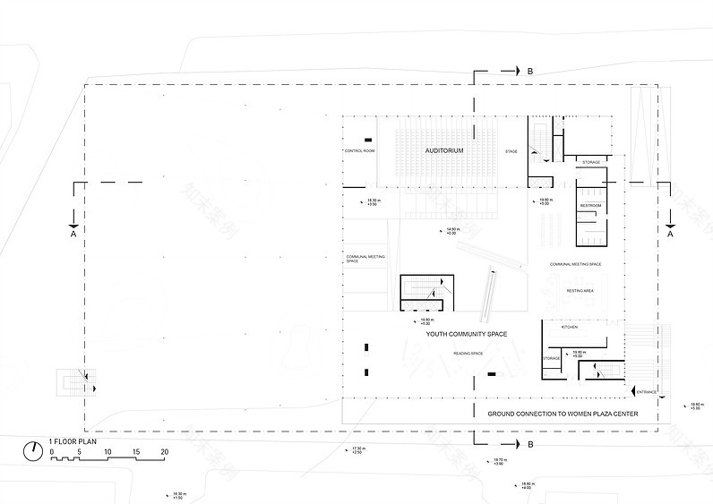
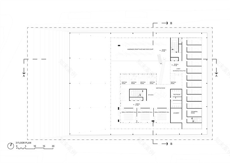
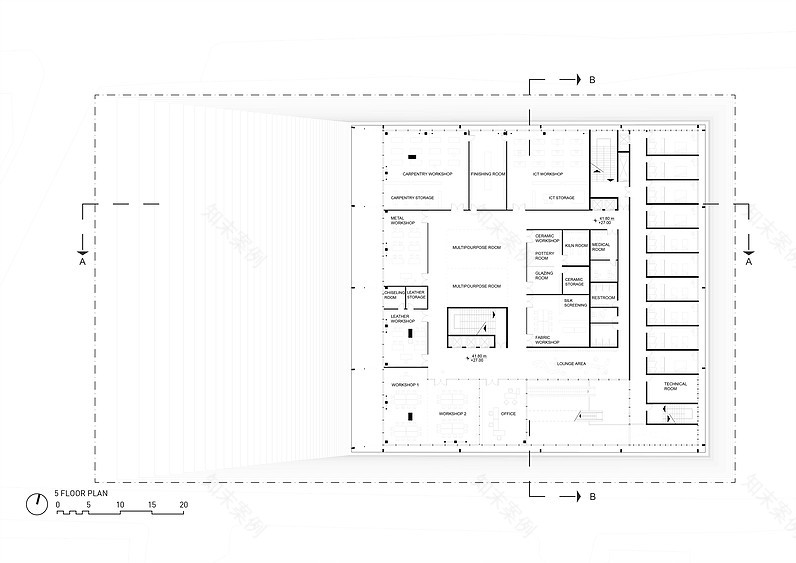
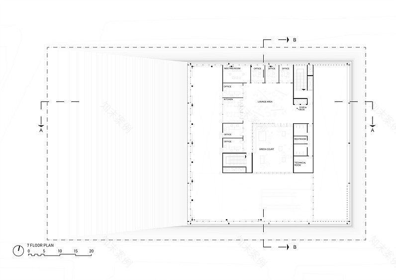
The building is a great landmark for Seoul, the rooftop embrace the naturescape plaza and the building that remind to historical traditional roofing shape. Our first operation is to ‘comb’ and consolidate controlled spaces with other flexible, the development of the building provides an alternation of volumes distributed vertically. The spaces between the platforms function as trading floors and lounge areas make possible a social interaction.
客服
消息
收藏
下载
最近



























