查看完整案例


收藏

下载
© Mauricio Salas
(Mauricio Salas)
架构师提供的文本描述。一个具有多方面特性、对居民、城市地区和环境负责的建筑项目的想法是从Escandón社区目前正在发生的变化和增长中诞生的。
Text description provided by the architects. The idea of an architectural project with a multifaceted identity, accountable to the residents, the urban area and the environment, was born from the moment of change and growth currently taking place in the Escandón neighborhood.
© Mauricio Salas
(Mauricio Salas)
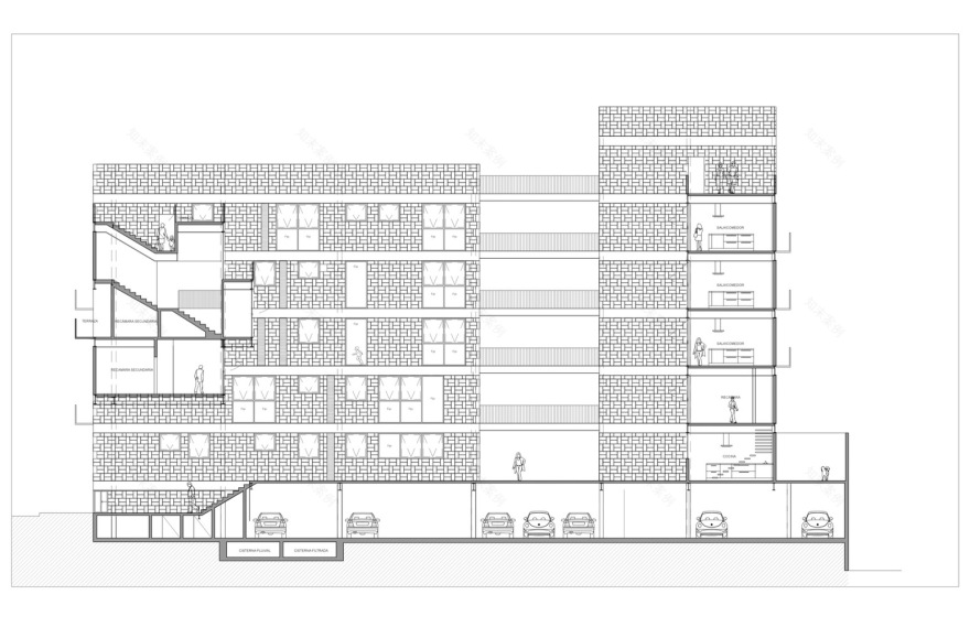
该项目包括开发10套公寓,面积502平方米,占地面积50%,5层。有两座由桥梁连接的建筑物和一个垂直循环的核心。厨房、浴室、卧室和窗户等空间在每一套公寓中所占的比例是相同的。
The project consists of the development of 10 apartments in a 502 m2 plot, with a 50% footprint area and five levels. There are two buildings connected by bridges and a nucleus of vertical circulation. Spaces such as kitchens, bathrooms, bedrooms and windows have the same proportions in every apartment.
© Mauricio Salas
(Mauricio Salas)
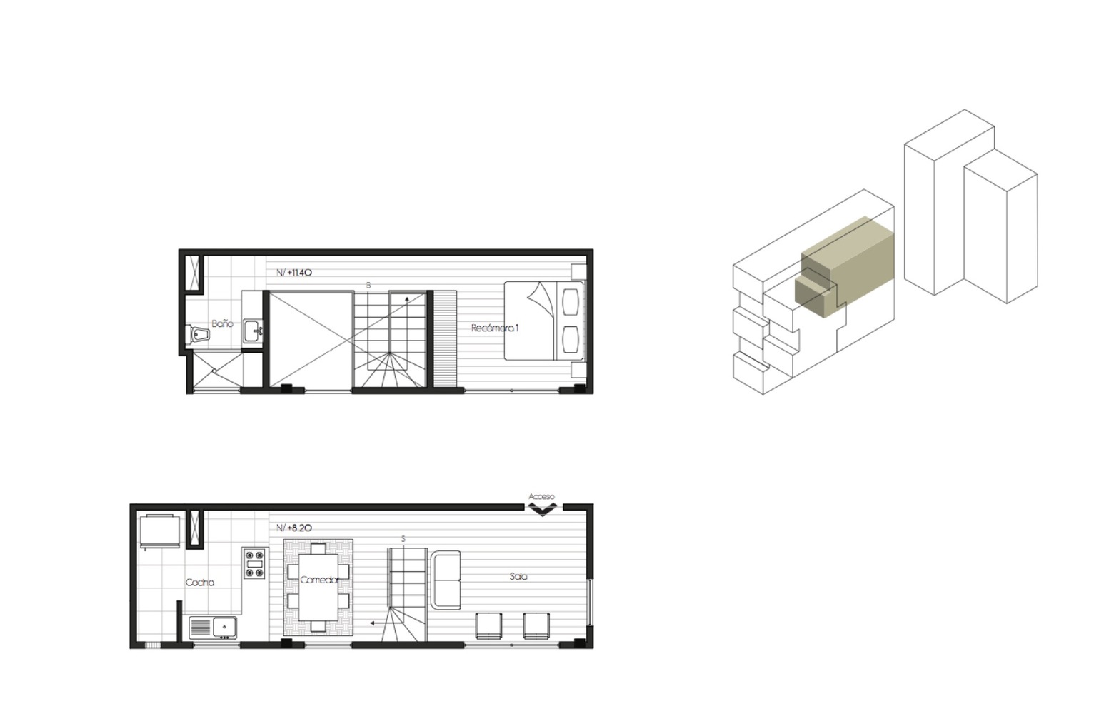
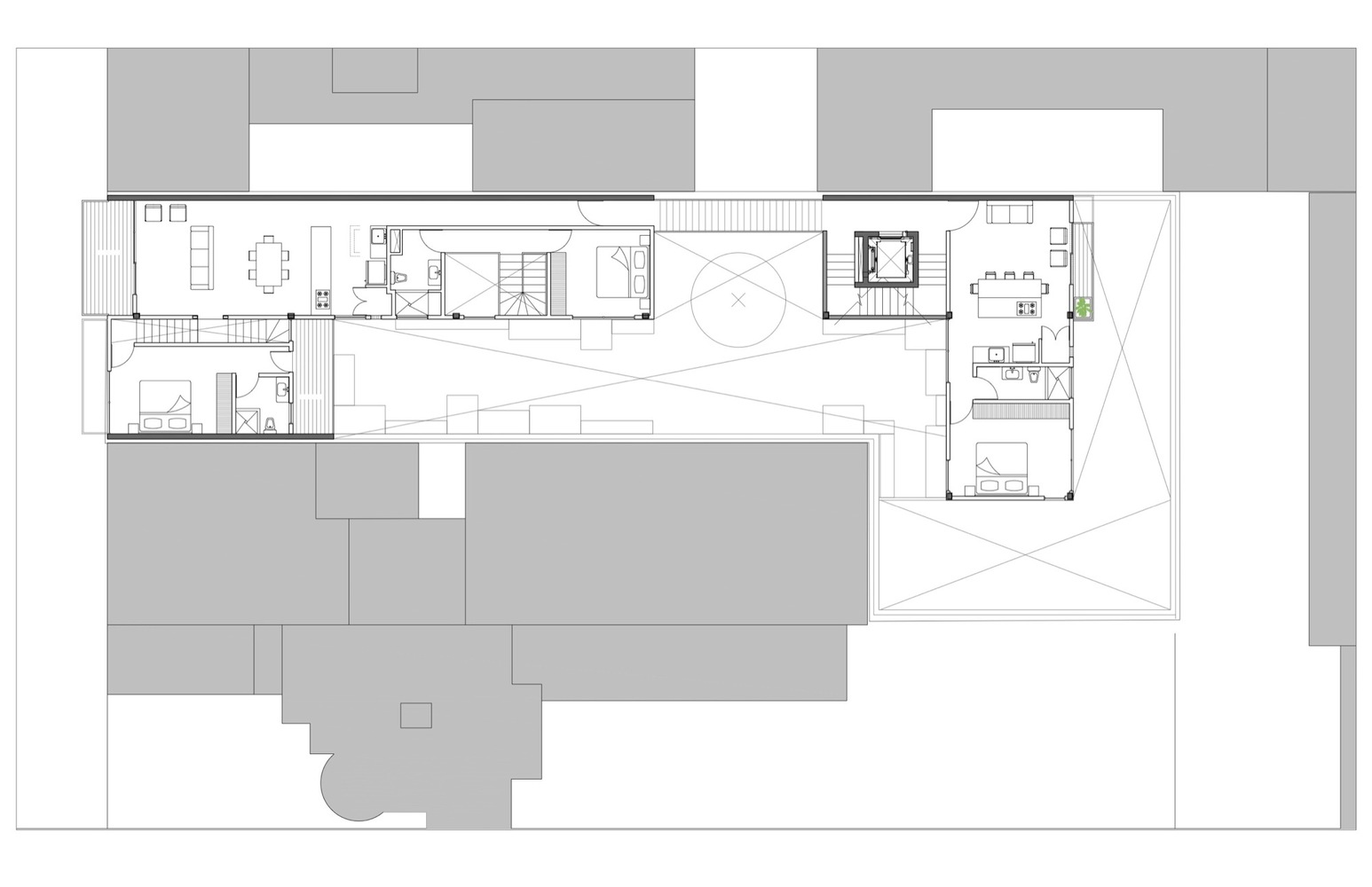
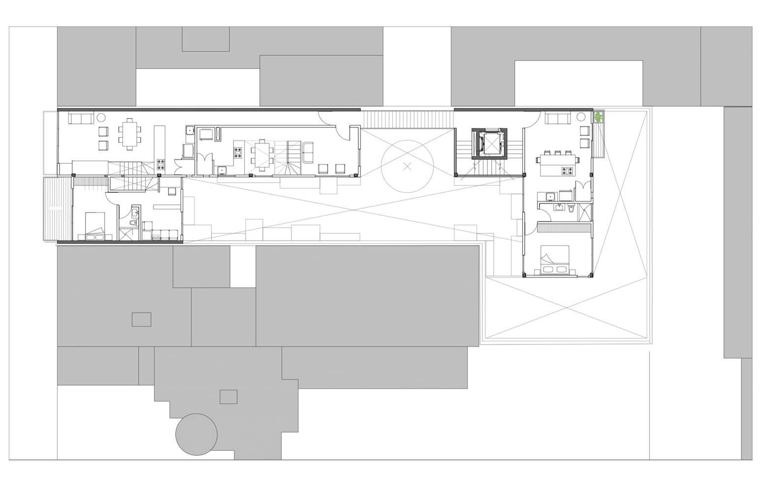
每套公寓都是不同的,它们的面积也各不相同,从60m2到135m2不等。因此,这些公寓不是为单一类型的用户设计的,而是为各种不同类型的用户设计的-从单身人士到夫妇或小家庭-他们共存并共用这座大楼。许多公寓是在两个或更多的半层,以创造循环和打破城市公寓的经典模式。这里有五个单层公寓,三个二级公寓,两个半层公寓。
Every apartment is different and their areas are variable, from 60m2 to 135m2. Therefore, rather than for a single type of user, the apartments have been conceived for a range of different types of users - from single people to couples or small families - who coexist and share the building. Many apartments are developed in two or more half-levels in order to create circulation and break the classic pattern of a city apartment. There are five single-level apartments, three two-level apartments, and two apartments of three half-levels.
© Mauricio Salas
(Mauricio Salas)
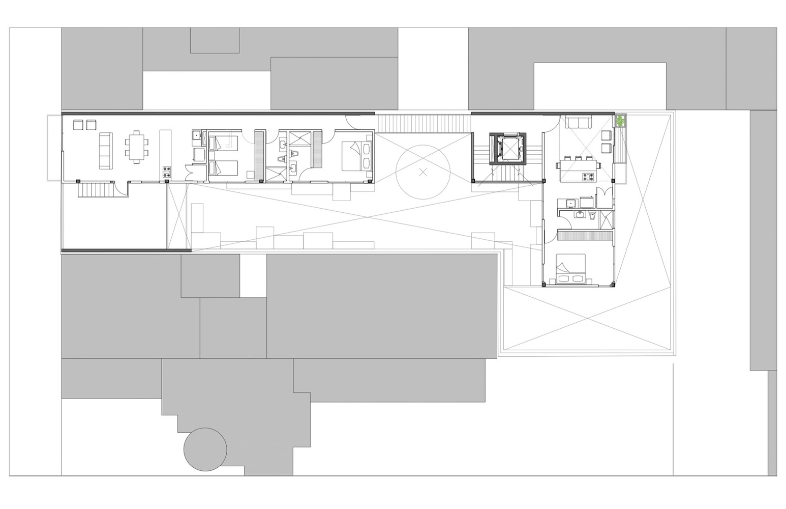
Detail Floor Plan
详细平面图
© Mauricio Salas
(Mauricio Salas)
这座建筑的足迹是由房产的位置决定的,使得大部分公寓都可以向南或东南方向移动。同样的做法使我们得以建立一个宽敞的开放广场和一个丰富的景观设计建议,鼓励游客探索这些设施,因为它在每个空间和垂直循环之间建立了联系,同时提供了自然照明和通风。
The building’s footprint was dictated by the property’s location, allowing a southern or southeastern orientation for most of the apartments. This same approach enabled the creation of a spacious open plaza and an enriching landscaping proposal that encourages visitors to explore the facilities as it establishes a connection between each space and the vertical circulation while providing natural lighting and ventilation.
© Mauricio Salas
(Mauricio Salas)
选择这些材料是为了不需要任何覆盖物或处理,所有材料都是以其自然形式和功能使用的。用泥土色的水泥块来给空间提供更多的温暖。采用了混凝土和钢的混合结构,这两种材料都可以在建筑物的六个立面上看到。这种混合结构创造了没有列和中间中断的开放空间。
The materials were chosen so as to do without any coverings or treatments; all materials are used in their natural form and function. Cement block stained in earthy hues was used to give more warmth to the spaces. A mixed structure of concrete and steel was used, and both materials were left visible in the six façades of the building. This kind of mixed structure creates open spaces free of columns and intermediating interruptions.
© Mauricio Salas
(Mauricio Salas)
这些公寓有木材和天然石材装饰。每间公寓都有露台和私人露台。LED灯提供人工照明,管道系统由雨水收集和过滤系统支持。
The apartments have wood and natural stone finishes. Every apartment has terraces and private patios. LED lamps provide artificial lighting, and the plumbing system is supported by rainwater collection and a filter system.
© Mauricio Salas
(Mauricio Salas)
该项目的主要目标之一是让用户从内到外享有空间。出入广场的设计符合这一目标,它也为所有公寓提供了一个视野,创造了一个包容的环境,也促进了邻居之间的共存。最终,我们想要实现Escandón社区的主要特征之一,这个地区主要是住宅区,居民之间仍然有大量的沟通和社区。
One of the main goals of the project was to have spaces enjoyed by the users from the inside out. The design of the access plaza corresponds with this goal, and it also provides all the apartments with a view, which creates an environment of inclusion and also promotes coexistence between neighbors. Ultimately we wanted to materialize one of the main aspects that characterizes the Escandón neighborhood, a district that is mostly residential and where there is still is a lot of communication and community between residents.
© Mauricio Salas
(Mauricio Salas)
Architects CUA
Location Calle de la Prosperidad 35, Mexico City, Mexico
Category Apartments
Arquitectos a Cargo Diana Harari, Marcos Cohen, Ygal Maya, Yair Wolff
Area 1587.0 m2
Project Year 2016
Manufacturers Loading...
客服
消息
收藏
下载
最近










































