查看完整案例


收藏

下载
© Michel Denance
(米歇尔·德南斯)
架构师提供的文本描述。瑞士洛桑联邦理工学院 (EPFL) 的新校区名为 Artlab,由三个项目组成-- 一个艺术项目
Text description provided by the architects. The new campus for Swiss Federal Institute of Technology in Lausanne (EPFL) is named Artlab, which consists of three programs – an Arts & Science Pavilion, a Technology & Information Gallery, and the Montreux Jazz Café. The three boxes are tucked under a grand pitched roof that stretches as long as 235m. Between each box, we designed an aperture area that generates two axes. The two lines help to marshal the ow of people and reorganize all the buildings in the campus.
© Michel Denance
(米歇尔·德南斯)
有句日本谚语说,“住在一个屋檐下”,意思是不同的个体聚在一起,团结在一起,而 Artlab 正是这种说法的建筑翻译。
There is a Japanese saying, “living under one roof,” which means various and different individuals get together and team up, and Artlab is exactly the architectural translation of this expression.
© Michel Denance
(米歇尔·德南斯)
© Michel Denance
(米歇尔·德南斯)
在结构和外观上,我们使用了瑞士常见的木材,以创造出带有当地温暖的空间。木柱两边都夹着钢板,这样空间就可以同样柔和透明。屋顶是用石头砌成的,这是基于瑞士普通房屋的方法。屋顶根据下面的功能像折纸一样变换,并产生对光线和阴影作出反应的面孔。
For the structure and the exterior, we used timbers that are commonly found in Switzerland, in order to create space with local warmth. The wooden pillars are sandwiched with steel plates on both sides so that the space can be equally gentle and transparent. The roofing is in stone, which is based on the method applied in ordinary Swiss houses. The roof transfigures like origami according to the function underneath, and creates faces responding to light and shadow. © Michel Denance
(米歇尔·德南斯)
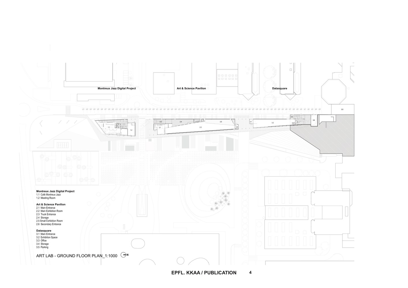
项目描述项目现场是一片广阔的草坪,是 EPFL 校园中间的一片空白。它把校园的北面 (广场、校园的社交中心和电车站) 与南部的学生住宅区分开。此外,它还将密集的校园西部与目前正在发展的东边隔开,这个东侧围绕着学习中心,尽管它的存在令人印象深刻,但它一直无法组织和协调其周围的环境,直到现在,它仍然残存且功能失调。
Project description
The project site is a vast lawn, a void in the middle of the EPFL campus. It disconnects the North side of the campus (where the Esplanade plaza, social heart of the campus, and the tram station are) from the students’ residential area in the South. Also it separates the dense West part of the campus from the currently evolving East side that is articulated around the Learning Center which, despite its impressive presence, has not been able to organize and cohere its surroundings, until now, residual and dysfunctional.
Exploded Axonometric
爆炸轴测
给定的庞大工程场地使我们能够在许多方面找到和配置展馆。最后,我们决定把这三个所需的展馆聚集在一座很薄很长的建筑里,作为一种有目的追踪,从而将场地从一个功能失调的空洞转变为校园内的一个新的公共空间。
The given vast project site allowed us to locate and configure the pavilions in many ways. Finally we decided to gather the three required pavilions into one very thin and long building that, as a purposeful trace in the territory, thus transforming the site from being a dysfunctional void into a new public space within the campus.
© Michel Denance
(米歇尔·德南斯)
-240 米长的屋顶将为从南至住宅区的北广场的步行街提供住所。
-The 240m long roof will provide shelter to the pedestrian ow from the north Esplanade plaza down South to the residences throughout the day.
© Michel Denance
(米歇尔·德南斯)
-屋檐下各亭间设有门廊,其中一条与位于主要公众泊车区的西面的主要街道相连,另一条则连接到东面的新树廊。因此,门廊将通过建筑提供渗透性,吸引和连接校园的西、东两面。
-The porches provided between the pavilions united under the roof are connected one to the main street coming from the West side where main public Parking areas are located, and the other to the new tree promenade from the East. Therefore, the porches will provide permeability through the building attracting and connecting these West and East sides of the campus.
© Michel Denance
(米歇尔·德南斯)
通过将这个网站改造成一个学生、教授和游客每天都能舒适地经过这里享受在这个屋檐下进行的新活动的地方,我们确信整个地区将成为校园内一个重要的场所,为 EPFL 带来更多的社会和文化层面。
By transforming the site into a place where students, professors and visitors will comfortably pass by every day enjoying the new activities that will take place under this roof, we are confident that this whole area will become an essential spot within the campus that will bring a more social and cultural dimension to the EPFL.
© Michel Denance
***"的格式回复。请您提供更多的文本,以便我们能够为您提供更好的服务。
为了使湖面免受现有广场的影响,该建筑的北端仍很薄,约为 5 米,其南端的面积可达 16 米。为了从结构上解决这种不断变化的过于夸张的细长建筑,我们开发了一种新型的木钢结构解决方案。改变木/钢组合物的比例,允许所有 57 个结构入口 (跨度都不同) 在整个建筑中具有完全相同的截面,使整个工程的围护结构模块化并能够预制。
Structure
In order to frame and protect the view of the lake from the existing Esplanade plaza, the building remains very thin in its northern end, about 5m, and its sections widens up to 16m on its southern end. To solve structurally such an exaggerated slender building that always changes in width, we developed a new kind of structure solution combining wood and steel. Changing the proportion of the wood/steel composition allowed to have all the 57 structure portals (that are all different in span) to have the exact same section throughout the building, making the whole envelope of the project modular and able to be prefabricated.
© Michel Denance
(米歇尔·德南斯)
Structural Frame
© Michel Denance
(米歇尔·德南斯)
Structural Frame Schedule
结构框架计划
建筑的屋檐上的 FAC 是沿着广场、校园的中心和南部的学生住宅之间的广场散步的人的住所。由于这些檐部保护了 FAC 的上侧,所以其木质覆层在整个表面上以不均匀的方式老化;因此,为了在其使用寿命期间获得稳定的存在,木材被预先老化。根据当地实际情况,选择了当地落叶松,因为它具有良好的耐久性。老化后的木包层的浅灰色与深灰色石板瓦屋顶一起,尽管其长度显著,但在建筑物上呈现相当安静和微妙的存在。这些寒冷的灰调与广场周围的其他建筑物以及洛桑的一般阴雨天气对话。只有当一个人靠近建筑物时,它的屋顶接收到住所,我们发现了它庞大的木质天花板的温暖。
Facade
The building’s eaves provide shelter for those walking along the piazza between the Esplanade, heart of the campus, and the student housing in the South. Due to those eaves protecting the upper side of the facade, its wooden cladding would age in a heterogeneous way throughout the surface; therefore the wood was pre-aged in order to achieve a stable presence during its life span. Local larch was chosen for the facade as it has good endurance based on local practice. The light gray tone of the pre-aged wood cladding, together with the dark grey slate roofing, give a rather quiet and subtle presence to the building, despite its remarkable length. These cold grayish tones dialogue with those of other buildings surrounding the piazza and as well with the generally overcast weather of Lausanne. It is only when one gets closer to the building, receiving shelter by its roof, that we discover the warmth of its vast wooden ceiling.
© Michel Denance
(米歇尔·德南斯)
Architects Kengo Kuma & Associates
Location Lausanne, Switzerland
Category Institute
Lead Architects Kengo Kuma & Associates / Javier Villar Ruiz (Partner in charge) with: Nicola Maniero, Rita Topa, Marc Moukarzel, Jaeyung Joo, Cristina Gimenez
Local Architect CCHE
Project Year 2016
Photographs Joël Tettamanti, Michel Denance
客服
消息
收藏
下载
最近












































