查看完整案例


收藏

下载
这家位于巴塞罗那的露营店面向加泰罗尼亚广场。在这个项目中,我们用拱形陶瓷板作为楼板的模板来更新空间。这是加泰罗尼亚发展起来的一种革命性的建筑方法,和以前一样,地板由木梁支撑。这个加泰罗尼亚拱顶的开创性概念对高迪的整个作品都是一个巨大的启发。
在这里,加泰罗尼亚拱顶作为家具的基本单元,从架子,到凳子,到鞋子的柜台,给人一种温暖友好的氛围,体现了加泰罗尼亚的文化。
我们感兴趣的是将每一件物品单独陈列,有自己的空间,让更多的人关注产品。为此,我们考虑了由屋顶瓦片状陶瓷元素组成的生态位系统。日本和西班牙都有使用这种建筑元素的悠久传统,但制作方法却截然不同:日本的屋顶瓦片是釉面的,闪闪发光,而地中海的屋顶瓦片则是裸露的材料,暴露出其纹理。这种差异是我们非常感兴趣的,这个项目是一个很好的机会去探索这个问题。
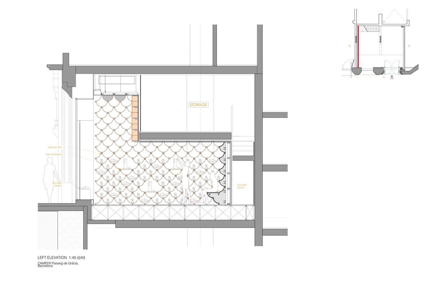
这些陶瓷元素,创造了壁龛来展示物品,是非常基本的形状。通过在整个空间中重复它们,它们创造了复杂性。它们变成了墙壁、架子、员工柜台、顾客的长凳;除了这些非常简单的陶瓷元素,这个空间没有其他的存在。我们很兴奋能够使用这样一种古老的传统材料,并找到新的方法来制作它,塑造它,将它的单元组合起来,创造出不同的建筑元素,来满足当代生活的需求。
▲平面图
▲剖面图
▲立面图
▲天花板
▲细节
项目信息——
项目名称:Camper Paseo de Gracia
位置:西班牙,巴塞罗那
工作室:Kengo Kuma & Associates
设计团队:Jaime Fernandez Calvache (PM), Nicola Maniero, Ludovica Cirillo和Kimio Suzuki(可视化)
照明设计师:Viabizzuno
年份:2018
客服
消息
收藏
下载
最近





















