查看完整案例

收藏

下载
架构师提供的文本描述。当我第一次参观戴克扬工厂时,我两次感到惊讶。第一个惊喜是中东河河口或河流的美丽景色,第二个惊喜是从厂区看不见美丽的景色。建筑群里有三座建筑,两座建筑排列在平行线上,形成了一个长方形广场。广场很忙,许多工人经过。第三座建筑垂直于广场,挡住了通往大海的风景。我为工厂工人感到难过,他们离美丽的风景如此之近,但却看不见。
Text description provided by the architects. I was surprised twice when I first visited the Daekyoung Factory. The first surprise was the beautiful scenery of the mouth or the river of the Nakdong River, and the second surprise was that the beautiful scenery could not be seen at all from the factory complex. There were three buildings in the complex, with two buildings lined up on parallel lines, making a rectangular plaza. The plaza was busy, with many workers passing by. The third building was placed perpendicularly with the plaza, blocking the scenery towards the sea. I felt sorry for the factory workers, who are so close to the beautiful scenery, but could not even see it.
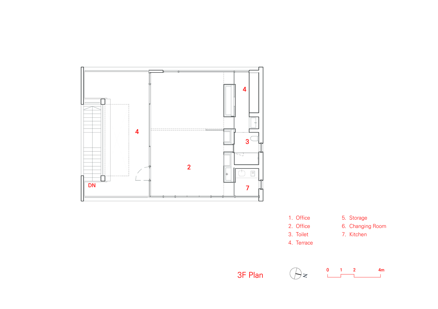
客户想要一间会议室、一间工作室和一间七名工人的办公室。他还计划购买第三座工厂大楼的土地,并建造一座新的厂房。我们问客户大楼是否必须是一个整体。他说可以分裂。这就是我们找到解决方案的线索的地方。新的工厂大楼被分成两部分,强调其他建筑的平行布置,中间的广场是朝看的方向打开的,就像路易斯·卡恩的萨尔克研究所(Louis Kahn‘s Salk Institute)那样。办公大楼将建在广场上,但一楼是用高引航仪建造的,以尽可能开阔海景。
The client wanted a conference room, a studio, and an office for seven workers. He also had a plan to purchase the land on the third factory building and build a new one. We asked the client if the building had to be a single mass. He said it could be divided. This is where we found the clue to the solution. The new factory building was divided into two massed, emphasizing the parallel arrangement of the other buildings, and the plaza in between was opened out towards the see, as in Louis Kahn’s Salk Institute. The office building will be built in the plaza, but the first floor is made with high piloti to open up the view towards the sea as much as possible.
© Youngchae Park
杨泽公园
循环是在逆时针方向上协调的,围绕着建筑物,以便让用户体验完整的风景。由于这些设计决策,建筑物的结构最终使每一层都从另一层转移。由于这座建筑必须位于一个被Ascon覆盖的场地上,所以外露混凝土被用作主要的外部材料。
The circulation is coordinated in a counter-clockwise direction wrapping up the building in order to allow the users to experience the full scenery. Because of these design decisions, the structure of the building ended up having each floors shifted from the other. Because this building had to sit on a site covered Ascon, exposed concrete was used as the main exterior material.
© Youngchae Park
杨泽公园
客服
消息
收藏
下载
最近















