查看完整案例


收藏

下载
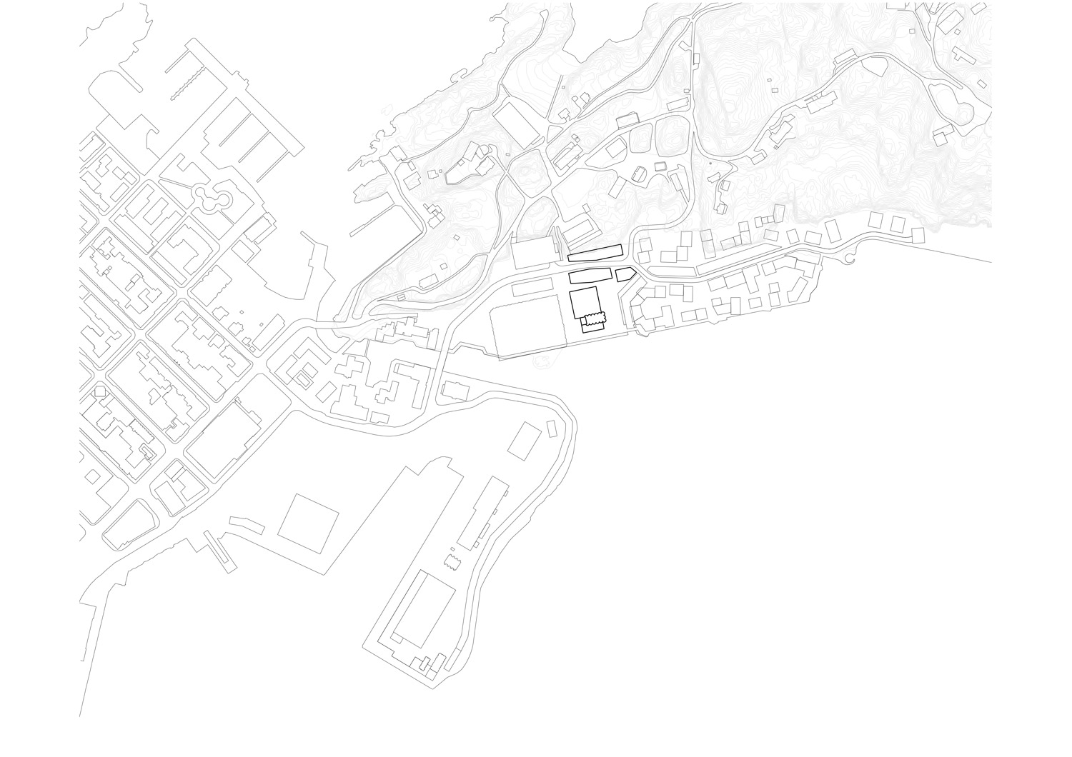
Kristiansand的新文化区提供了在老城镇Kvadraturen和新的Kanalbyen住宅区之间的过渡。
竞争建议的主要目的,是界定一个具吸引力的城市行人空间,以及加强与工业海港及筒仓建筑遗产的象征性及情感联系。
该项目提议拆除部分筒仓建筑,这是该市的一个历史地标,也是挪威工业遗产的一个重要文件,将其带回其1935年的标志性版本,以找到与周围环境规模相协调的关系,并建立一个有吸引力的大型城市广场-库尔图托尔吉特。广场建成的边界都将具备活动和功能,在内部和外部空间之间产生生动的互动,为活动和用户之间的强大协同提供基础;整个总体规划项目支持一个非常开放和公共的建筑系统,在内外之间平稳过渡,确定该地区与城市和周围环境的联系。
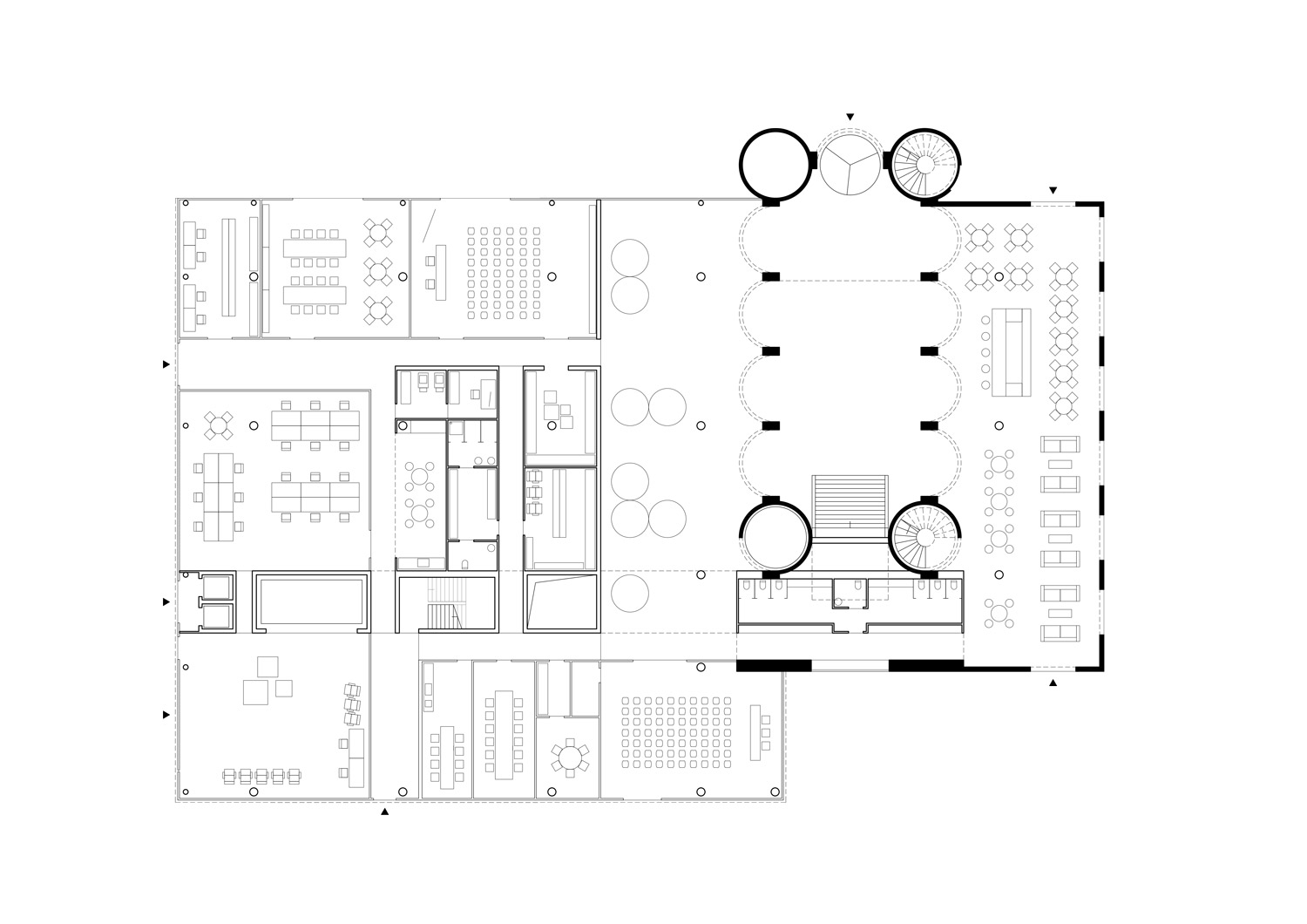
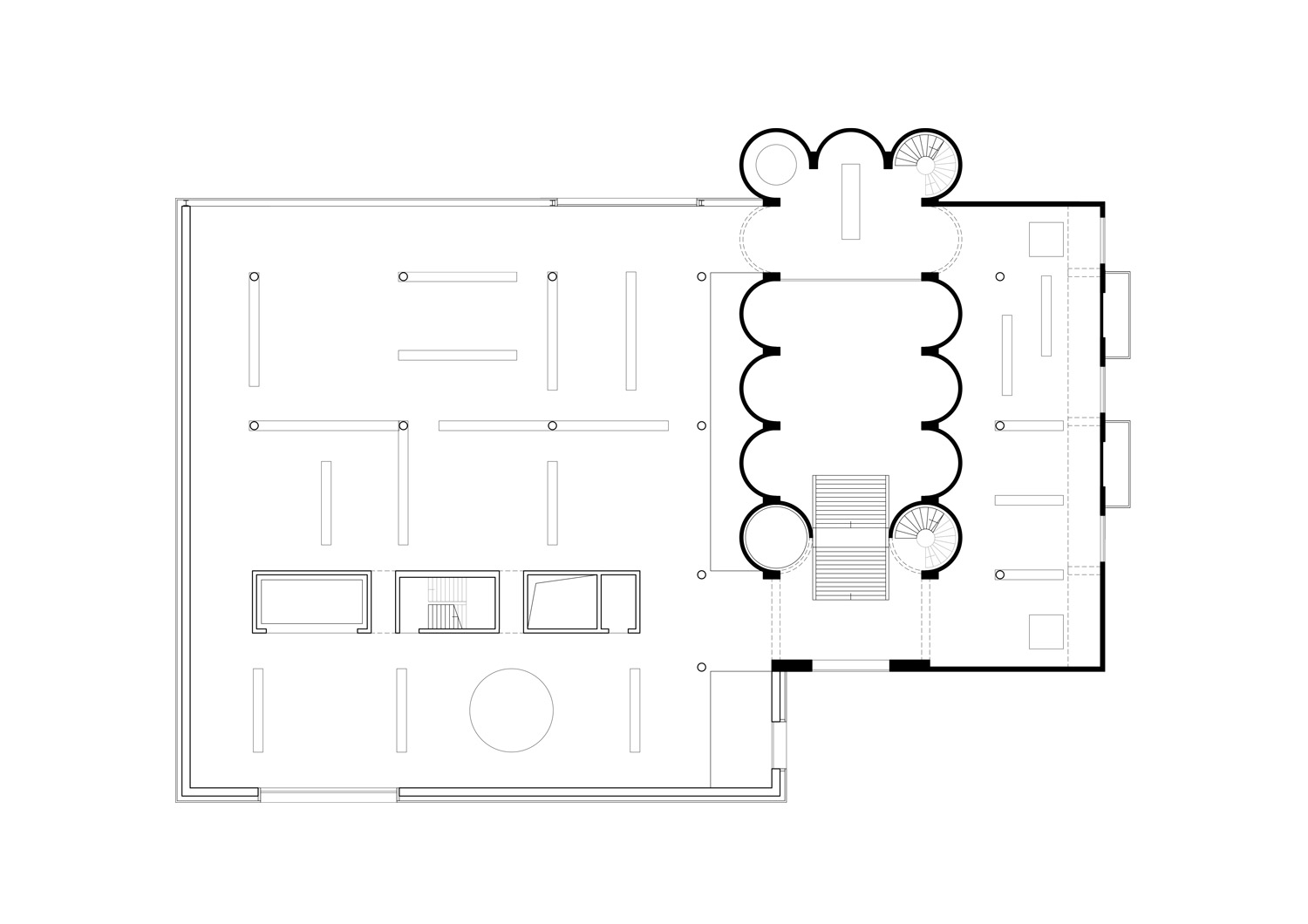
筒仓的真正本质,它简单冷静的方面,与整个工业外观相联系,被抽样和重复使用在项目中,使博物馆有一个独特的方面。
该项目建议拆除6排筒仓及其相应的仓库空间,并空出一些剩余的筒仓空间作为大厅,以庆祝筒仓结构及其垂直度,为博物馆提供一个令人印象深刻的中庭,使其有可能被用作场地特定艺术设施或表演的展览空间。新的方形建筑的建造和旧仓库的重新布置完成了新博物馆的布局。
在门厅,一个中央大型雕塑楼梯引导游客到一楼,在那里展览开始。
为了使展览布局具有灵活性,画廊分为三层,为参观者提供了各种不同的空间和空间,这些空间和空间在比例、高度和采光方面各不相同。
Firm Ravagnani Vecchi Architects
Type Cultural › Museum Educational › Other Landscape + Planning › Masterplan
STATUS Concept
keywords:architecture, architecture news, interiors, interior design, portfolio, spec, brands, marketplace, products Kunstsilo - New Art Museum and Cultural Quarter in Kristiansand - Second Prize
关键词:建筑,建筑新闻,室内设计,组合,规格,品牌,市场,产品库-新艺术博物馆和文化街区在克里斯提珊德-二等奖
客服
消息
收藏
下载
最近












