查看完整案例


收藏

下载
架构师提供的文本描述。Jata是一家拥有50多年家用电器生产和销售经验的公司。由于原来的总部已经过时,决定建造新的、更大的设施,以满足公司和市场目前的需求。这些需求主要是一个大的后勤区域和空间,用于操纵、回收、生产线、实验室等活动。另一方面,一个适当的行政区域。
Text description provided by the architects. JATA is a company with more than 50 years of experience in the manufacture and marketing of household appliances. With its original headquarters already obsolete, it was decided to build new, larger facilities, which would cover the current requirements of the company and the market. These requirements were mainly a large logistical area and spaces destined to activities of manipulation, recovery, production lines, laboratory, etc. On the other hand a properly administrative area.
© José Manuel Cutillas
何塞·曼努埃尔·库蒂利亚斯
随着该方案的这种分布和Jata在其整个历史上所研究的操作准则,该项目诞生于两卷纯线和一个基于预制混凝土元件的工业化建筑,作为对公司及其串联生产的参考,从而缩短了执行时间。规模最大的是物流项目,而规模较小的项目则涵盖了其他地区。
With this distribution of the program and under operating guidelines studied by Jata throughout its history, the project was born with two volumes of pure lines and an industrialized construction based on prefabricated concrete elements, as a reference to the company and its production in series, which allowed to reduce the execution time. The largest volume houses the logistics program meanwhile the smaller one embraces the rest of the areas.
© José Manuel Cutillas
何塞·曼努埃尔·库蒂利亚斯
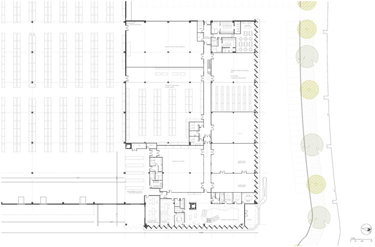
物流仓库的最大高度为14.6米,宽度为100米,长度为120米。它是一座由混凝土面板组成的封闭立面的建筑,由混凝土大灯组成的预制结构来实现尽可能清晰的内部空间,这得益于天窗和甲板上的外露。这些办公室的规模较小,复杂程度更高,其特点是立式混凝土的立面从一层到另一层都有预制构件,有一个S方向-这样就可以利用全天的自然光线,在整个建筑中实现统一的自然照明,并让人们对开阔的景观和蒙卡约峰有尽可能好的看法。光线无处不在,所有空间都有透明度,在不同的工作区域之间建立联系,在公司内部实现更高的效率和更好的工作条件。
The logistic warehouse has 14.6 m of maximum height, 100 m of width and 120 m of length. It is a building with a closed facade of concrete panels placed horizontally, prefabricated structure of concrete sconces of big lights to achieve an interior space as clear as possible, naturally illuminated thanks to skylights and exutorios in deck. The offices, of smaller size and greater complexity, is defined by a facade with prefabricated elements of vertical concrete from floor to deck, with an orientation S-SO that allows to take advantage of the natural light for the whole day, achieving a uniform natural illumination throughout the building, and allowing the best possible views of the open landscape and the Moncayo peak. Light is present everywhere and transparency is intended in all spaces, creating connections between different working areas and achieving greater efficiency and better working conditions within the company.
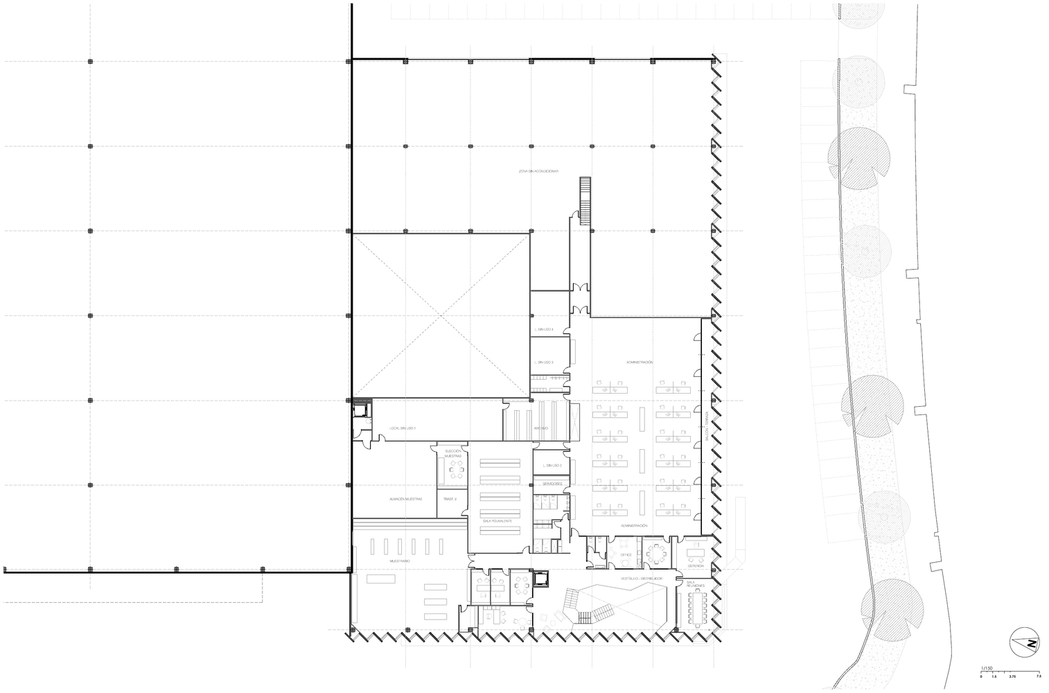
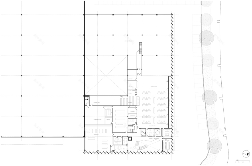
First Floor Plan
一层平面图
尽管遇到了所有困难,但已经开发了一个项目,该项目具有与该公司相关的建筑价值、与该创新相对应的设计,但同时具有传统的JATA设备的特性。
Despite all difficulties, the program has been developed to achieve a project with an architectural value associated to the company, a design that corresponds to the innovative but, at the same time, traditional character of Jata Appliances.
© José Manuel Cutillas
何塞·曼努埃尔·库蒂利亚斯
这种基于重复、紧缩和功能的建筑质量产生了一个严格的部分,这是必要的扰乱,以标志进入内部。因此,办公楼入口处的一个角落的主平行,创造了一个中庭的双重高度和破碎的形状,与紧缩的整体。
This quality of the building based on repetition, austerity and functionality generates a rigorous piece that is necessary to disrupt in order to mark the access to the interior. Therefore, the entrance to the office building fractures a corner of the main parallelepiped, creating an atrium of double height and broken shape that contrasts with the austerity of the totality.
© José Manuel Cutillas
何塞·曼努埃尔·库蒂利亚斯
客服
消息
收藏
下载
最近
























