查看完整案例


收藏

下载
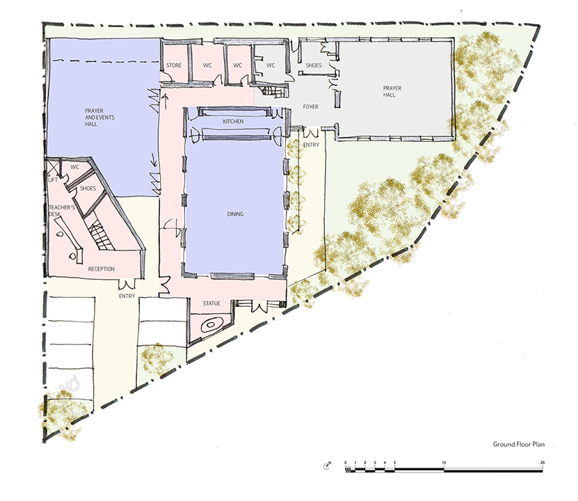
在伦敦北部以前的教堂大厅里,我们建造了一个新的托儿所,里面有一个大阁楼,可以进行大量的游戏和学习活动,包括音乐、阅读、攀爬和滑行,以及小睡时间的小洞。滑动聚碳酸酯屏幕允许大空间被分解,以创造在灵活的空间的终极要求。
Firm Inter Urban Studios
Type Cultural › Religious Educational › Nursery Landscape + Planning › Playground
STATUS Under Construction
SIZE 3000 sqft - 5000 sqft
BUDGET $100K - 500K
keywords:architecture, architecture news, interiors, interior design, portfolio, spec, brands, marketplace, products Little Lamps Nursery
关键词:建筑,建筑新闻,室内设计,组合,规格,品牌,市场,产品小灯具苗圃
客服
消息
收藏
下载
最近










