查看完整案例


收藏

下载
建筑师:Gwendolyn Huisman,Marijn Boterman地点:荷兰鹿特丹:2017年:1.507平方英尺/140平方米摄影:C.Gwendolyn Huisman,Marijn Boterman,OsSIP van Duivenbode,Vincent van Dordrecht描述:
他说:“这个计划显示了城市中被遗忘的空旷空间是如何被利用的。每个城市都忽略了可以升级以完成城市结构的空间,同时为冒险的城市生活创造了新的形式的可能性。作为年轻的建筑师,Gwendolyn Huisman和Marijn Boterman看到了在鹿特丹的一个古老的社区中缩小和极端比例的差距的潜力和挑战。2012年,他们开始了购买非卖品地块的过程,最近他们自己完成了整个室内设计。
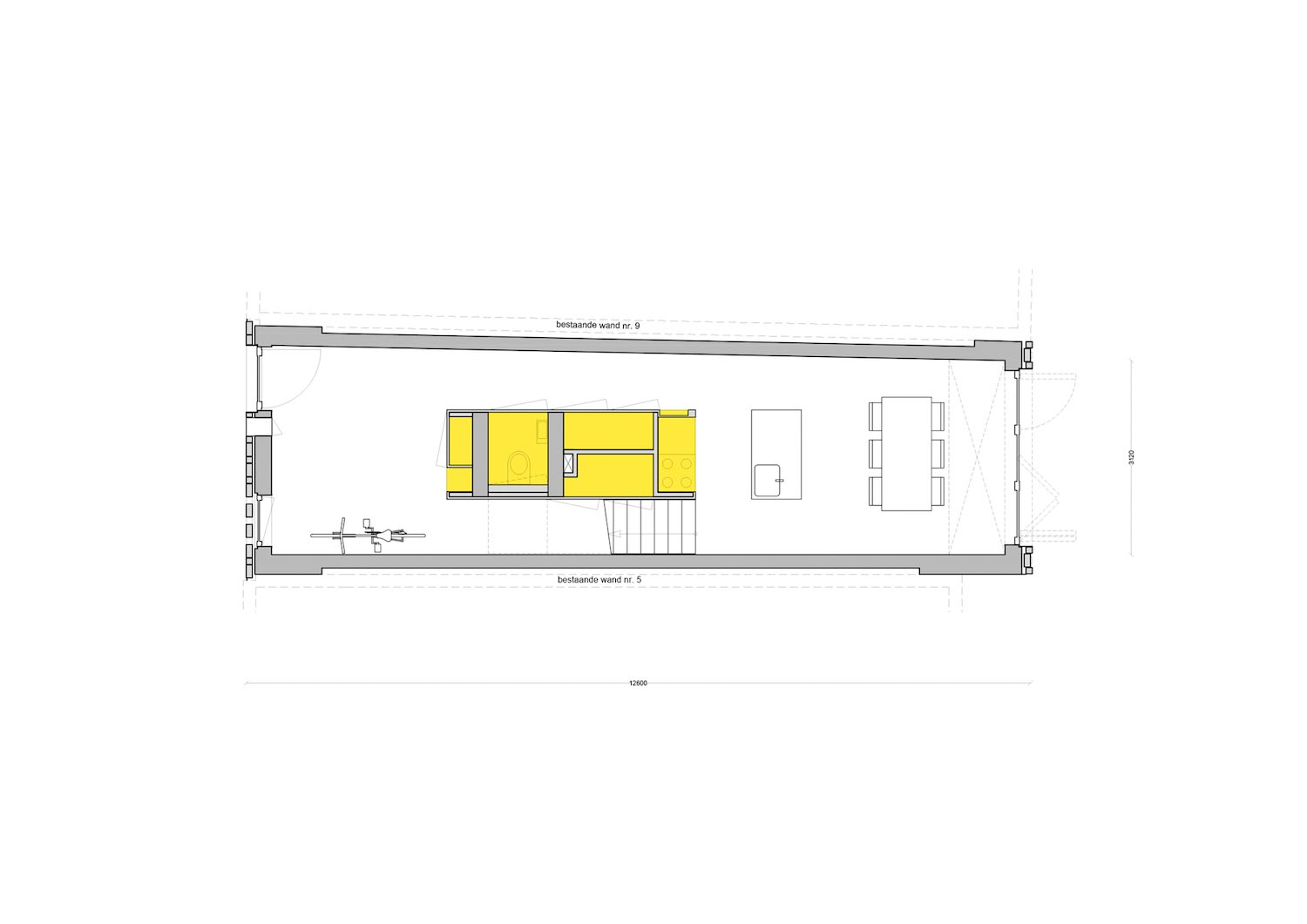
情节的极端比例,只有3.4米宽,20米深,导致了一个堆叠开放的类型,而这是一个构造上的挑战。由于其相对于高度的狭长性,需要一个庞大的基础和承载结构。因此,在房屋内部引入了两个平行钢筋混凝土板的优雅解决方案。这样,正面的开口就不受建设性的限制。
为了创造宁静的居住空间,建筑师们将住宅所需的所有支撑功能,以及这些混凝土板和装置,集中在房屋中心的两个垂直空间中。这些卷是从侧壁分离,以强调13米深的内部,并创造了不同空间之间的各个方向的意料之外的景象。楼梯的设计方式可以提高这些空间品质。
建筑理念强调生活空间的自然分裂,这种空间融合在一起,没有严酷的边界,空间总是水平地和垂直地连接在一起。通过把房间的空间和楼梯靠近房子的中心,亲密的居住空间出现在公共街道和集体庭院花园。居住空间大小适中,感觉亲密,不受建筑景观和空间流动性的压迫。
居住空间的组织反映了他们一整天的使用情况。在一楼是一个宽敞的入口区域和一个开放式厨房,通过高折叠门连接到集体庭院花园。客厅和图书馆主要用于晚上,在一楼,可以看到郁郁葱葱的花园和公共街道。起居室的空隙连接一楼和一楼的起居空间,用作吊床,可以俯瞰花园和天空。
图书馆的后海湾窗口延伸到公共街道上,作为一个坐着阅读的地方,并以这样的方式详细描述城市的结构。房子里最私密的部分,卧室和浴室,都位于顶层。浴缸上方的天窗可以俯瞰过往的云彩和鸟类,并将自然的白天光线带入房子的黑暗区域。
室内使用的材料简单自然。它们给内部带来温暖,而不是支配知觉。这两个立式体积都是用松胶合板包覆的,建筑师夫妇可以自己建造,而现场浇筑的粗糙混凝土地板则没有在天花板一侧完成,以揭示施工方法。混凝土天花板上的锈迹是对浇铸它们的雨季的一种纪念。
黑色的砖石建筑适应了他们的方向:它向花园开放,有两层高玻璃正面和全景窗户,而它仍然比公共街道更私人。
海湾窗户的细节最少,将室内与公共生活联系起来,居民可以坐在那里观看路过的人们。街道立面的细节和具体化是这样的,它建立在19世纪末20世纪初的周边城市结构之上。现代住宅与现代细节有其自身的同一性,但仍凸显出历史上城市语境中的微小差距。该项目改变了传统和传统的生活方式,并适合他们的居民作为定制西装。“
谢谢你阅读这篇文章!
keywords:Gwendolyn Huisman Marijn Boterman Rotterdam The Netherlands
关键词:Gwendolyn Huisman Marijn Boterman鹿特丹荷兰
客服
消息
收藏
下载
最近






































