查看完整案例


收藏

下载

翻译
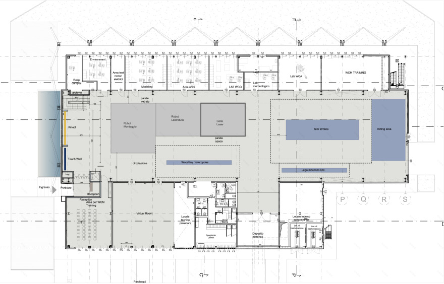
Il New Research Center di Melfi, sistema a funzione lineare, è caratterizzato da un gigantesco foglio ombreggiante variamente piegato direttamente sorretto da leggere strutture di spunto naturalistico.
Esso rende l'edificio un complesso polifunzionale, creando spazi peculiari per lavoro d'ufficio e sperimentazione. Il portico vede una coerente integrazione dei maggiori principi di sostenibilità in architettura creando ombre per proteggere le facciate trasparenti e collaborando al raffrescamento naturale attraverso sistemi di ventilazione in copertura.
Il progetto si colloca in un'area baricentrica dello stabilimento Melfi: il fuoco dell'anfiteatro. Tale posizione è il logico completamento della planimetria e potrà inoltre rappresentare la centralità della ricerca in Fiat.
客服
消息
收藏
下载
最近























