查看完整案例


收藏

下载

翻译
Tra continuità e novità, collegare per ampliare L’intervento di progetto si pone nel segno della continuità con l’esistente, con cui intende dialogare in maniera armonica. Nel concepire il nuovo edificio si è cercato di tracciare un segno architettonico che fosse riconoscibile come nuovo e al contempo omogeneo con la sede che attualmente ospita l’SGR e ne rappresenta l’immagine identitaria. Per non stravolgere questo aspetto si sono dunque compiute scelte che all’esistente si accostassero tanto con discrezione che con decisione, attingendo alla palette di forme, linee, geometrie, materiali e colori già impiegati, per miscelarli in maniera inattesa a creare esiti differenti. La ricerca di continuità perseguita ad un livello formale-estetico, armonizzando texture e cromatismi a quelli del corpus attuale, si estende anche ad un livello materiale-fisico, per consentire il collegamento funzionale con l’edificio esistente.
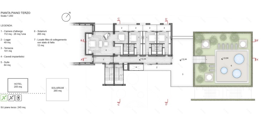
AZIONI – Il collegamento del nuovo volume a quello esistente, garantito al piano terra dal portico già in uso, ai piani superiori è assicurato dalla forza del metallo: le travi della struttura in acciaio si protendono aeree dal vecchio corpo per reggere il nuovo e, come un ponte, collegare l’uno all’altro. - A colmare i vuoti individuati e, quasi con digitazioni, a dilatarsi estendendosi alla globalità dell’intervento per renderlo unitario, è la trasparenza acquea del vetro. Un ampio volume vetrato sostanzia l’anima del nuovo edificio e al contempo lo rende visibile –dunque permeabile- alla città. Ad accentuare il senso di unitarietà dell’intervento, la trasparenza del vetro “si propaga” al museo dell’energia collocato nell’area verde esterna; - Un corpo in laterizio, che rappresenta la facies dell’edificio su tre lati, gli garantisce solidità quasi a volerlo “radicare” alla città e al contesto in cui sorge. In una sorta di armoniosa compenetrazione ed equilibrio degli opposti, tuttavia, la terrea compattezza del mattone viene bilanciata dalla vegetazione di un tetto giardino che raffresca l’edificio e offre ai visitatori una gradevole panoramica sulla città e sul mare. - Un rivestimento in laminato rosso che evoca il fuoco, infine, espande la facciata dell’edificio e ne accende i prospetti, conferendo all’intervento calore e dinamismo, e, grazie ad un segno marcato, un’immediata riconoscibilità.
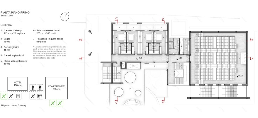
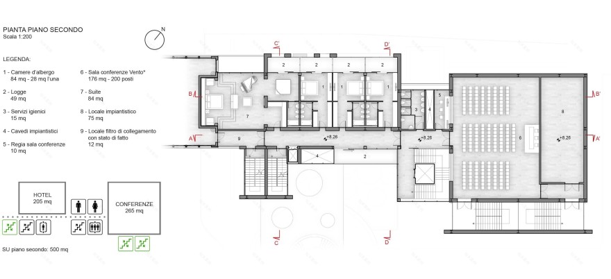
FUNZIONI, ORGANIZZAZIONE E DISTRIBUZIONE – L’organizzazione e il layout dell’edificio rispondono ad un criterio distributivo che distingue le aree vivibili da quelle connettive e di servizio, e le differenzia associando loro texture e materiali differenti. Si è scelto quindi di collocare le prime funzioni nei volumi opachi (laterizio e laminato rosso) e le seconde nelle parti in vetro, riservando invece all’acciaio funzioni strutturali. Un’ulteriore differenziazione distribuisce la zona ricettiva e di ristoro (hotel, ristorante e centro benessere) nell’edificio dal rivestimento in laminato rosso, che con le sue grandi aperture garantisce il necessario apporto di luce a tali funzioni; al contrario, la compattezza del volume in laterizio ben si presta ad accogliere le sale conferenze, distribuite sui tre livelli in cui tale volume si sviluppa. Nella distribuzione degli ambienti si sono perseguiti due macro-obiettivi: - consentire la separazione dei flussi di utenti che accedono a funzioni diverse - assicurare il collegamento tra le nuove funzioni e quelle esistenti. I due blocchi in cui l’edificio risulta distinto, quello rosso e quello in laterizio, possono pertanto funzionare in maniera indipendente l’uno dall’altro, essendo strutturati intorno a vani scale differenti, ma possono anche interagire in caso di particolari necessità (ad esempio per consentire ai congressisti l’accesso al ristorante o ad altri servizi). Per una piena integrazione dell’edificio di progetto con l’esistente le nuove sale conferenze sono collegate in quota alle altre sale del piano primo (Energia ed Acqua), mentre il nuovo ristorante è il diretto prolungamento dell’esistente ristorante Quartopiano. Le sale conferenze si distribuiscono tra il piano terra ed il secondo piano, mentre l’hotel, concepito primariamente – ma non esclusivamente- ad uso dell’attività congressuale si articola su tre piani. Nell’area verde esterna si sono previsti uno spazio eventi, un museo che senza soluzione di continuità si estende nella medesima area verde come parco tematico dedicato all’energia; si è infine riorganizzato il parcheggio di piazzale Chiabrera, distinguendovi zone ad uso pubblico e privato e di parcheggio interrato collegato a quello sottostante l’edificio. L’organizzazione del parcheggio ha tenuto conto delle alberature esistenti per preservarle il più possibile, ad eccezione di quelle la cui demolizione è richiesta ai lavori per il parcheggio interrato, con cui quello esterno è collegato mediante uno specifico accesso. Per non creare interferenze con il flusso del Trasporto Rapido Costiero, il layout del parcheggio esterno ha previsto una corsia riservata e un’area di manovra TRC.
客服
消息
收藏
下载
最近





















