查看完整案例


收藏

下载
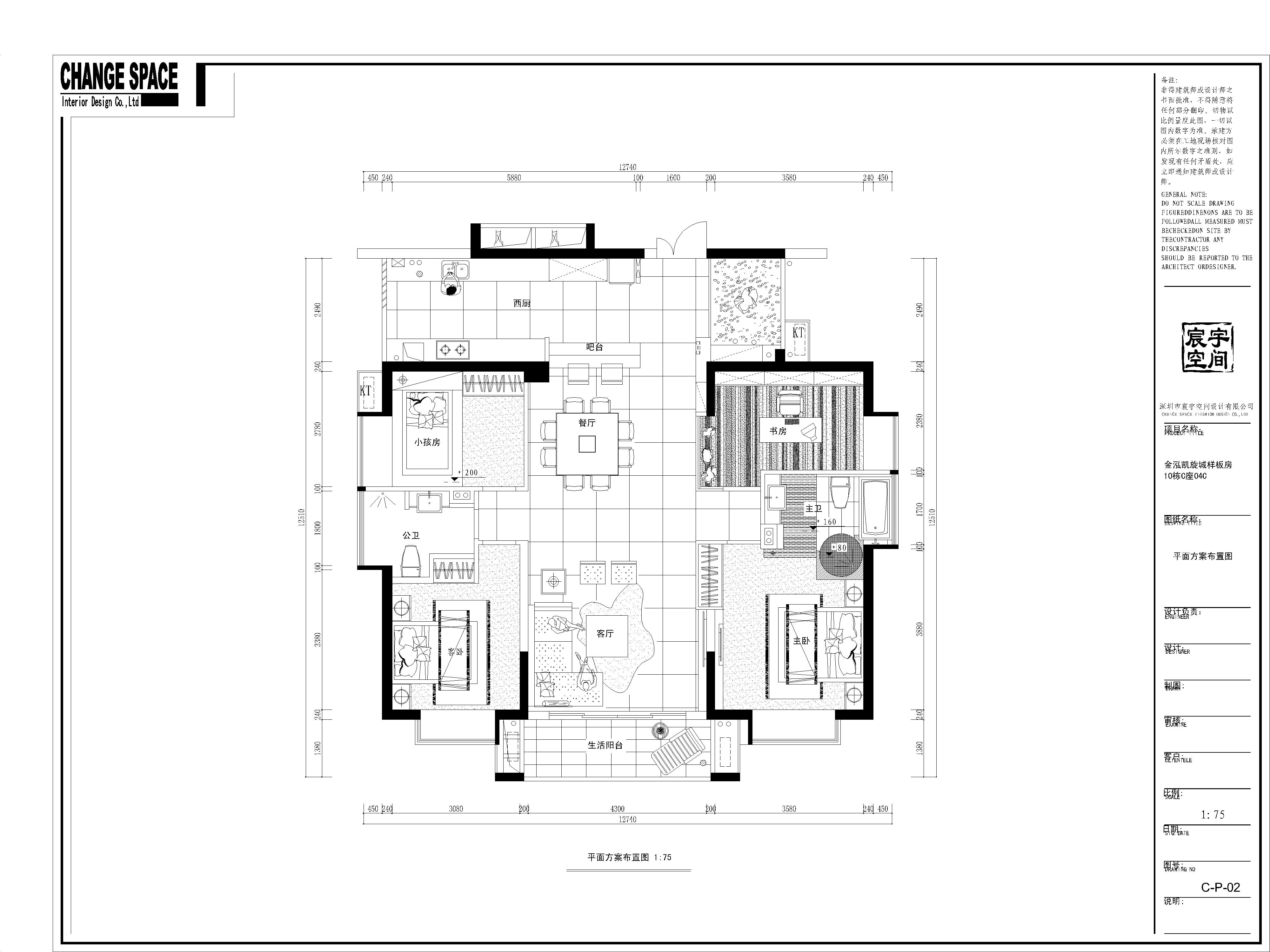
设计:李长明户型:10栋04C户型主题:《蓝调》项目名称:金泓·凯旋城样板房10栋04C户型项目地址:广东省深圳市设 计 师:李长明建筑面积:142㎡装修主材:灰镜、墙纸、吊灯本案源于20世纪20年代的“超现实主义”艺术——“蓝调”,设计师以无拘无束的空间创意与洋溢的前卫个性表现着现代生活中梦境与现实的交错,吸引着众多的目光。本案结构设计方正,大胆运用开放式空间与灰镜的光影增效作用,将室内空间逐步扩大。整体设计以舒适的浅色调作为铺垫,在局部运用上大胆的搭配永远的流行素——黑色,使整体感更趋一致,沉稳中却不失跳跃,再配以白色钢琴漆的现代家私,将人们紧张的工作心情恢复平静,把一切工作中的压力抛在脑后,所有的一切都在咖啡的香浓中慢慢品味……同时在本案中突出表现的经典色调——蓝色,是天空、是大海,与室外的园林美景水乳交融,不显突兀,简单中出特色,平凡中出品位,让人感觉平静、理智及深远......把人类憧憬美好未来、表达自我追求的欲望做到最佳诠释。
客服
消息
收藏
下载
最近















